Esempio di verifica 1024 | taglio nella zona di contatto tra i calcestruzzi
Esempio di verifica 1024 | taglio nella zona di contatto tra i calcestruzzi
2024-08-13
042002
  • RFEM 6

Esempio di verifica 1024 | taglio nella zona di contatto tra i calcestruzzi

Usato in
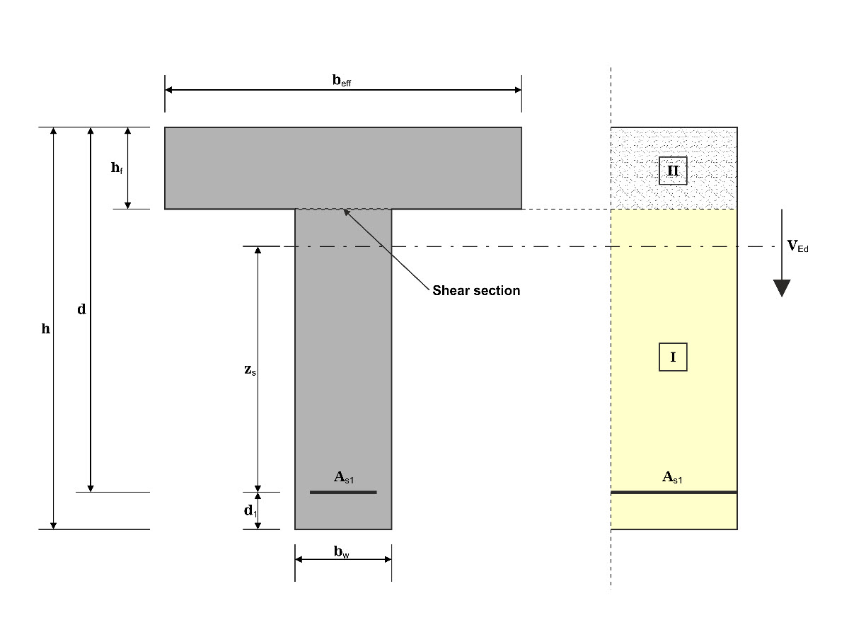
  • VE 1024 | Taglio all'interfaccia tra il getto di calcestruzzo secondo DIN EN 1992-1-1
Condividi