Descrizione
In questo esempio, il taglio all'interfaccia tra il getto di calcestruzzo in momenti diversi e l'armatura corrispondente è determinato secondo DIN EN 1992-1-1. I risultati ottenuti con RFEM 6 saranno confrontati con il calcolo manuale di seguito.
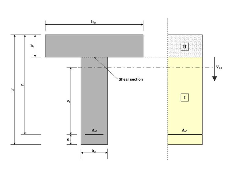
Il modello è costituito da una trave a T di 2.812 m, fissata a un'estremità. La sezione di taglio è mostrata nella figura seguente.
| Materiale | Calcestruzzo C25/30 | Modulo di elasticità | E | 31000 | N/mm2 |
| Valore di progetto della resistenza a compressione del calcestruzzo | fcd | 14,167 | N/mm2 | ||
| Acciaio per armatura B500S(A) | Tensione di snervamento caratteristica | [F5]yk | 500,000 | N/mm2 | |
| Resistenza allo snervamento di progetto | fyd | 434,783 | N/mm2 | ||
| Geometria | Trave a T | Altezza | h | 1350 | mm |
| Altezza efficace | d | 1280 | mm | ||
| Altezza della flangia | h[F5] | 290 | mm | ||
| Larghezza dell'ala | beff | 2500 | mm | ||
| Larghezza dell'anima | bw | 400 | mm | ||
| Carica | Carichi permanenti | Carico del nodo | 800,0 | kN |
La trave a T è modellata in RFEM 6 utilizzando il tipo di asta Nervatura.
Soluzione analitica
Le forze interne all'estremità dello sbalzo sono riassunte nella tabella seguente:
| Forze interne | |||
| Tipo | Simbolo | Unità | Risultante |
| Forza di taglio di progetto | VEd | [kN] | 800 |
| Momento flettente di progetto | MEd | [kNm] | 2250 |
L'area dell'armatura a trazione è calcolata utilizzando le tabelle dimensionali:
Successivamente, si determinano la tensione di taglio di progetto vEdi e la resistenza a taglio di progetto vRd,c :
vEdi è superiore a vRd,c. Pertanto, l'armatura a taglio è necessaria:
Impostazioni RFEM
- Nell'impostazione Nervatura, il giunto a taglio tra l'ala e l'anima è attivato.
- La classificazione di rugosità è impostata su Indentato
Risultati
| Descrizione | Variabile | Unità | Risultato RFEM | Soluzione analitica | Rapporto |
| Coefficiente di rugosità c | C | [-] | 0.5 | 0.5 | 1,0 |
| Coefficiente di rugosità | μ | [-] | 0.9 | 0.9 | 1,0 |
| Coefficiente di riduzione della resistenza per calcestruzzo fessurato a taglio per giunti | ν | [-] | 0.7 | 0.7 | 1,0 |
| Braccio della coppia interna | Z | [m] | 1,179 | 1,152 | 1,02 |
| Rapporto tra la forza longitudinale nella nuova area di calcestruzzo e la forza longitudinale totale | β | [-] | 1,0 | 1,0 | 1,0 |
| Angolare | α | [°] | 90 | 90 | 1,0 |
| Valore di progetto della tensione di taglio nell'interfaccia | vEd,i | [N/mm2 ] | 1,695 | 1,736 | 0.98 |
| Massima resistenza a taglio di progetto all'interfaccia | vRd,i,max | [N/mm2 ] | 4,958 | 4,958 | 1,0 |
| Resistenza a taglio di progetto all'interfaccia senza armatura a taglio | vRd,i | [N/mm2 ] | 0,510 | 0,510 | 1,0 |
| Armatura a taglio richiesta all'interfaccia | asw,i,req | [cm2/m] | 10,10 | 10,44 | 0,97 |
Risultati
I risultati di RFEM 6 ottenuti sono altamente accurati. Le leggere deviazioni osservate derivano principalmente dal calcolo del braccio di leva interno, z. Nella soluzione analitica, z è semplicemente considerato come il 90% della profondità effettiva, mentre RFEM la calcola con precisione.