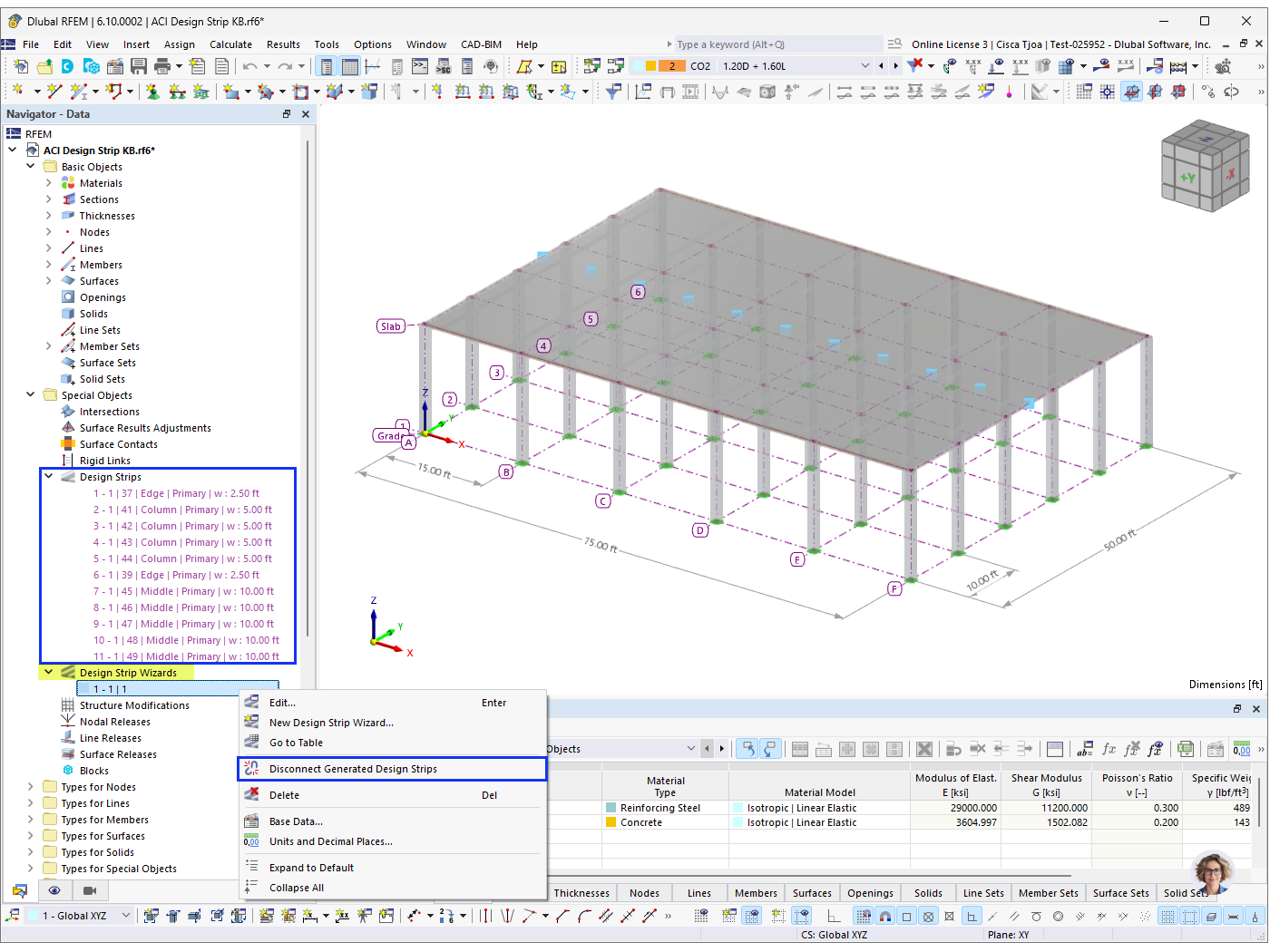
Visualizzazione degli strip di analisi strutturale generati in un modello utilizzando lo strumento Strip Wizard. Questi nastri aiutano ad analizzare in modo efficiente distribuzioni di carico specifiche e aspetti strutturali di elementi complessi.
Visualizzazione degli strip di analisi strutturale generati in un modello utilizzando lo strumento Strip Wizard. Questi nastri aiutano ad analizzare in modo efficiente distribuzioni di carico specifiche e aspetti strutturali di elementi complessi.
2025-04-24
056415
  • Verifica calcestruzzo per RFEM 6
  • RFEM 6
  • Strutture in calcestruzzo
    • Analisi e progettazione strutturale
    • ACI 318

NastrI generati con Strip Wizard

Visualizzazione degli strip di analisi strutturale generati in un modello utilizzando lo strumento Strip Wizard. Questi nastri aiutano ad analizzare in modo efficiente distribuzioni di carico specifiche e aspetti strutturali di elementi complessi.

L'immagine mostra le strisce generati dallo Strips Wizard, utilizzate in un modello strutturale per ottimizzare l'analisi della distribuzione dei carichi tra gli elementi strutturali. Le strisce migliorano la comprensione e le verifiche di calcolo all'interno di un ambiente software di analisi strutturale.
  • Analisi strutturale
  • Creazione guidata di nuove fasce
  • Distribuzione dei carichi
  • Modellazione di edificio
  • Elementi strutturali
Usato in
  • Striscia di progetto secondo ACI 318-19 in RFEM 6
Condividi