Układ i obciążenie (wymiary w mm, siła w kN)
Außenabmessungen des Querschnitts in mm
Nominalne szerokości części płaskich w mm
Wirksame Randsteife
Określanie sztywności sprężyny translacyjnej
Wirksamer Steifenquerschnitt
Ermittlung der Federsteifigkeit
Basisangaben
Parametry obliczeń
Tabela 1.7 Nominalne szerokości części płaskich | EN 1993-1-3
Tabela 1.8 Elementy usztywniające
Tabela 1.9 Panele
Tabela 2.1 Przypadki obciążeń
Tabela 3.1 Siły wewnętrzne
Charakterystyki przekroju efektywnego
Basisangaben
Parameter des nationalen Anhangs
Szczegóły, zakładka Przekroje formowane na zimno
Details, Register Stabilität
Rysunek 20 - Wyniki
Układ i obciążenie (wymiary w mm, siła w kN)
Außenabmessungen des Querschnitts in mm
Nominalne szerokości części płaskich w mm
Wirksame Randsteife
Określanie sztywności sprężyny translacyjnej
Wirksamer Steifenquerschnitt
Ermittlung der Federsteifigkeit
Basisangaben
Parametry obliczeń
Tabela 1.7 Nominalne szerokości części płaskich | EN 1993-1-3
Tabela 1.8 Elementy usztywniające
Tabela 1.9 Panele
Tabela 2.1 Przypadki obciążeń
Tabela 3.1 Siły wewnętrzne
Charakterystyki przekroju efektywnego
Basisangaben
Parameter des nationalen Anhangs
Szczegóły, zakładka Przekroje formowane na zimno
Details, Register Stabilität
Rysunek 20 - Wyniki
2024-05-30
008649
  • SHAPE-THIN 9
  • RFEM 5
  • RF-STEEL Cold-Formed Sections 5
    • RSTAB 8
    • STEEL Profile formowane na zimno 8
    • Konstrukcje stalowe
    • Analiza statyczno-wytrzymałościowa
    • Analiza naprężeń
    • Eurocode 3

Układ i obciążenie (wymiary w mm, siła w kN)

Wykorzystano w
  • Wymiarowanie przekroju ceowego cienkościennego zgodnie z EN 1993-1-3
Udostępnij
2024-05-30
008650
  • SHAPE-THIN 9
  • RFEM 5
  • RF-STEEL Cold-Formed Sections 5
    • RSTAB 8
    • STEEL Profile formowane na zimno 8
    • Konstrukcje stalowe
    • Analiza statyczno-wytrzymałościowa
    • Analiza naprężeń
    • Eurocode 3
Außenabmessungen des Querschnitts in mm
Wykorzystano w
  • Wymiarowanie przekroju ceowego cienkościennego zgodnie z EN 1993-1-3
Udostępnij
2024-05-30
008651
  • SHAPE-THIN 9
  • RFEM 5
  • RF-STEEL Cold-Formed Sections 5
    • RSTAB 8
    • STEEL Profile formowane na zimno 8
    • Konstrukcje stalowe
    • Analiza statyczno-wytrzymałościowa
    • Analiza naprężeń
    • Eurocode 3
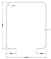
Nominalne szerokości części płaskich w mm
Wykorzystano w
  • Wymiarowanie przekroju ceowego cienkościennego zgodnie z EN 1993-1-3
Udostępnij
2024-05-30
008652
  • SHAPE-THIN 9
  • RFEM 5
  • RF-STEEL Cold-Formed Sections 5
    • RSTAB 8
    • STEEL Profile formowane na zimno 8
    • Konstrukcje stalowe
    • Analiza statyczno-wytrzymałościowa
    • Analiza naprężeń
    • Eurocode 3
Efektywna sztywność krawędzi
Wirksame Randsteife

Wykorzystano w
  • Wymiarowanie przekroju ceowego cienkościennego zgodnie z EN 1993-1-3
Udostępnij
2024-05-30
008653
  • SHAPE-THIN 9
  • RFEM 5
  • RF-STEEL Cold-Formed Sections 5
    • RSTAB 8
    • STEEL Profile formowane na zimno 8
    • Konstrukcje stalowe
    • Analiza statyczno-wytrzymałościowa
    • Analiza naprężeń
    • Eurocode 3
Określanie sztywności sprężyny translacyjnej
Wykorzystano w
  • Wymiarowanie przekroju ceowego cienkościennego zgodnie z EN 1993-1-3
Udostępnij
2024-05-30
008654
  • SHAPE-THIN 9
  • RFEM 5
  • RF-STEEL Cold-Formed Sections 5
    • RSTAB 8
    • STEEL Profile formowane na zimno 8
    • Konstrukcje stalowe
    • Analiza statyczno-wytrzymałościowa
    • Analiza naprężeń
    • Eurocode 3
Wirksamer Steifenquerschnitt
Wykorzystano w
  • Wymiarowanie przekroju ceowego cienkościennego zgodnie z EN 1993-1-3
Udostępnij
2024-05-30
008655
  • SHAPE-THIN 9
  • RFEM 5
  • RF-STEEL Cold-Formed Sections 5
    • RSTAB 8
    • STEEL Profile formowane na zimno 8
    • Konstrukcje stalowe
    • Analiza statyczno-wytrzymałościowa
    • Analiza naprężeń
    • Eurocode 3
Ermittlung der Federsteifigkeit
Wykorzystano w
  • Wymiarowanie przekroju ceowego cienkościennego zgodnie z EN 1993-1-3
Udostępnij
2024-05-30
008656
  • SHAPE-THIN 9
  • RFEM 5
  • RF-STEEL Cold-Formed Sections 5
    • RSTAB 8
    • STEEL Profile formowane na zimno 8
    • Konstrukcje stalowe
    • Analiza statyczno-wytrzymałościowa
    • Analiza naprężeń
    • Eurocode 3
Ogólne dane
Basisangaben

Wykorzystano w
  • Wymiarowanie przekroju ceowego cienkościennego zgodnie z EN 1993-1-3
Udostępnij
2024-05-30
008657
  • SHAPE-THIN 9
  • RFEM 5
  • RF-STEEL Cold-Formed Sections 5
    • RSTAB 8
    • STEEL Profile formowane na zimno 8
    • Konstrukcje stalowe
    • Analiza statyczno-wytrzymałościowa
    • Analiza naprężeń
    • Eurocode 3
Parametry obliczeń
Wykorzystano w
  • Wymiarowanie przekroju ceowego cienkościennego zgodnie z EN 1993-1-3
Udostępnij
2024-05-30
013155
  • RFEM 5
  • RSTAB 8
Tabela 1.7 Nominalne szerokości części płaskich | EN 1993-1-3
Wykorzystano w
  • Wymiarowanie przekroju ceowego cienkościennego zgodnie z EN 1993-1-3
Udostępnij
2024-05-30
008658
  • SHAPE-THIN 9
  • RFEM 5
  • RF-STEEL Cold-Formed Sections 5
    • RSTAB 8
    • STEEL Profile formowane na zimno 8
    • Konstrukcje stalowe
    • Analiza statyczno-wytrzymałościowa
    • Analiza naprężeń
    • Eurocode 3
Tabela 1.8 Elementy usztywniające
Wykorzystano w
  • Wymiarowanie przekroju ceowego cienkościennego zgodnie z EN 1993-1-3
Model 3D
Więcej o modelu 3D
  • Profil C
Udostępnij
2024-05-30
008659
  • SHAPE-THIN 9
  • RFEM 5
  • RF-STEEL Cold-Formed Sections 5
    • RSTAB 8
    • STEEL Profile formowane na zimno 8
    • Konstrukcje stalowe
    • Analiza statyczno-wytrzymałościowa
    • Analiza naprężeń
    • Eurocode 3
Tabela 1.9 Panele
Wykorzystano w
  • Wymiarowanie przekroju ceowego cienkościennego zgodnie z EN 1993-1-3
Model 3D
Więcej o modelu 3D
  • Profil C
Udostępnij
2024-05-30
008660
  • SHAPE-THIN 9
  • RFEM 5
  • RF-STEEL Cold-Formed Sections 5
    • RSTAB 8
    • STEEL Profile formowane na zimno 8
    • Konstrukcje stalowe
    • Analiza statyczno-wytrzymałościowa
    • Analiza naprężeń
    • Eurocode 3
Tabela 2.1 Przypadki obciążeń
Wykorzystano w
  • Wymiarowanie przekroju ceowego cienkościennego zgodnie z EN 1993-1-3
Model 3D
Więcej o modelu 3D
  • Profil C
Udostępnij
2024-05-30
008661
  • SHAPE-THIN 9
  • RFEM 5
  • RF-STEEL Cold-Formed Sections 5
    • RSTAB 8
    • STEEL Profile formowane na zimno 8
    • Konstrukcje stalowe
    • Analiza statyczno-wytrzymałościowa
    • Analiza naprężeń
    • Eurocode 3
Tabela 3.1 Siły wewnętrzne
Wykorzystano w
  • Wymiarowanie przekroju ceowego cienkościennego zgodnie z EN 1993-1-3
Model 3D
Więcej o modelu 3D
  • Profil C
Udostępnij
2024-05-30
008662
  • SHAPE-THIN 9
  • RFEM 5
  • RF-STEEL Cold-Formed Sections 5
    • RSTAB 8
    • STEEL Profile formowane na zimno 8
    • Konstrukcje stalowe
    • Analiza statyczno-wytrzymałościowa
    • Analiza naprężeń
    • Eurocode 3
Charakterystyki przekroju efektywnego
Wykorzystano w
  • Wymiarowanie przekroju ceowego cienkościennego zgodnie z EN 1993-1-3
Model 3D
Więcej o modelu 3D
  • Profil C
Udostępnij
2024-05-30
008663
  • SHAPE-THIN 9
  • RFEM 5
  • RF-STEEL Cold-Formed Sections 5
    • RSTAB 8
    • STEEL Profile formowane na zimno 8
    • Konstrukcje stalowe
    • Analiza statyczno-wytrzymałościowa
    • Analiza naprężeń
    • Eurocode 3
Ogólne dane
Basisangaben

Wykorzystano w
  • Wymiarowanie przekroju ceowego cienkościennego zgodnie z EN 1993-1-3
Udostępnij
2024-05-30
008664
  • SHAPE-THIN 9
  • RFEM 5
  • RF-STEEL Cold-Formed Sections 5
    • RSTAB 8
    • STEEL Profile formowane na zimno 8
    • Konstrukcje stalowe
    • Analiza statyczno-wytrzymałościowa
    • Analiza naprężeń
    • Eurocode 3
Parameter des nationalen Anhangs
Wykorzystano w
  • Wymiarowanie przekroju ceowego cienkościennego zgodnie z EN 1993-1-3
Udostępnij
2024-05-30
008665
  • SHAPE-THIN 9
  • RFEM 5
  • RF-STEEL Cold-Formed Sections 5
    • RSTAB 8
    • STEEL Profile formowane na zimno 8
    • Konstrukcje stalowe
    • Analiza statyczno-wytrzymałościowa
    • Analiza naprężeń
    • Eurocode 3
Szczegóły, zakładka Przekroje formowane na zimno
Wykorzystano w
  • Wymiarowanie przekroju ceowego cienkościennego zgodnie z EN 1993-1-3
Udostępnij
2024-05-30
008666
  • SHAPE-THIN 9
  • RFEM 5
  • RF-STEEL Cold-Formed Sections 5
    • RSTAB 8
    • STEEL Profile formowane na zimno 8
    • Konstrukcje stalowe
    • Analiza statyczno-wytrzymałościowa
    • Analiza naprężeń
    • Eurocode 3
Szczegóły, zakładka Stateczność
Details, Register Stabilität

Wykorzystano w
  • Wymiarowanie przekroju ceowego cienkościennego zgodnie z EN 1993-1-3
Udostępnij
2024-05-30
008667
  • SHAPE-THIN 9
  • RFEM 5
  • RF-STEEL Cold-Formed Sections 5
    • RSTAB 8
    • STEEL Profile formowane na zimno 8
    • Konstrukcje stalowe
    • Analiza statyczno-wytrzymałościowa
    • Analiza naprężeń
    • Eurocode 3
Rysunek 20 - Wyniki
Wykorzystano w
  • Wymiarowanie przekroju ceowego cienkościennego zgodnie z EN 1993-1-3
Udostępnij