16635x
001629
2020-03-02

Wymiarowanie przekroju ceowego cienkościennego zgodnie z EN 1993-1-3

Obliczenia stanu granicznego nośności przekrojów formowanych na zimno zgodnie z EN 1993-1-3 i EN 1993-1-5 można przeprowadzić za pomocą rozszerzenia RF-/STEEL Cold-Formed Sections. Oprócz profili formowanych na zimno z bazy danych przekrojów, SHAPE-THIN umożliwia także obliczanie przekrojów uogólnionych.

W poniższym przykładzie z Steel Structures Yearbook 2009 [3], obliczenia przekroju dla belki jednoprzęsłowej o cienkościennym, formowanym na zimno przekroju ceowym są przeprowadzane zgodnie z obciążenie siłą normalną. Belka poddana jest działaniu siły osiowej. Ceownik jest modelowany w SHAPE-THIN, a następnie wymiarowany w RF-/STEEL Cold-Formed Sections.

System

Układ i obciążenie są pokazane na rysunku 01.

Materiał

  • S 355 EN 10025-2
  • E = 210 000 N/mm²
  • G = 80 769 N/mm²
  • ν = 0,3
  • fy = fyb = 355 N/mm²
  • γM0 = γM1 = 1,00 (wymiarowanie zgodne z CEN)

Wymiary zewnętrzne

Zewnętrzne wymiary przekroju pokazano na rysunku 02.

  • H = 102 mm (wysokość środnika)
  • b = 120 mm (szerokość pasa)
  • c = 26 mm (długość zagięcia krawędzi)
  • t = 2 mm (grubość rdzenia stalowego)

Umowne szerokości części płaskich przekroju

Umowne szerokości części płaskich są określane zgodnie z [1], 5.1. oraz przedstawione na rysunku 03.


Sprawdzanie proporcji szerokości do grubości

Stosunki szerokości do grubości są sprawdzane zgodnie z [1], 5.2(1).

  • b/t = 120/2 = 60 ≤ 60
  • c/t = 26/2 = 13 ≤ 50
  • H/t = 102/2 = 51 ≤ 500

Proporcje szerokości do grubości są spełnione.

Kontrola wymiarów elementów usztywniających

Wymiary usztywnienia są sprawdzane zgodnie z [1], 5.2(2).
0,2 ≤ c/b = 26/120 = 0,22 ≤ 0,6

Zagięcia krawędzi mogą pełnić rolę elementów usztywniających.

Sprawdzenie kąta pomiędzy elementem usztywniającym a przyległą ścianką przekroju

Kąt pomiędzy elementem usztywniającym i płaskim wynosi 90° i mieści się w granicach 45° do 135°, o których mowa w [1], 5.5.3.2(1).

Określenie przekroju efektywnego

W przypadku ściskanych przekrojów stalowych, które nie są bisymetryczne, środek ciężkości efektywnego przekroju ulega przesunięciu w stosunku do przekroju brutto. Zewnętrzna siła ściskająca, oddziałująca centralnie na przekrój brutto, działa teraz mimośrodowo na przekrój efektywny, co powoduje powstanie dodatkowego momentu zginającego. Zgodnie z [1] należy uwzględnić dodatkowe momenty wynikające z przesunięcia środka ciężkości. W związku z powyższym oprócz przekroju efektywnego dla czystych naprężeń ściskających, należy określić przekrój efektywny dla czystych naprężeń przy zginaniu.

Określenie efektywnego przekroju przy czystym ściskaniu

Zgodnie z [2], 4.4 (2) współczynnik ten wynosi:

środnik

Zgodnie z [2], tabela 4.1, wartość współczynnika niestateczności miejscowej wynosi:

Zgodnie z [2], 4.4 (2) smukłość wyboczeniowa wynosi:

Współczynnik smukłości jest większy niż wartość graniczna 0,673 zgodnie z [2], 4.4(2). Z tego względu wymagana jest redukcja.

Zgodnie z [2], 4.4 (2) współczynnik redukcyjny wynosi:

Zgodnie z [2], Tabela 4.1, efektywna wysokość środnika wynika z [2], Tabela 4.1:

Pas z usztywnieniem krawędzi

W pierwszym podejściu efektywny przekrój elementu usztywniającego wyznaczany jest przy założeniu, że element ten stanowi sztywną podporę dla krawędzi przekroju oraz, że σcom, Ed = fybM0 .

pas

Zgodnie z [2], tabela 4.1, wartość współczynnika niestateczności miejscowej wynosi:

Zgodnie z [2], 4.4 (2) smukłość wyboczeniowa wynosi:

Współczynnik smukłości jest większy niż wartość graniczna 0,673 zgodnie z [2], 4.4(2). Z tego względu wymagana jest redukcja.

Zgodnie z [2], 4.4 (2) współczynnik redukcyjny wynosi:

Zgodnie z [2], tabela 4.1, efektywna szerokość półki wynosi:

usztywnienie brzegowe

Zgodnie z [1], 5.5.3.2 (5), wartość współczynnika niestateczności miejscowej wynosi:

Zgodnie z [2], 4.4 (2) smukłość wyboczeniowa wynosi:

Współczynnik smukłości jest mniejszy niż wartość graniczna 0,748 zgodnie z [1], 4.4(2). Nie ma więc konieczności redukcji, to znaczy: ρ = 1,0.

Pierwsze podejście szerokości efektywnej wynika z [1], równ. 5.13a do:

W kolejnym kroku określany jest współczynnik redukcyjny z uwagi na niestateczności postaciowe z wykorzystaniem efektywnego przekroju wyznaczonego w pierwszym podejściu. Na tym etapie uwzględnia się sprężyste podparcie translacyjne.

Własności efektywne przekroju elementu usztywniającego krawędź są obliczane za pomocą SHAPE-THIN. Sztywność krawędzi pokazano na rysunku 04.

  • As = 122,58 mm 2
  • Is = 7.130 mm 4
  • zs = 13,88 mm

Sztywność sprężysta K elementu usztywniającego krawędź jest określana na podstawie analizy statyczno-wytrzymałościowej dla całego przekroju. W tym celu do przekroju przykłada się jednostkowe obciążenie działające w środku ciężkości efektywnego elementu usztywniającego i obliczane jest odpowiadające temu odkształcenie δ. W przypadku przekroju prostokątnego w/h = t/t = 2/2 mm odkształcenie wynosi δ = 3,02 mm (Rysunek 05).

Sztywność sprężystą na jednostkę długości K można obliczyć według [1], równ. 5.9 można obliczyć w następujący sposób:

Naprężenie krytyczne sztywności krawędzi wynika z [1], równ. 5.15 w dniu:

Współczynnik smukłości obliczany jest według [1], równ. 5.12d do:

Zgodnie z [1], 5.5.3.1 (7), współczynnik redukcji z uwagi na niestateczność kształtu jest obliczany w następujący sposób:

Zredukowane efektywne pole przekroju sztywności krawędzi uzyskuje się poprzez uwzględnienie wyboczenia giętnego zgodnie z [1], równ. 5.17 do:

Efektywne właściwości przekroju przy czystym ściskaniu

Przekrój efektywny można zoptymalizować powtarzając procedurę iteracyjnie. W przypadku dwóch iteracji uzyskuje się następujące efektywne własności przekroju:

  • Pole przekroju Aeff = 4,62 cm²
  • Odległość środka ciężkości od środnika zs, eff = 42,18 mm
  • Przemieszczenie środka ciężkości eN, y = zs – * zs, eff = 8,78 mm

Określenie przekroju efektywnego dla naprężeń od czystego zginania

środnik

Środnik jest poddawany rozciąganiu, a zatem jest w pełni efektywny.

Pas z usztywnieniem krawędzi

W pierwszym podejściu efektywny przekrój elementu usztywniającego wyznaczany jest przy założeniu, że element ten stanowi sztywną podporę dla krawędzi przekroju oraz, że σcom, Ed = fybM0 .

pas

Zgodnie z [2], tabela 4.1, wartość współczynnika niestateczności miejscowej wynosi:

Zgodnie z [2], 4.4 (2) smukłość wyboczeniowa wynosi:

Współczynnik smukłości jest mniejszy niż wartość graniczna 0,856 zgodnie z [2], 4.4(2). Dzięki temu nie ma konieczności redukcji.

Zgodnie z [2], tabela 4.1, szerokości efektywne wynoszą:

usztywnienie brzegowe

Zgodnie z [1], 5.5.3.2 (5), wartość współczynnika niestateczności miejscowej wynosi:

Zgodnie z [2], 4.4 (2) smukłość wyboczeniowa wynosi:

Współczynnik smukłości jest mniejszy niż wartość graniczna 0,748 zgodnie z [1], 4.4(2). Nie ma więc konieczności redukcji, to znaczy: ρ = 1,0.

Pierwsze podejście szerokości efektywnej wynika z [1], równ. 5.13a do:

W kolejnym kroku określany jest współczynnik redukcyjny z uwagi na niestateczności postaciowe z wykorzystaniem efektywnego przekroju wyznaczonego w pierwszym podejściu. Na tym etapie uwzględnia się sprężyste podparcie translacyjne.

Własności efektywne przekroju elementu usztywniającego krawędź są obliczane za pomocą SHAPE-THIN. Sztywność krawędzi pokazano na rysunku 06.

  • As = 97,92 mm 2
  • Is = 6 271 mm 4
  • zs = 8,59 mm

Sztywność sprężysta K elementu usztywniającego krawędź jest określana na podstawie analizy statyczno-wytrzymałościowej dla całego przekroju. W tym celu do przekroju przykłada się jednostkowe obciążenie działające w środku ciężkości efektywnego elementu usztywniającego i obliczane jest odpowiadające temu odkształcenie δ. W przypadku przekroju prostokątnego w/h = t/t = 2/2 mm odkształcenie wynosi δ = 3,4 mm (Rysunek 07).

Sztywność sprężystą na jednostkę długości K można obliczyć według [1], równ. 5.9 można obliczyć w następujący sposób:

Naprężenie krytyczne sztywności krawędzi wynika z [1], równ. 5.15 w dniu:

Współczynnik smukłości obliczany jest według [1], równ. 5.12d do:

Zgodnie z [1], 5.5.3.1 (7), współczynnik redukcji z uwagi na niestateczność kształtu jest obliczany w następujący sposób:

Zredukowane efektywne pole przekroju sztywności krawędzi uzyskuje się poprzez uwzględnienie wyboczenia giętnego zgodnie z [1], równ. 5.17 do:

Efektywne właściwości przekroju przy czystym naprężeniu zginającym

Wszystkie części przekroju są w pełni efektywne, dzięki czemu iteracja nie jest konieczna.

  • Obszar Aeff = 6,86 cm²
  • Moduł przekroju Weff, y = 17.01 cm³

Wymiarowanie przekroju w złożonym stanie obciążenia: ściskanie i zginanie

Nośność na czyste ściskanie jest obliczana zgodnie z [1], 6.1.3 (1) w następujący sposób:

Nośność na czyste zginanie jest obliczana zgodnie z [1], 6.1.4.1 (1) w następujący sposób:

Dodatkowy moment wynikający z przesunięcia środka ciężkości jest określany zgodnie z [1], 6.1.9(2) w następujący sposób:

Obliczenia dla obciążeń złożonych od ściskania i zginania zgodnie z [1], 6.1.9 (1):


Warunek nośności jest zatem spełniony.

Modelowanie ceownika w SHAPE-THIN

Uogólnione przekroje formowane na zimno można modelować w SHAPE-THIN. W danych ogólnych należy zaznaczyć opcję „Części c/t i efektywne właściwości przekroju” (Rysunek 08).

Następnie w zakładce „Części c/t i przekrój efektywny” (Rysunek 09) w oknie dialogowym Parametry obliczeń należy wybrać opcję „EN 1993-1-3 (Przekrój formowany na zimno)”.

Przekrój efektywny należy określać osobno dla czystego ściskania i czystego zginania. Z tego względu należy zaznaczyć opcję „Zignorować dodatkowe momenty zginające ze względu na przesunięcie środka ciężkości przekroju efektywnego”.

W przykładzie tym, obliczenia przeprowadzono przy użyciu dwóch iteracji, dlatego też w SHAPE-THIN ustawione są dwie iteracje.

Opcjonalnie można sprawdzić warunki geometryczne, o których mowa w [2], 5.2., czy mają one zastosowanie do normy. W tym celu należy zaznaczyć odpowiednie pola wyboru.

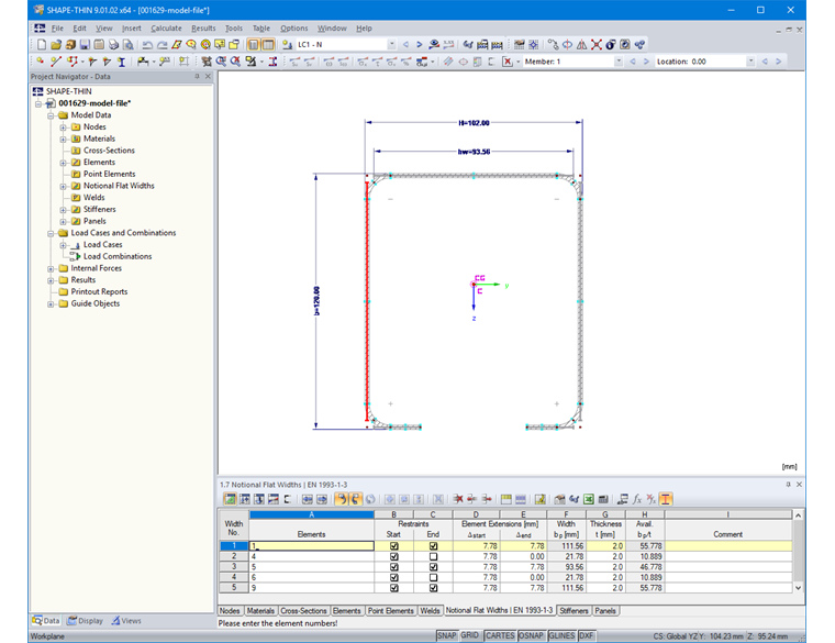
Najpierw należy wprowadzić elementy przekroju. Umowne szerokości części płaskich są zazwyczaj generowane automatycznie na podstawie zdefiniowanej geometrii, ale można je również zadać w tabeli „1.7 Nominalne szerokości płaskie zgodnie z EN 1993-1-3” (Rysunek 10) lub w odpowiednim oknie dialogowym.

Elementy usztywniające można zdefiniować w tabeli "1.8 Usztywnienia" lub w odpowiednim oknie dialogowym (Rysunek 11).

Dodatkowo należy zaznaczyć panel do określenia wyboczenia w tabeli "1.9 Panele" (Rysunek 12) lub w odpowiednim oknie dialogowym. W tym celu należy wybrać elementy panelu wyboczeniowego. Elementy usztywniające znajdujące się w usztywnionym panelu są rozpoznawane automatycznie.

Dodatkowo w tabeli "2.1 Przypadki obciążeń" (Rysunek 13) tworzony jest przypadek obciążenia dla siły ściskającej i zginania.

Następnie należy wprowadzić siły wewnętrzne w tabeli "3.1 Siły wewnętrzne" lub w odpowiednim oknie dialogowym (Rysunek 14).

Wyniki dla przekroju efektywnego są dostępne po naciśnięciu przycisku "Części efektywne" (Rysunek 15).

Wymiarowanie ceowników formowanych na zimno w RF/STEEL Cold-Formed Sections

Profile zimnogięte można wymiarować zgodnie z [1] i [2] za pomocą modułu dodatkowego RF-/STEEL Cold-Formed Sections.

W Danych ogólnych należy najpierw wybrać pręt i przypadek obciążenia, które mają zostać obliczone. Jako załącznik krajowy wybrano „CEN” (rysunek 16).

Parametry załącznika krajowego można wyświetlić, a w razie potrzeby dostosować, w zakładce "Formowane na zimno (EN 1993-1-3)" w odpowiednim oknie (Rysunek 17).

W Ustawieniach szczegółowych należy aktywować kontrolę obliczeń przekrojów formowanych na zimno w zakładce "Formowane na zimno" (Rysunek 18).

Należy przeprowadzać tylko obliczenia dla wymiarowania przekroju. Z tego względu należy dezaktywować pole wyboru „Przeprowadzić analizę stateczności” w zakładce „Stateczność“ w ustawieniach szczegółowych (Rysunek 19).

Po zakończeniu obliczeń odpowiednie tabele wyników przedstawiają, między innymi, efektywne właściwości przekroju wywołane siłą osiową N, momentem zginającym My, momentem zginającym Mz, siłami wewnętrznymi oraz podsumowanie obliczeń (Rysunek 20).


Autor

Sonja pracuje w dziale Product Engineering i dodatkowo wspiera dział Customer Support. Jej główny obszar zainteresowań to RSECTION oraz konstrukcje stalowe i aluminiowe, gdzie w sposób celowy wykorzystuje swoją wiedzę.

Odnośniki
Odniesienia
Pobrane


;