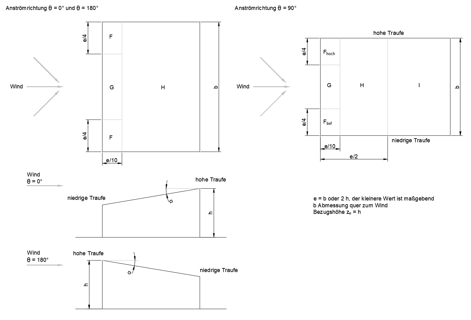
Einteilung der Dachflächen beim Pultdach
Einteilung der Dachflächen beim Pultdach
2024-05-30
009021
  • RFEM 5
  • RSTAB 8
  • Belka z drewna klejonego warstwowo RX-TIMBER 2
    • RX-TIMBER Roof 2
    • RX-TIMBER Continuous Beam 2
    • RX-TIMBER Purlin 2
    • RX-TIMBER Frame 2
    • Kolumna RX-TIMBER 2
    • RX-TIMBER Brace 2
    • Konstrukcje betonowe
    • Konstrukcje stalowe
    • Konstrukcje drewniane
    • Budynki
    • Analiza statyczno-wytrzymałościowa
    • Eurocode 0
    • Eurocode 1

Einteilung der Dachflächen beim Pultdach

Wykorzystano w
  • Obciążenie wiatrem na dachach Monopitch i Duopitch w Niemczech
Udostępnij