Wiatr jest oczywiście zmiennym w czasie oddziaływaniem na konstrukcję znajdującą się na zewnątrz. W celu połączenia tego obciążenia z innymi oddziaływaniami (obciążenie użytkowe, śnieg itp.) w zdefiniowanych sytuacjach obliczeniowych zgodnie z normą DIN EN 1990 oddziaływanie wiatru jest klasyfikowane jako zmienne oddziaływanie swobodne. Podczas budowy należy uwzględnić zmiany współczynników aerodynamicznych wywołane innymi oddziaływaniami (śnieg, ruch uliczny lub lód) oraz modyfikacjami konstrukcji. Przyjmuje się jednak, że okna i drzwi są zamknięte w przypadku obciążenia wiatrem. Okna i drzwi, które są nieuchronnie otwarte, należy traktować jako przypadkowe sytuacje obliczeniowe.
Dynamiczne obciążenie wiatrem należy przedstawić w sposób uproszczony jako równoważne naporowi wiatru lub sile wiatru maksymalnemu oddziaływaniu wiatru turbulentnego. Wiatr działa na powierzchnie zewnętrzne w przypadku konstrukcji zamkniętych oraz dodatkowo na powierzchnie wewnętrzne w przypadku konstrukcji przepuszczalnych lub otwartych. Oddziaływanie należy przyłożyć prostopadle do rozpatrywanych powierzchni. W przypadku dużych powierzchni narażonych na cyrkulację wiatru należy dodatkowo uwzględnić składową tarcia, równoległą do pola powierzchni.
Norma wiatrowa DIN EN 1991-1-4 wraz z załącznikiem krajowym określa obciążenie wiatrem jako wartość charakterystyczną. Wartość tę określa bazowa prędkość wiatru z roczną wartością prawdopodobieństwa przekroczenia 2% i średnim okresem powrotu wynoszącym 50 lat.
Wynikowe obciążenie wiatrem w przypadku budynków wystarczająco sztywnych i niepodatnych na drgania można opisać jako statyczną siłę zastępczą zależną od maksymalnej prędkości. Natomiast w przypadku budynków podatnych na drgania prędkość szczytowa jest dodatkowo modyfikowana współczynnikiem konstrukcyjnym w celu określenia statycznego obciążenia zastępczego [1] , [2].
W uproszczeniu, konstrukcje nie są uważane za podatne na drgania, jeżeli odkształcenie pod obciążeniem wiatrem, wywołane rezonansem porywistego wiatru, nie jest zwiększone o więcej niż 10%. Kryterium to dotyczy typowych budynków o wysokości do 25 m, które nie są podatne na drgania. We wszystkich innych przypadkach można zastosować następujące kryterium klasyfikacji [3] :
Gdzie
xS = przemieszczenie głowy w m pod wpływem ciężaru własnego przyłożonego zgodnie z kierunkiem wiatru
h = wysokość budynku w m; href = 25 m
b = szerokość budynku prostopadła do kierunku wiatru w m
δ = logarytmiczny dekrement tłumienia zgodnie z DIN EN 1991-1-4, załącznik F
| Typ konstrukcji | Tłumienie budynku δmin |
|---|---|
| Konstrukcja z betonu zbrojonego | 0,1 |
| Konstrukcja stalowa | 0,05 |
| Konstrukcja mieszana (stalowo-betonowa) | 0,08 |
Zależne od wysokości szczytowe ciśnienie prędkości
Obciążenie wiatrem budynku niepodatnego na drgania zależy od szczytowego ciśnienia prędkości qp. Wartość ta wynika z prędkości podmuchu wiatru o długości od dwóch do czterech sekund, przy uwzględnieniu warunków terenowych w otoczeniu. W celu określenia obciążenia w miejscu, załącznik krajowy Niemiec zawiera mapę stref wiatrowych z odpowiednimi wartościami podstawowymi prędkości wiatru vb,0, podstawowymi wartościami ciśnień bazowych wiatru qb,0 q b,0 oraz specyfikacją różne typy terenu (kategorie I - IV) [1] , [2] , [3].
Wraz ze wzrostem strefy wiatru zwiększa się również podstawowa wartość podstawowej prędkości wiatru.
Kategoria terenu wzrasta wraz z nierównością terenu.
| teren | Opis prac |
|---|---|
| Kategoria terenu I | Otwarte morze; jeziora o otwartej powierzchni w kierunku wiatru co najmniej 5 km; teren gładki, płaski bez przeszkód |
| Kategoria terenu II | Teren z żywopłotami, pojedynczymi gospodarstwami, domami lub drzewami (na przykład tereny rolne) |
| Kategoria terenu III | Przedmieścia, obszary przemysłowe lub handlowe; lasy |
| Kategoria terenu IV | Tereny miejskie, na których co najmniej 15% powierzchni stanowi zabudowa o średniej wysokości przekraczającej 15 m |
| Wybrzeże o profilu mieszanym | Obszar przejściowy między kategoriami terenu I i II |
| Mieszany profil w głębi kraju | Rejon przejściowy między kategoriami terenu II i III |
Szczytowe ciśnienie prędkości vb,0 można wyznaczyć poprzez zdefiniowanie podstawowej wartości prędkości wiatru qp oraz typu terenu.
| Szczytowe ciśnienie prędkości qp w kN/m² [3] | Podejście 1 Tabela NA-B.1 | Metoda 2 NA.B.3.3 | Podejście 3 NA.B.3.2 | |||||||
|---|---|---|---|---|---|---|---|---|---|---|
| Wpływ poziomu morza NNmod | Poniżej 800 m n.p.m. | 1,0 | ||||||||
| Między 800 m a 1100 m n.p.m. | 0,2 + Hs/1000 | |||||||||
| Ponad 1100 m n.p.m. | Wymagane specjalne uwagi | |||||||||
| Strefa wiatrowa | 1 | 2 | 3 | 4 | 1 | 2 | 3 | 4 | ||
| podstawowa wartość bazowej prędkości wiatru vb,0 w m/s | 22.5 | 25.0 | 27.5 | 30.0 | - | - | - | - | ||
| Współczynnik kierunkowy cdir | 1,0 | - | - | - | - | |||||
| współczynnik pory roku cseason | 1,0 | - | - | - | - | |||||
| bazowa prędkość wiatru qb w kN/m² | 0,32 | 0,39 | 0,47 | 0,56 | - | - | - | - | ||
| Kategoria terenu | Wysokość konstrukcji | qp w kN/m² | ||||||||
| qp (z) w kN/m² | ||||||||||
| Kategoria terenu I | Do 2 m² | 1.90 ⋅ qb ⋅ NNmod - | - | - | - | - | ||||
| 2 m do 300 m² | 2,60 ⋅ qb ⋅ (z/10)0,19 ⋅ NNmod | |||||||||
| Kategoria terenu II | Do 4 m² | 1,70 ⋅ qb ⋅ NNmod - | - | - | - | - | ||||
| 4 m do 300 m² | 2,10 ⋅ qb ⋅ (z/10)0,24 ⋅ NNmod | |||||||||
| Kategoria terenu III | Do 8 m² | 1,50 ⋅ qb ⋅ NNmod - | - | - | - | - | ||||
| 8 m do 300 m² | 1,60 ⋅ qb ⋅ (z/10)0,31 ⋅ NNmod | |||||||||
| Kategoria terenu IV | Do 16 m² | 1.30 ⋅ qb ⋅ NNmod - | - | - | - | - | ||||
| 16 m do 300 m² | 1,10 ⋅ qb ⋅ (z/10)0,40 ⋅ NNmod | |||||||||
| Wyspy na Morzu Północnym I | Do 2 m² | 1.10 ⋅ NNmod | - | - | - | - | ||||
| 2 m do 300 m² | 1,50 ⋅ (z/10)0,19 ⋅ NNmod | |||||||||
| Obszary przybrzeżne i wyspy Morza Bałtyckiego I - II | Do 4 m² | 1,80 ⋅ qb ⋅ NNmod | - | - | - | - | ||||
| 4 m do 50 m² | 2,30 ⋅ qb ⋅ (z/10)0,27 ⋅ NNmod | |||||||||
| 50 m do 300 m² | 2,60 ⋅ qb ⋅ (z/10)0,19 ⋅ NNmod | |||||||||
| Obszary śródlądowe II - III | Do 7 m² | 1,50 ⋅ qb ⋅ NNmod | - | - | - | - | ||||
| 7 m do 50 m² | 1,70 ⋅ qb ⋅ (z/10)0,37 ⋅ NNmod | |||||||||
| 50 m do 300 m² | 2,10 ⋅ qb ⋅ (z/10)0,24 ⋅ NNmod | |||||||||
| Podziemny | Do 10 m² | - | - | 0.50 ⋅ NNmod | 0,65 ⋅ NNmod | 0,80 ⋅ NNmod | 0,95 ⋅ NNmod | |||
| 10 m do 18 m² | 0,65 ⋅ NNmod | 0,80 ⋅ NNmod | 0,95 ⋅ NNmod | 1.15 ⋅ NNmod | ||||||
| 18 m do 25 m² | 0,75 ⋅ NNmod | 0,90 ⋅ NNmod | 1.10 ⋅ NNmod | 1.30 ⋅ NNmod | ||||||
| Morze Bałtyckie | Do 10 m² | - | - | - | 0,85 ⋅ NNmod | 1.05 ⋅ NNmod | - | |||
| 10 m do 18 m² | - | 1,00 ⋅ NNmod | 1.20 ⋅ NNmod | - | ||||||
| 18 m do 25 m² | - | 1.10 ⋅ NNmod | 1.30 ⋅ NNmod | - | ||||||
| Wybrzeże Morza Północnego i Bałtyckiego oraz wyspy na Morzu Bałtyckim | Do 10 m² | - | - | - | - | - | 1,25 ⋅ NNmod | |||
| 10 m do 18 m² | - | - | - | 1.40 ⋅ NNmod | ||||||
| 18 m do 25 m² | - | - | - | 1,55 ⋅ NNmod | ||||||
| Wyspy Morza Północnego | Do 10 m² | - | - | - | - | - | 1.40 ⋅ NNmod | |||
| 10 m do 18 m² | - | - | - | Zgodnie z podejściem 2 | ||||||
| 18 m do 25 m² | - | - | - | Zgodnie z podejściem 2 | ||||||
Określanie lokalnego podstawowego ciśnienia prędkości wiatru za pomocą serwisu online firmy Dlubal
Usługa online firmy Dlubal Strefy obciążenia śniegiem, wiatru i trzęsienia ziemi łączy standardowe specyfikacje z technologiami cyfrowymi. Usługa umieszcza odpowiednią mapę strefową na mapie Google Maps, w zależności od wybranego typu obciążenia (śnieg, wiatr, trzęsienie ziemi) i normy krajowej. Wprowadź lokalizację, współrzędne geograficzne lub warunki lokalne w wyszukiwarce, aby uzyskać odpowiednie dane. Narzędzie określa następnie obciążenie charakterystyczne lub przyspieszenie w tym miejscu na podstawie dokładnej wysokości nad poziomem morza i wprowadzonych danych strefy. Jeżeli nie można zdefiniować lokalizacji przy pomocy konkretnego adresu, można powiększyć mapę i wybrać prawidłową lokalizację. Po wybraniu właściwej lokalizacji na mapie obliczenia zostaną dostosowane do nowej wysokości i wyświetlą zaktualizowane obciążenia.
Usługa online jest dostępna na stronie internetowej Dlubal pod adresem Rozwiązania → Usługi online.
Poprzez zdefiniowanie parametrów...
1. typ obciążenia = wiatr
Drugi norma = EN 1991-1-4
3. Załącznik = Niemcy | DIN EN 1991-1-4
4. Adres = Zellweg 2, Tiefenbach
...dla wybranej lokalizacji daje to:
5. strefa wiatru
6 dodatkowe informacje, jeśli dotyczy
7. bazowa bazowa prędkość wiatru vb,0
8. bazowe ciśnienie wiatru qb
W przypadku wybrania pozycji powyżej 1100 m serwis online wyświetla się w punkcie 6 "Brak zdefiniowanego obciążenia wiatrem powyżej 1100 m | NCI A.2 (3)". Żadnego obciążenia nie można określić zgodnie z istniejącą regułą i należy wziąć pod uwagę tę lokalizację.
ciśnienie wiatru na powierzchnie
Ciśnienie wiatru działające na powierzchnię jest iloczynem szczytowego ciśnienia prędkości wiatru pomnożonego przez współczynnik aerodynamiczny [1] , [2].
Dla powierzchni zewnętrznych:
we =qp (ze ) ⋅cpe
Gdzie
qp (ze ) = szczytowe ciśnienie prędkości
ze = wysokość odniesienia dla ciśnienia zewnętrznego
cpe = współczynnik aerodynamiczny dla ciśnienia zewnętrznego
Dla powierzchni wewnętrznych:
wi =qp (zi ) ⋅ cpi
Gdzie
qp (zi ) = szczytowe ciśnienie prędkości
zi = wysokość odniesienia dla ciśnienia wewnętrznego
cpi = współczynnik aerodynamiczny dla ciśnienia wewnętrznego
Wynikowe obciążenie ciśnieniem zewnętrznym i wewnętrznym jest obciążeniem netto ciśnieniem na powierzchnię. Nacisk na powierzchnię jest traktowany jako dodatni, a ciśnienie (ssanie) od powierzchni jako ujemne.
Ciśnienie netto:
wnetto = we + wi
Wybrane współczynniki aerodynamiczne
Na powierzchnię konstrukcji, która jest narażona na działanie wiatru, działają obciążenia parcia i ssania. Wielkość oddziaływania na powierzchnie zewnętrzne zależy od obszaru przyłożenia obciążenia. Obszar przyłożenia obciążenia to powierzchnia, która aktywnie przejmuje dwuwymiarowe obciążenie wiatrem i przenosi je w sposób skoncentrowany na konstrukcję poniżej. W przypadku tego typu analizy norma zawiera współczynniki aerodynamicznego ciśnienia zewnętrznego, które zależą od powierzchni przyłożenia obciążenia [1] , [2].
| Obszar przyłożenia obciążenia A [3] | Aerodynamika Współczynnik ciśnienia zewnętrznego cpe | Opis prac |
|---|---|---|
| <1 m² | cpe,1 | Wymiarowanie małych elementów konstrukcyjnych i ich zakotwień (na przykład elementów obudowy lub dachu) |
| 1 m² do 10 m² | cpe,1 - (cpe,1 - cpe,10 ) ⋅ log10 (A) | |
| > 10 m² | cpe,10 | Wymiarowanie całej konstrukcji |
ściany pionowe budynków na rzucie prostokąta
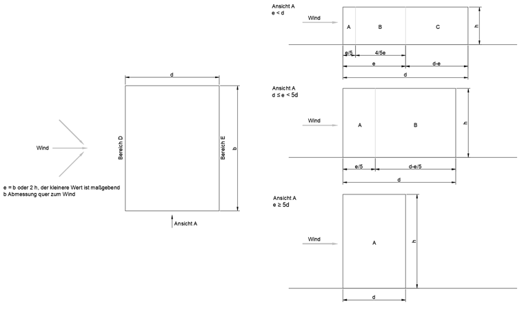
Prędkość wiatru w naturalny sposób wzrasta nieliniowo wraz z wysokością nad ziemią. Uzyskany rozkład szczytowego ciśnienia prędkości można zastosować w sposób uproszczony i skalowany na podstawie wysokości powierzchni budynku nawietrznej (obszar D nawietrznej) w zależności od stosunku wysokości budynku h do szerokości budynku b [1] , [2].
Obciążenia ssaniem ścian pozostałych zawietrznych powierzchni budynku, równoległych do wiatru (obszary A, B, C i E), zależą od aerodynamiki budynku. Ostateczne współczynniki aerodynamiczne dla powierzchni zewnętrznych mogą być określane i stosowane w skali, w zależności od stosunku wysokości h budynku do głębokości budynku d.
| Powierzchnia | B | C | D | E | ||||||
|---|---|---|---|---|---|---|---|---|---|---|
| h/d | cpe,10 | cpe,1 | cpe,10 | cpe,1 | cpe,10 | cpe,1 | cpe,10 | cpe,1 | cpe,10 | cpe,1 |
| ≥5 | -1,4 | -1,7 | -0,8 | -1,1 | -0,5 | -0,7 | +0.8 | +1,0 | -0,5 | -0,7 |
| 1 | -1,2 | -1,4 | -0,8 | -1,1 | -0,5 | +0.8 | +1,0 | -0,5 | ||
| ≤0,25 | -1,2 | -1,4 | -0,8 | -1,1 | -0,5 | +0.8 | +1,0 | -0,3 | -0,5 | |
| W przypadku budynków wolnostojących zlokalizowanych na terenach otwartych mogą wystąpić większe siły ssania w obszarze ssania. Dozwolona jest liniowa interpolacja wartości pośrednich. W przypadku budynków o h/d> 5, całkowite obciążenie wiatrem należy określić na podstawie wartości sił zgodnie z DIN EN 1991-1-4 oraz załącznikiem krajowym, rozdziały 7.6 do 7.8 i 7.9.2. | ||||||||||
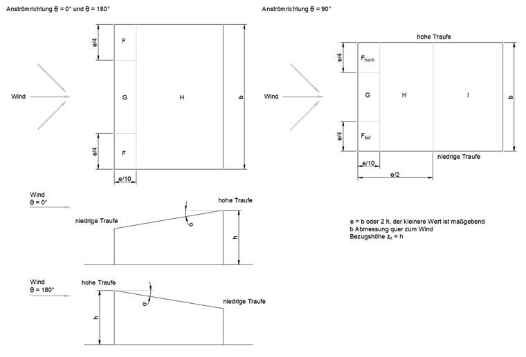
Jednospadowy
Podobnie jak gabaryty budynku, kształt dachu ma również wpływ aerodynamiczny na zewnętrzne powierzchnie dachu. Dach o kącie nachylenia większym niż 5° z charakterystycznym wysokim i niskim okapem nazywany jest dachem jednospadowym. Ze względu na aerodynamikę na powierzchnie przyłożenia obciążenia oddziałują obciążenia wiatrem, w zależności od nachylenia dachu [1] , [2].
| Powierzchnia | b | [SCHOOL.NUMBEROFSINGLEUSERLICENCES] | h | I | ||||||
|---|---|---|---|---|---|---|---|---|---|---|
| Kierunek przepływu θ = 0°2) | ||||||||||
| Kąt wychylenia α1) | cpe,10 | cpe,1 | cpe,10 | cpe,1 | cpe,10 | cpe,1 | cpe,10 | cpe,1 | ||
| 5° | -1,7 | -2,5 | -1,2 | -2,0 | -0,6 | -1,2 | - | - | ||
| +0.0 | +0.0 | +0.0 | ||||||||
| 15° | -0,9 | -2,0 | -0,8 | -1,5 | -0,3 | - | - | |||
| +0.2 | +0.2 | +0.2 | ||||||||
| 30° | -0,5 | -1,5 | -0,5 | -1,5 | -0,2 | - | - | |||
| +0,7 | +0,7 | +0,4 | ||||||||
| 45° | -0,0 | -0,0 | -0,0 | - | - | |||||
| +0,7 | +0,7 | +0.6 | ||||||||
| 60° | +0,7 | +0,7 | +0,7 | - | - | |||||
| 75° | +0.8 | +0.8 | +0.8 | - | - | |||||
| Kierunek przepływu θ = 180° | ||||||||||
| 5° | -2,3 | -2,5 | -1,3 | -2,0 | -0,8 | -1,2 | - | - | ||
| 15° | -2,5 | -2,8 | -1,3 | -2,0 | -0,9 | -1,2 | - | - | ||
| 30° | -1,1 | -2,3 | -0,8 | -1,5 | -0,8 | - | - | |||
| 45° | -0,6 | -1,3 | -0,5 | -0,7 | - | - | ||||
| 60° | -0,5 | -1,0 | -0,5 | -0,5 | - | - | ||||
| 75° | -0,5 | -1,0 | -0,5 | -0,5 | - | - | ||||
| Kierunek przepływu θ = 90° | ||||||||||
| fwysokie | Fniska | |||||||||
| cpe,10 | cpe,1 | cpe,10 | cpe,1 | |||||||
| 5° | -2,1 | -2,6 | -2,1 | -2,4 | -1,8 | -2,0 | -0,6 | -1,2 | -0,5 | |
| 15° | -2,4 | -2,9 | -1,6 | -2,4 | -1,9 | -2,5 | -0,8 | -1,2 | -0,7 | -1,2 |
| 30° | -2,1 | -2,9 | -1,3 | -2,0 | -1,5 | -2,0 | -1,0 | -1,3 | -0,8 | -1,2 |
| 45° | -1,5 | -2,4 | -1,3 | -2,0 | -1,4 | -2,0 | -1,0 | -1,3 | -0,9 | -1,2 |
| 60° | -1,2 | -2,0 | -1,2 | -2,0 | -1,2 | -2,0 | -1,0 | -1,3 | -0,7 | -1,2 |
| 75° | -1,2 | -2,0 | -1,2 | -2,0 | -1,2 | -2,0 | -1,0 | -1,3 | -0,5 | |
| 1) Interpolacja liniowa wartości pośrednich jest dozwolona pod warunkiem, że znak nie ulega zmianie. Dla interpolacji podana jest wartość 0,0. 2) Dla kierunku przepływu θ = 0° i kątów nachylenia α = +5° do +45° ciśnienie zmienia się bardzo szybko między wartościami dodatnimi i ujemnymi. Dlatego dla tego obszaru podany jest zarówno dodatni, jak i ujemny współczynnik ciśnienia zewnętrznego. W przypadku takich dachów oba przypadki (ciśnienie i ssanie) należy rozpatrywać osobno, biorąc pod uwagę, po pierwsze, tylko wartości dodatnie (ciśnienie), a po drugie, tylko wartości ujemne (ssanie). | ||||||||||
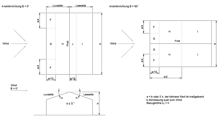
Dach dwuspadowy
Bryła składająca się z dwóch przeciwległych połaci dachowych, które przecinają się w górnej poziomej krawędzi w kalenicy, nazywana jest dachem dwuspadowym. Ta geometria ma swój własny wpływ aerodynamiczny na obszary przyłożenia obciążenia [1] , [2].
| Powierzchnia | b | [SCHOOL.NUMBEROFSINGLEUSERLICENCES] | h | I | J | ||||||
|---|---|---|---|---|---|---|---|---|---|---|---|
| Kierunek przepływu θ = 0°2) | |||||||||||
| Kąt wychylenia α1) | cpe,10 | cpe,1 | cpe,10 | cpe,1 | cpe,10 | cpe,1 | cpe,10 | cpe,1 | cpe,10 | cpe,1 | |
| 5° | -1,7 | -2,5 | -1,2 | -2,0 | -0,6 | -1,2 | -0,6 | +0.2 | |||
| +0.0 | +0.0 | +0.0 | -0,6 | ||||||||
| 15° | -0,9 | -2,0 | -0,8 | -1,5 | -0,3 | -0,4 | -1,0 | -1,5 | |||
| +0.2 | +0.2 | +0.2 | +0.0 | +0.0 | +0.0 | ||||||
| 30° | -0,5 | -1,5 | -0,5 | -1,5 | -0,2 | -0,4 | -0,5 | ||||
| +0,7 | +0,7 | +0,4 | +0.0 | +0.0 | |||||||
| 45° | -0,0 | -0,0 | -0,0 | -0,2 | -0,3 | ||||||
| +0,7 | +0,7 | +0.6 | +0.0 | +0.0 | |||||||
| 60° | +0,7 | +0,7 | +0,7 | -0,2 | -0,3 | ||||||
| 75° | +0.8 | +0.8 | +0.8 | -0,2 | -0,3 | ||||||
| Kierunek przepływu θ = 90° | |||||||||||
| 5° | -1,6 | -2,2 | -1,3 | -2,0 | -0,7 | -1,2 | -0,6 | - | - | ||
| 15° | -1,3 | -2,0 | -1,3 | -2,0 | -0,6 | -1,2 | -0,5 | - | - | ||
| 30° | -1,1 | -1,5 | -1,4 | -2,0 | -0,8 | -1,2 | -0,5 | - | - | ||
| 45° | -1,1 | -1,5 | -1,4 | -2,0 | -0,9 | -1,2 | -0,5 | - | - | ||
| 60° | -1,1 | -1,5 | -1,2 | -2,0 | -0,8 | -1,0 | -0,5 | - | - | ||
| 75° | -1,1 | -1,5 | -1,2 | -2,0 | -0,8 | -1,0 | -0,5 | - | - | ||
| 1) Dla kierunku przepływu θ = 0° i kątów nachylenia α = -5° do +45° ciśnienie zmienia się bardzo szybko między wartościami dodatnimi i ujemnymi. Dlatego wskazywana jest zarówno wartość dodatnia, jak i ujemna. W przypadku takich dachów należy rozważyć cztery przypadki, w których najmniejsza lub największa wartość dla obszarów F, G i H jest połączona z najmniejszą lub największą wartością dla obszarów I i J. Na powierzchni dachu nie można mieszać wartości dodatnich i ujemnych. 2) W przypadku przechyłów dachu pomiędzy podanymi wartościami dopuszcza się interpolację liniową pod warunkiem, że znak współczynników ciśnienia nie ulega zmianie. W przypadku nachylenia pomiędzy α = +5° a -5° należy stosować wartości dla dachów płaskich zgodnie z DIN EN 1991-1-4 oraz rozdział 7.2.3. Dla interpolacji podana jest wartość zero. | |||||||||||