Charakterystyki przekroju efektywnego
Charakterystyki przekroju efektywnego
2024-05-30
016838
  • SHAPE-THIN 8
  • SHAPE-THIN 9
  • Eurocode 3
    • Eurocode 9
    • DIN 18800

Charakterystyki przekroju efektywnego

Wykorzystano w
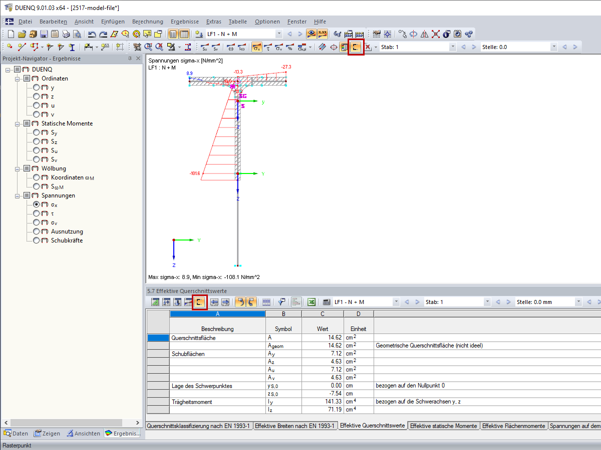
  • Wyznaczanie efektywnych właściwości przekroju zgodnie z EC 3 lub EC 9 w SHAPE-THIN
Udostępnij