1958x
002517
2019-02-26

Wyznaczanie efektywnych właściwości przekroju zgodnie z EC 3 lub EC 9 w SHAPE-THIN

Jak określić efektywne właściwości przekroju zgodnie z EC 3 lub EC 9 w SHAPE-THIN?


Odpowiedź:

W Danych ogólnych przekroju należy aktywować opcję "Części c/t i efektywne właściwości przekroju". Über die Schaltfläche "Berechnungsparameter" können Sie dann den gleichnamigen Dialog aufrufen. Im zweiten Register legen Sie die gewünschte Norm fest (Bild 1).

Es sind dann die Elemente des Querschnitts einzugeben. Die c/t-Teile werden in der Regel automatisch aus den Geometriebedingungen erzeugt, können aber auch benutzerdefiniert in Tabelle 1.7 Querschnittsteile für Klassifizierung oder dem entsprechenden Dialog angelegt werden (Bild 2).

In Tabelle 2.1 Lastfälle (Bild 3) bzw. im Dialog "Lastfälle und Kombinationen bearbeiten" ist dann ein Lastfall und in Tabelle 3.1 bzw. im Dialog "X-Stelle bearbeiten" sind dann die Schnittgrößen zu definieren (Bild 4).


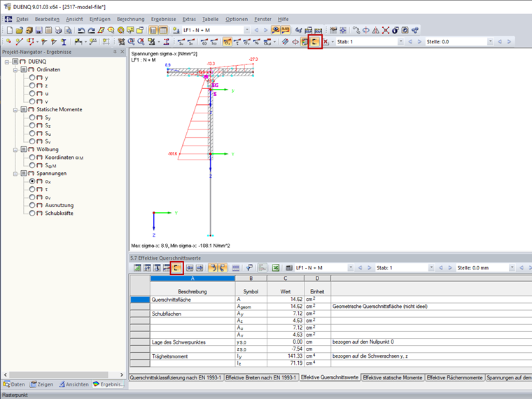
Die Ergebnisse des wirksamen Querschnitts sind nach der Berechnung mit der Schaltfläche Effektive Breiten zugänglich (Bild 5).


Autor

Pani von Bloh zapewnia naszym klientom wsparcie techniczne i jest odpowiedzialna za rozwój programu SHAPE‑THIN oraz konstrukcji stalowych i aluminiowych.

Pobrane


;