Uwaga w RF-/JOINTS Steel DSTV
  • 3D Viewer
  • 3D Viewer | Babylon
  • Wirtualna rzeczywistość
Uwaga w RF-/JOINTS Steel DSTV
2024-05-30
019084
  • JOINTS Stal | DSTV 8
  • RF-JOINTS Steel | DSTV 5
  • Konstrukcje stalowe
    • Połączenia stalowe
    • Eurocode 3

Uwaga w RF-/JOINTS Steel DSTV

Wykorzystano w
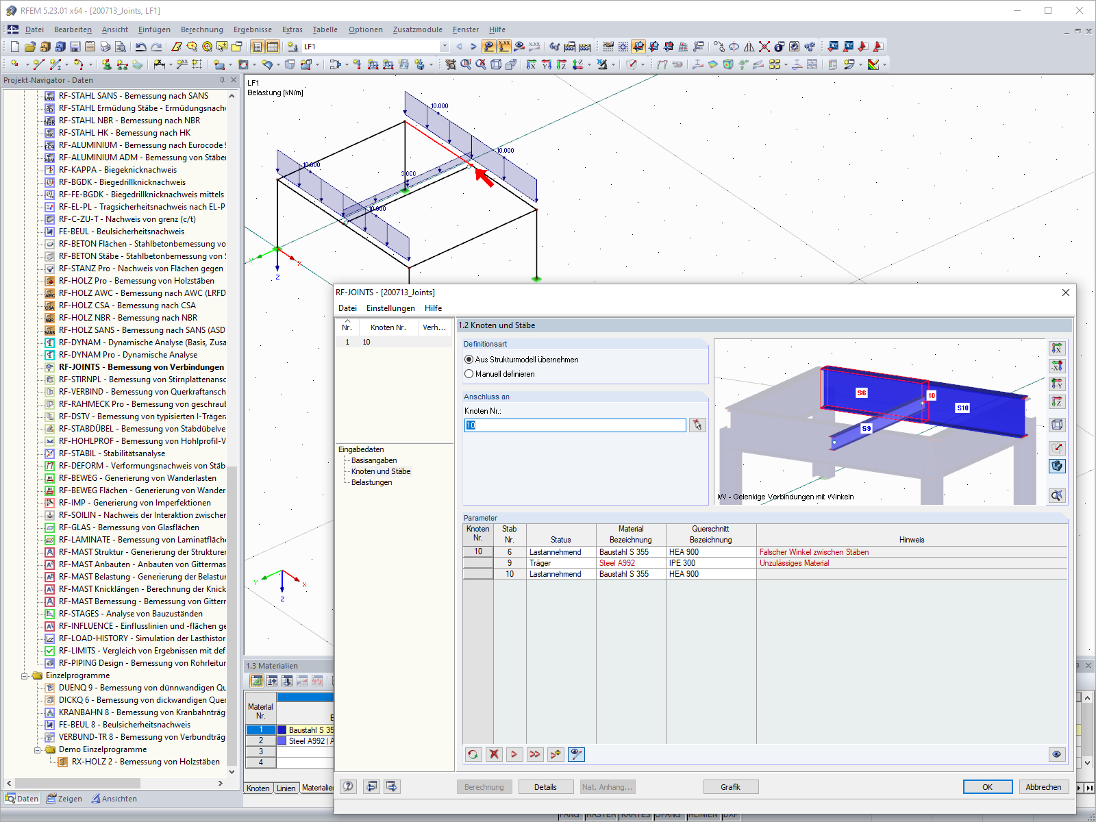
  • Komunikat o błędzie "Nieprawidłowa geometria" i "Nieprawidłowy materiał" w RF-/JOINTS Steel - DSTV
Model 3D
Więcej o modelu 3D
  • belka stropowa
Specyfikacje
Liczba węzłów 9
Liczba linii 12
Liczba prętów 2
Liczba powierzchni 4
Ilość brył 0
Ilość przypadków obciążenia 1
Ilość KO 0
Liczba kombinacji wyników 0
Ciężar całkowity 85,500 t
Wymiary (metryczne) 15,000 x 0,000 x 12,000 m
Wymiary (imperialne) 49.21 x 0 x 39.37 feet
Udostępnij