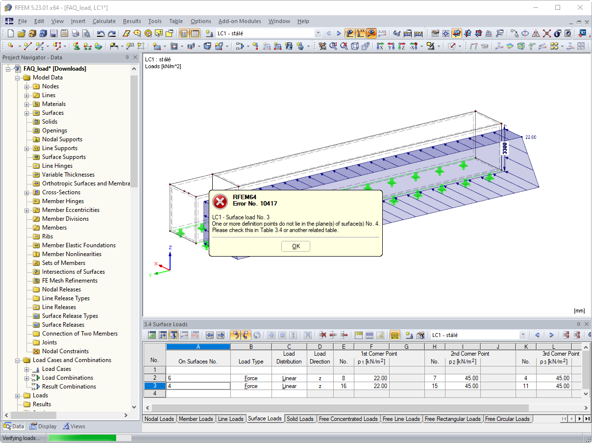
Błąd nr 10417
Błąd nr 10417
2024-05-30
019098
  • RFEM 5

Błąd nr 10417

Wykorzystano w
  • Błąd nr 10417 dla obciążenia powierzchniowego
Udostępnij