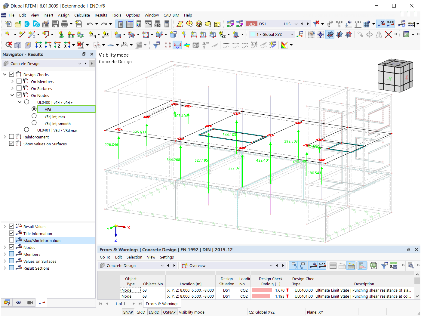
Obciążenie przebijające
Obciążenie przebijające
2024-05-30
027136
  • RFEM 6
  • Konstrukcje betonowe

Obciążenie przebijające

Wykorzystano w
  • Obliczanie przebicia w RFEM 6
Udostępnij