11139x
001728
2021-12-23

Obliczanie przebicia w RFEM 6

Obliczenia na przebicie zgodnie z EN 1992-1-1 należy przeprowadzić dla płyt poddanych obciążeniu skupionemu lub reakcji. Węzeł, w którym przeprowadzana jest analiza nośności na przebicie (tj. w miejscu, w którym występuje problem z przebiciem) nazywany jest węzłem odporności na przebicie. Obciążenie skupione w tych węzłach może zostać wprowadzone przez słupy, siłę skupioną lub podpory węzłowe. Koniec przyłożenia obciążenia liniowego na płyty również jest traktowany jako obciążenie skupione, dlatego należy również kontrolować nośność na ścinanie na końcach, narożach i końcach ścian oraz na końcach lub narożach obciążeń liniowych i podpór liniowych.

obwód krytyczny

Sprawdzenie na przebicie jest przeprowadzane na podstawowym obwodzie kontrolnym, gdzie sprawdzane jest, czy działająca siła tnąca vEd przekracza nośność vRd. Zgodnie z rozdziałem 6.4.2 normy EC 2 [1] obwód kontrolny płyt znajduje się w odległości podwójnej wysokości efektywnej (d) płyty od punktu przyłożenia obciążenia.

Wymiary słupa oraz otwory w płycie wpływają na geometrię obwodu kontrolnego i powinny być uwzględniane w odległości 6 d od powierzchni obciążenia. Ważne jest, aby wcześniej zdefiniować wszystkie otwory (tj. podczas analizy MES), aby program mógł je automatycznie rozpoznać i uwzględnić przy obliczaniu przebicia, jak pokazano na rysunku 1.

Parametry obliczeniowe przebicia w RFEM 6

Zakładając, że rozszerzenie Projektowanie konstrukcji betonowych zostało już aktywowane, obliczanie wytrzymałości na przebicie w programie RFEM 6 można zainicjować poprzez zaznaczenie opcji Obliczenia przebicia we właściwościach węzła przebicia (rysunek 2). Można wybrać wszystkie węzły, w których wystąpił problem z przebiciem, i aktywować obliczenia przebicia jednocześnie dla nich wszystkich. Alternatywnie, węzły z przebiciem można wybrać do obliczeń w danych wejściowych tabeli Obliczenia betonu (rysunek 3).


Parametry obliczeniowe dla przebicia dla wybranych węzłów można zdefiniować w konfiguracji stanu granicznego nośności dla wymiarowania betonu (rys. 4). W ten sposób obciążenie przebijające, współczynnik przyrostu obciążenia β uwzględniający asymetryczny rozkład siły tnącej na obwodzie kontrolnym oraz minimalny rozstaw zbrojenia można ustawić w zakładce Przebicie konfiguracji granicznej stanu granicznego nośności (rysunek 5).


Obciążenie przebijające dla ścian jest siłą tnącą (wygładzoną lub niewygładzoną) na obwodzie krytycznym, natomiast w przypadku słupów obciążeniem przebijającym może być siła tnąca (wygładzone lub niewygładzone) na obwodzie krytycznym lub pojedyncza siła od słupa, obciążenie, lub podporą węzłową.

Współczynnik przyrostu obciążenia zgodnie z EN 1992-1-1 [1] można oszacować z uwzględnieniem w pełni plastycznego rozkładu ścinania, jak pokazano na rysunku 6, lub za pomocą stałych współczynników. Może być również określona przez model sektorowy lub zdefiniowana przez użytkownika.

Obliczanie wytrzymałości na przebicie w RFEM 6

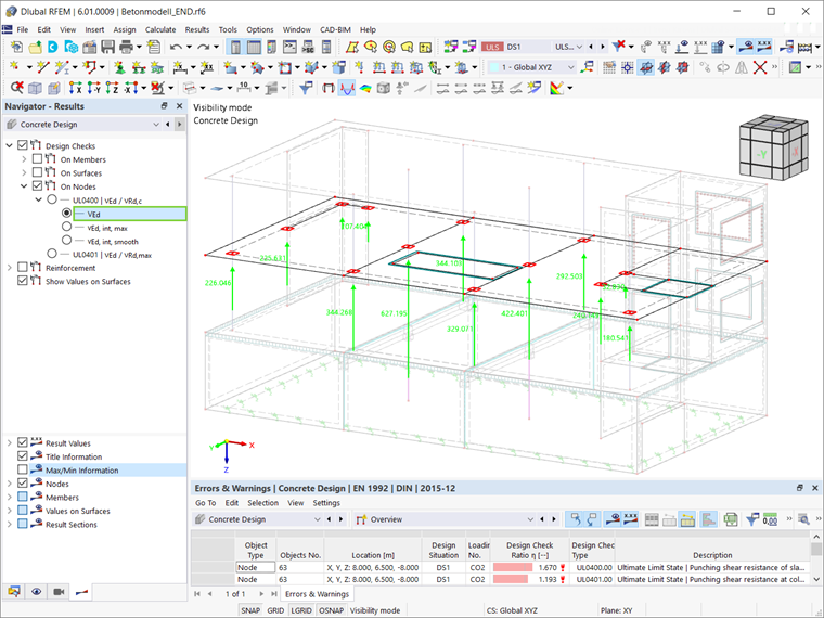
Zakładając, że parametry przebicia zostały zdefiniowane, można przeprowadzić wymiarowanie betonu (wraz z przebiciem). Po pierwsze, obliczenia można przeprowadzić, biorąc pod uwagę tylko zbrojenie podłużne, które zostało już założone na powierzchni (rysunek 7). Po zakończeniu wymiarowania betonu z uwzględnieniem tylko tego zbrojenia stopnie wykorzystania pod względem wytrzymałości na ścinanie dla wszystkich rozpatrywanych węzłów są dostępne zarówno w formie graficznej, jak i w tabelach (rysunek 8).


Stopnie wykorzystania w węzłach przebicia są w rzeczywistości porównaniem między nośnością na ścinanie bez zbrojenia na ścinanie vRd,c, wyznaczoną zgodnie z 6.4.4 (1) [1] oraz maksymalne naprężenie styczne vEd obliczone zgodnie z rozdz. 6.4.3 (3), równ. (38). Równania te, a także całą procedurę obliczeniową, można znaleźć w Szczegółach warunku projektowego pokazanych na rysunku 9.

Ścinanie bez dodatkowego zbrojenia na przebicie jest spełnione, jeżeli vEd ≤ vRd,c ; w przeciwnym razie należy zdefiniować dodatkowe zbrojenie. W tym ostatnim przypadku istnieje możliwość zdefiniowania dodatkowego zbrojenia podłużnego płyty po stronie rozciąganej.

W przypadku płyty w tym przykładzie zostanie to zrobione poprzez zdefiniowanie dodatkowego zbrojenia podłużnego na górnej stronie, jak pokazano na rysunku 10. Zdefiniowane zbrojenie można przypisać do jednego węzła, a następnie można je łatwo skopiować do wszystkich węzłów przebicia za pomocą typowej funkcji „kopiuj” (rys. 11). Tak przypisane zbrojenie zostanie automatycznie uwzględnione przy określaniu nośności na ścinanie.


Wyniki są ponownie dostępne zarówno w formie graficznej, jak i w tabeli Projektowanie konstrukcji betonowych. Jeżeli obliczenie przebicia bez dodatkowego zbrojenia na przebicie nadal nie jest spełnione, użytkownik może zwiększyć zbrojenie podłużne poprzez zastosowanie maksymalnego dopuszczalnego stopnia zbrojenia podłużnego ρ. Jeżeli jednak obliczenie ścinania przy przebiciu nie jest możliwe bez zbrojenia na przebicie (vRd,c ≤ vEd ), obliczana jest maksymalna nośność na ścinanie vRd,max, a sprawdzenie jest przeprowadzane automatycznie.

Ilość wymaganego zbrojenia pod względem przebicia można wyświetlić w nawigatorze w zakładce Wyniki (rysunek 12). Jeżeli użytkownika interesuje również obciążenie przebijające wykorzystane w obliczeniach, może ono zostać wyświetlone w zakładce Wyniki nawigatora, jak pokazano na rysunku 13.


Uwagi końcowe

Obliczanie wytrzymałości na przebicie w programie RFEM 6 jest zawarte w rozszerzeniu Projektowanie konstrukcji betonowych i można je zainicjować, zaznaczając pole Obliczenia przebicia w oknie edycyjnym węzłów przebicia. Aktywacja właściwości obliczeniowych umożliwi zdefiniowanie parametrów obliczeniowych przebicia, takich jak obciążenie przebijające, współczynnik przyrostu obciążenia β oraz minimalny rozstaw zbrojenia, w konfiguracji stanu granicznego nośności dla obliczeń betonu.

Obliczenia betonu można przeprowadzić na podstawie zbrojenia podłużnego przewidzianego dla innych typów obliczeń. Jeżeli obliczenie ścinania bez dodatkowego zbrojenia na przebicie nie jest spełnione (vRd,c ≤ vEd ), można przypisać dodatkowe zbrojenie podłużne płyty po stronie rozciąganej. W ten sposób obliczana jest maksymalna nośność na przebicie vRd,max, a kontrola obliczeń przeprowadzana jest automatycznie.


Autor

Pani Kirova jest odpowiedzialna za tworzenie artykułów technicznych i zapewnia wsparcie techniczne dla klientów firmy Dlubal.

Odnośniki
Odniesienia


;