Renowacja siedziby INAIL Ancona z nowoczesnymi przestrzeniami do hydroterapii z wykorzystaniem zrównoważonego projektu.
  • 3D Viewer
  • 3D Viewer | Babylon
  • Wirtualna rzeczywistość
Renowacja siedziby INAIL Ancona z nowoczesnymi przestrzeniami do hydroterapii z wykorzystaniem zrównoważonego projektu.
2025-02-28
055594
  • RFEM 6
  • Konstrukcje betonowe
  • Konstrukcje stalowe
    • Analiza statyczno-wytrzymałościowa
    • Analiza naprężeń
    • Analiza metodą elementów skończonych

Siedziba INAIL w Ankonie

Renowacja siedziby INAIL Ancona z nowoczesnymi przestrzeniami do hydroterapii z wykorzystaniem zrównoważonego projektu.

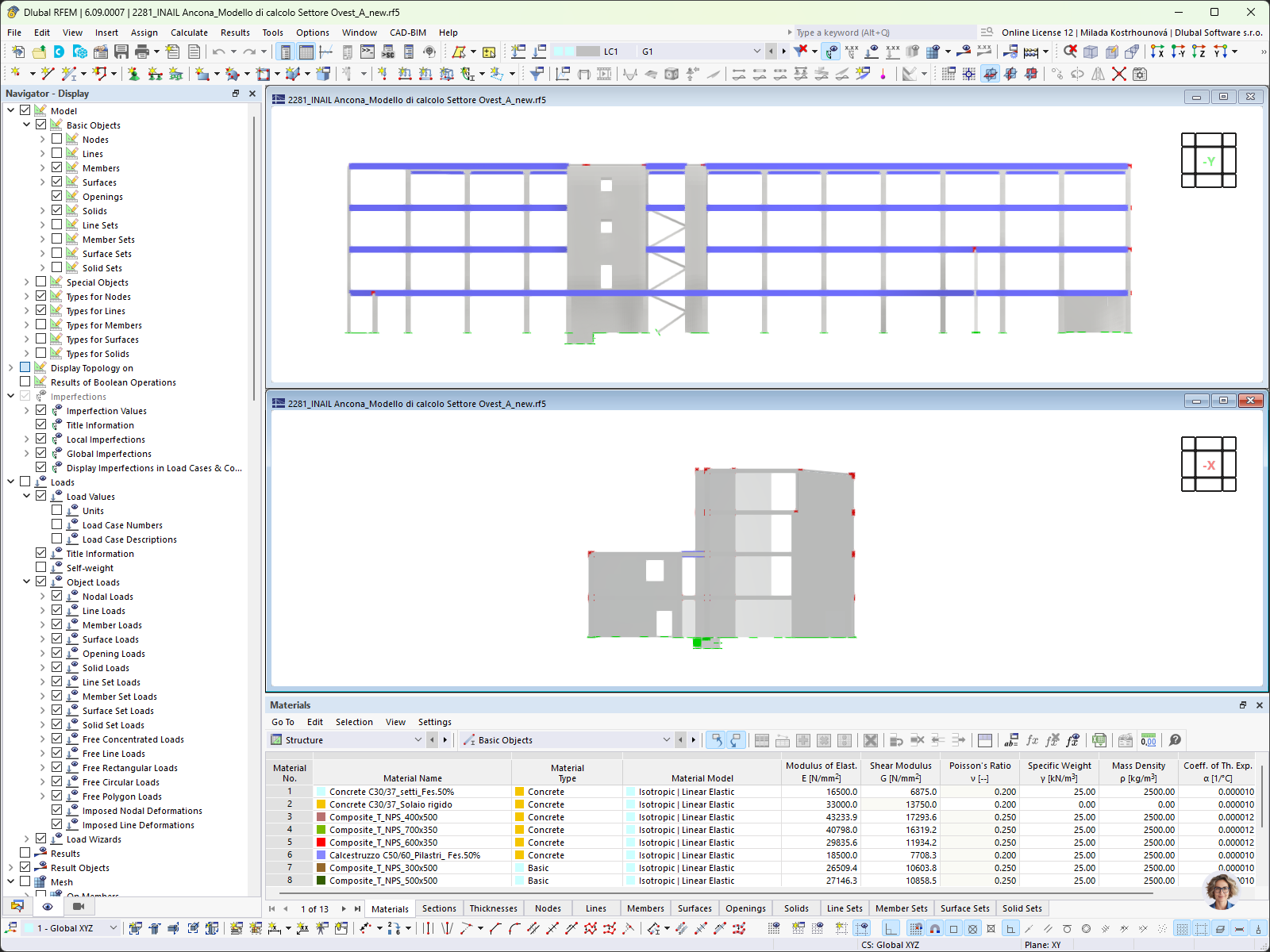
Ilustracja przedstawia konwersję dawnego liceum IPSIA na nową siedzibę INAIL w Ankonie we Włoszech. Budynek o powierzchni 6 600 m2 obejmuje cztery kondygnacje naziemne, a jego duże objętości podkreślają okładziny kamienne i rytmiczne otwory. Regularne pustki, wyraźny przezroczysty wejściowy oraz starannie dobrane kolory podkreślają jego funkcję publiczną. Projekt wykorzystuje prefabrykaty strunobetonowe oraz metodologię BIM dla zapewnienia efektywności, oferując przestrzenie dedykowane hydroterapii, ochronie zdrowia i rehabilitacji, a także biura dla władz regionalnych.
  • Siedziba INAIL
  • Projekt renowacji budynku
  • Zrównoważona konstrukcja
  • Modelowanie BIM
  • Prefabrykowany beton sprężony zbrojony
Wykorzystano w
  • Siedziba INAIL w Ankonie, Włochy
Model 3D
Pobranie niemożliwe Projekt klienta / Tylko wyświetlanie
Więcej o modelu 3D
  • Siedziba INAIL w Ankonie
Specyfikacje
Liczba węzłów 571
Liczba linii 976
Liczba prętów 613
Liczba powierzchni 236
Ilość brył 0
Ilość przypadków obciążenia 15
Ilość KO 127
Liczba kombinacji wyników 5
Ciężar całkowity 1953,721 t
Wymiary (metryczne) 71,050 x 16,176 x 23,935 m
Wymiary (imperialne) 233.1 x 53.07 x 78.53 feet
Udostępnij