386x
001333
2025-02-28

Siedziba INAIL w Ankonie, Włochy

Nowa siedziba INAIL w Ankonie jest efektem gruntownej analizy dotyczącej renowacji dawnej szkoły średniej IPSIA. Skoncentrowany na zrównoważonej architekturze, projekt oferuje różnorodne usługi, w tym tereny do hydroterapii i rehabilitacji, a także biura dla władz regionalnych. Opracowany w technologii BIM z prefabrykowanego żelbetu gwarantuje efektywność i spełnia harmonogramy budowlane.

Nowa siedziba INAIL w Ankonie, Włochy, jest wynikiem starannej oceny technicznej i ekonomicznej mającej na celu radykalną renowację dawnego budynku szkoły średniej IPSIA. Projekt stawia na zrównoważony rozwój, z zamiarem stworzenia funkcjonalnej, zorientowanej na usługi struktury dla obywateli. Budynek charakteryzuje się dużymi objętościami definiującymi urbanistyczny obrzeże, podkreślonymi kamiennym okładziną i rytmicznymi otworami. Projekt obejmuje regularne pustki i wybory kolorystyczne, które nawiązują do publicznej funkcji budynku, podczas gdy duże przezroczyste wejście zakłóca symetrię, tworząc nowe proporcje.

Budynek obejmuje powierzchnię 6600 m² na czterech poziomach naziemnych, mieszcząc różne funkcje, takie jak hydroterapia, przestrzenie zdrowia i rehabilitacji oraz biura Dyrekcji Terytorialnej w Ankonie i Dyrekcji Regionalnej Marche. Budynek został w całości opracowany w modelowaniu informacji o budynku (BIM), aby zapewnić efektywne terminy budowy i wymagania dotyczące wydajności. Prefabrykowane sprężone rozwiązania z żelbetu zostały użyte w celu spełnienia tych celów. Dodatkowo budynek zawiera zaawansowane technologie mające na celu zminimalizowanie wpływu na środowisko, w tym poprawę hydrologicznej przepuszczalności obszaru. Takie elementy jak wewnętrzne parkingi i zielone dachy przyczyniają się do odporności projektu na zmiany klimatyczne, poprawiając zarówno ekologiczną, jak i funkcjonalną jakość otaczającego środowiska.

Miejsce Via Curtatone, Ancona
Włochy
Obliczenia i analiza statyczno-wytrzymałościowa
Inwestor


Specyfikacja projektu

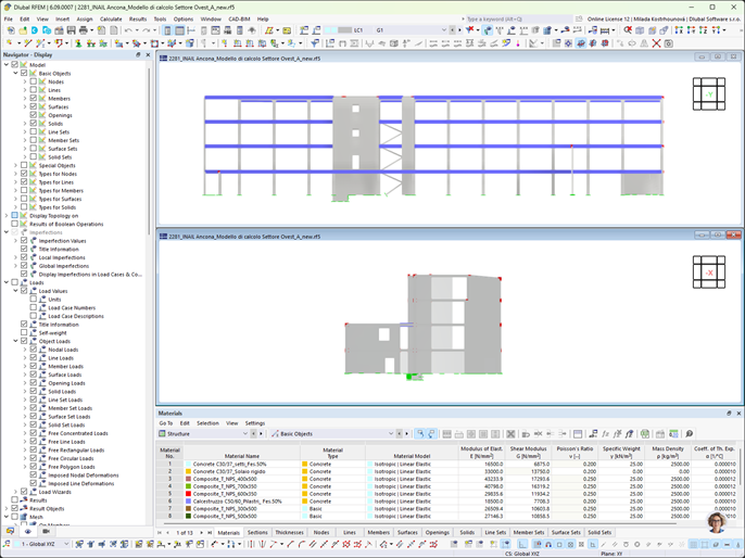
Dane modelu

Liczba węzłów 571
Liczba linii 976
Liczba prętów 613
Liczba powierzchni 236
Ilość brył 0
Ilość przypadków obciążenia 15
Ilość KO 127
Liczba kombinacji wyników 5
Ciężar całkowity 1953,721 t
Wymiary (metryczne) 71,050 x 16,176 x 23,935 m
Wymiary (imperialne) 233.1 x 53.07 x 78.53 feet

Czy mają Państwo jakieś pytania?