Sistema e carregamento (dimensões em mm, força em kN)
Außenabmessungen des Querschnitts in mm
Larguras planas nominais em mm
Wirksame Randsteife
Determinação da rigidez da mola
Wirksamer Steifenquerschnitt
Ermittlung der Federsteifigkeit
Basisangaben
Parâmetros de cálculo
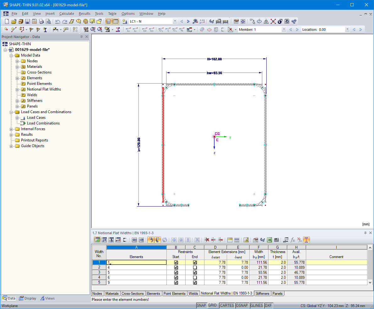
Tabela 1.7 Larguras planas nominais segundo a EN 1993-1-3
Tabela 1.8 Reforços
Tabela 1.9 Painéis
Tabela 2.1 Casos de carga
Tabela 3.1 Esforços internos
Propriedades da secções efetivas
Basisangaben
Parameter des nationalen Anhangs
Detalhes, separador Secções formadas a frio
Details, Register Stabilität
Figura 20 - Resultados
Sistema e carregamento (dimensões em mm, força em kN)
Außenabmessungen des Querschnitts in mm
Larguras planas nominais em mm
Wirksame Randsteife
Determinação da rigidez da mola
Wirksamer Steifenquerschnitt
Ermittlung der Federsteifigkeit
Basisangaben
Parâmetros de cálculo
Tabela 1.7 Larguras planas nominais segundo a EN 1993-1-3
Tabela 1.8 Reforços
Tabela 1.9 Painéis
Tabela 2.1 Casos de carga
Tabela 3.1 Esforços internos
Propriedades da secções efetivas
Basisangaben
Parameter des nationalen Anhangs
Detalhes, separador Secções formadas a frio
Details, Register Stabilität
Figura 20 - Resultados
2024-05-30
008649
  • SHAPE-THIN 9
  • RFEM 5
  • Secções formadas a frio 5 do RF-STEEL
    • RSTAB 8
    • STEEL Cold-Formed Sections 8
    • Estruturas de aço
    • Cálculos estruturais e dimensionamento
    • Análise de tensões
    • Eurocode 3

Sistema e carregamento (dimensões em mm, força em kN)

Utilizado em
  • Dimensionamento de uma secção C de parede fina formada a frio de acordo com a norma EN 1993-1-3
Partilhar
2024-05-30
008650
  • SHAPE-THIN 9
  • RFEM 5
  • Secções formadas a frio 5 do RF-STEEL
    • RSTAB 8
    • STEEL Cold-Formed Sections 8
    • Estruturas de aço
    • Cálculos estruturais e dimensionamento
    • Análise de tensões
    • Eurocode 3
Außenabmessungen des Querschnitts in mm
Utilizado em
  • Dimensionamento de uma secção C de parede fina formada a frio de acordo com a norma EN 1993-1-3
Partilhar
2024-05-30
008651
  • SHAPE-THIN 9
  • RFEM 5
  • Secções formadas a frio 5 do RF-STEEL
    • RSTAB 8
    • STEEL Cold-Formed Sections 8
    • Estruturas de aço
    • Cálculos estruturais e dimensionamento
    • Análise de tensões
    • Eurocode 3
Larguras planas nominais em mm
Utilizado em
  • Dimensionamento de uma secção C de parede fina formada a frio de acordo com a norma EN 1993-1-3
Partilhar
2024-05-30
008652
  • SHAPE-THIN 9
  • RFEM 5
  • Secções formadas a frio 5 do RF-STEEL
    • RSTAB 8
    • STEEL Cold-Formed Sections 8
    • Estruturas de aço
    • Cálculos estruturais e dimensionamento
    • Análise de tensões
    • Eurocode 3
Rigidez efetiva da borda
Wirksame Randsteife

Utilizado em
  • Dimensionamento de uma secção C de parede fina formada a frio de acordo com a norma EN 1993-1-3
Partilhar
2024-05-30
008653
  • SHAPE-THIN 9
  • RFEM 5
  • Secções formadas a frio 5 do RF-STEEL
    • RSTAB 8
    • STEEL Cold-Formed Sections 8
    • Estruturas de aço
    • Cálculos estruturais e dimensionamento
    • Análise de tensões
    • Eurocode 3
Determinação da rigidez da mola
Utilizado em
  • Dimensionamento de uma secção C de parede fina formada a frio de acordo com a norma EN 1993-1-3
Partilhar
2024-05-30
008654
  • SHAPE-THIN 9
  • RFEM 5
  • Secções formadas a frio 5 do RF-STEEL
    • RSTAB 8
    • STEEL Cold-Formed Sections 8
    • Estruturas de aço
    • Cálculos estruturais e dimensionamento
    • Análise de tensões
    • Eurocode 3
Wirksamer Steifenquerschnitt
Utilizado em
  • Dimensionamento de uma secção C de parede fina formada a frio de acordo com a norma EN 1993-1-3
Partilhar
2024-05-30
008655
  • SHAPE-THIN 9
  • RFEM 5
  • Secções formadas a frio 5 do RF-STEEL
    • RSTAB 8
    • STEEL Cold-Formed Sections 8
    • Estruturas de aço
    • Cálculos estruturais e dimensionamento
    • Análise de tensões
    • Eurocode 3
Ermittlung der Federsteifigkeit
Utilizado em
  • Dimensionamento de uma secção C de parede fina formada a frio de acordo com a norma EN 1993-1-3
Partilhar
2024-05-30
008656
  • SHAPE-THIN 9
  • RFEM 5
  • Secções formadas a frio 5 do RF-STEEL
    • RSTAB 8
    • STEEL Cold-Formed Sections 8
    • Estruturas de aço
    • Cálculos estruturais e dimensionamento
    • Análise de tensões
    • Eurocode 3
Dados gerais
Basisangaben

Utilizado em
  • Dimensionamento de uma secção C de parede fina formada a frio de acordo com a norma EN 1993-1-3
Partilhar
2024-05-30
008657
  • SHAPE-THIN 9
  • RFEM 5
  • Secções formadas a frio 5 do RF-STEEL
    • RSTAB 8
    • STEEL Cold-Formed Sections 8
    • Estruturas de aço
    • Cálculos estruturais e dimensionamento
    • Análise de tensões
    • Eurocode 3
Parâmetros de cálculo
Utilizado em
  • Dimensionamento de uma secção C de parede fina formada a frio de acordo com a norma EN 1993-1-3
Partilhar
2024-05-30
013155
  • RFEM 5
  • RSTAB 8
Tabela 1.7 Larguras planas nominais segundo a EN 1993-1-3
Utilizado em
  • Dimensionamento de uma secção C de parede fina formada a frio de acordo com a norma EN 1993-1-3
Partilhar
2024-05-30
008658
  • SHAPE-THIN 9
  • RFEM 5
  • Secções formadas a frio 5 do RF-STEEL
    • RSTAB 8
    • STEEL Cold-Formed Sections 8
    • Estruturas de aço
    • Cálculos estruturais e dimensionamento
    • Análise de tensões
    • Eurocode 3
Tabela 1.8 Reforços
Utilizado em
  • Dimensionamento de uma secção C de parede fina formada a frio de acordo com a norma EN 1993-1-3
Modelo 3D
Mais sobre modelo 3D
  • Secção em C
Partilhar
2024-05-30
008659
  • SHAPE-THIN 9
  • RFEM 5
  • Secções formadas a frio 5 do RF-STEEL
    • RSTAB 8
    • STEEL Cold-Formed Sections 8
    • Estruturas de aço
    • Cálculos estruturais e dimensionamento
    • Análise de tensões
    • Eurocode 3
Tabela 1.9 Painéis
Utilizado em
  • Dimensionamento de uma secção C de parede fina formada a frio de acordo com a norma EN 1993-1-3
Modelo 3D
Mais sobre modelo 3D
  • Secção em C
Partilhar
2024-05-30
008660
  • SHAPE-THIN 9
  • RFEM 5
  • Secções formadas a frio 5 do RF-STEEL
    • RSTAB 8
    • STEEL Cold-Formed Sections 8
    • Estruturas de aço
    • Cálculos estruturais e dimensionamento
    • Análise de tensões
    • Eurocode 3
Tabela 2.1 Casos de carga
Utilizado em
  • Dimensionamento de uma secção C de parede fina formada a frio de acordo com a norma EN 1993-1-3
Modelo 3D
Mais sobre modelo 3D
  • Secção em C
Partilhar
2024-05-30
008661
  • SHAPE-THIN 9
  • RFEM 5
  • Secções formadas a frio 5 do RF-STEEL
    • RSTAB 8
    • STEEL Cold-Formed Sections 8
    • Estruturas de aço
    • Cálculos estruturais e dimensionamento
    • Análise de tensões
    • Eurocode 3
Tabela 3.1 Esforços internos
Utilizado em
  • Dimensionamento de uma secção C de parede fina formada a frio de acordo com a norma EN 1993-1-3
Modelo 3D
Mais sobre modelo 3D
  • Secção em C
Partilhar
2024-05-30
008662
  • SHAPE-THIN 9
  • RFEM 5
  • Secções formadas a frio 5 do RF-STEEL
    • RSTAB 8
    • STEEL Cold-Formed Sections 8
    • Estruturas de aço
    • Cálculos estruturais e dimensionamento
    • Análise de tensões
    • Eurocode 3
Propriedades da secções efetivas
Utilizado em
  • Dimensionamento de uma secção C de parede fina formada a frio de acordo com a norma EN 1993-1-3
Modelo 3D
Mais sobre modelo 3D
  • Secção em C
Partilhar
2024-05-30
008663
  • SHAPE-THIN 9
  • RFEM 5
  • Secções formadas a frio 5 do RF-STEEL
    • RSTAB 8
    • STEEL Cold-Formed Sections 8
    • Estruturas de aço
    • Cálculos estruturais e dimensionamento
    • Análise de tensões
    • Eurocode 3
Dados gerais
Basisangaben

Utilizado em
  • Dimensionamento de uma secção C de parede fina formada a frio de acordo com a norma EN 1993-1-3
Partilhar
2024-05-30
008664
  • SHAPE-THIN 9
  • RFEM 5
  • Secções formadas a frio 5 do RF-STEEL
    • RSTAB 8
    • STEEL Cold-Formed Sections 8
    • Estruturas de aço
    • Cálculos estruturais e dimensionamento
    • Análise de tensões
    • Eurocode 3
Parameter des nationalen Anhangs
Utilizado em
  • Dimensionamento de uma secção C de parede fina formada a frio de acordo com a norma EN 1993-1-3
Partilhar
2024-05-30
008665
  • SHAPE-THIN 9
  • RFEM 5
  • Secções formadas a frio 5 do RF-STEEL
    • RSTAB 8
    • STEEL Cold-Formed Sections 8
    • Estruturas de aço
    • Cálculos estruturais e dimensionamento
    • Análise de tensões
    • Eurocode 3
Detalhes, separador Secções formadas a frio
Utilizado em
  • Dimensionamento de uma secção C de parede fina formada a frio de acordo com a norma EN 1993-1-3
Partilhar
2024-05-30
008666
  • SHAPE-THIN 9
  • RFEM 5
  • Secções formadas a frio 5 do RF-STEEL
    • RSTAB 8
    • STEEL Cold-Formed Sections 8
    • Estruturas de aço
    • Cálculos estruturais e dimensionamento
    • Análise de tensões
    • Eurocode 3
Detalhes, separador Estabilidade
Details, Register Stabilität

Utilizado em
  • Dimensionamento de uma secção C de parede fina formada a frio de acordo com a norma EN 1993-1-3
Partilhar
2024-05-30
008667
  • SHAPE-THIN 9
  • RFEM 5
  • Secções formadas a frio 5 do RF-STEEL
    • RSTAB 8
    • STEEL Cold-Formed Sections 8
    • Estruturas de aço
    • Cálculos estruturais e dimensionamento
    • Análise de tensões
    • Eurocode 3
Figura 20 - Resultados
Utilizado em
  • Dimensionamento de uma secção C de parede fina formada a frio de acordo com a norma EN 1993-1-3
Partilhar