No exemplo seguinte do Steel Structures Yearbook 2009 {%>#Refer [3]]], o dimensionamento da secção para uma viga de vão único com uma secção em C de parede fina e formada a frio é realizada de acordo com carregamento de força normal. A secção em C é modelada no SHAPE-THIN e depois dimensionada no RF-/STEEL Cold-Formed Sections.
Sistema
Sistema e carregamento são apresentados na Figura 01.
Material
- S 355 EN 10025-2
- E = 210 000 N/mm²
- G = 80 769 N/mm²
- ν = 0,3
- fy = fyb = 355 N/mm²
- γM0 = γM1 = 1,00 (dimensionamento de acordo com o CEN)
Dimensões externas
As dimensões externas da secção são apresentadas na Figura 02.
- H = 102 mm (altura da alma)
- b = 120 mm (largura da corda)
- c = 26 mm (comprimento dos rebordos)
- t = 2 mm (espessura do núcleo de aço)
Valor nominal das larguras planas
Os valores nominaos da largura plana são determinados de acordo com {%>
Verificação das relações largura-espessura
As relações largura-espessura são verificadas de acordo com {%>#Refer [1]]], 5.2(1).
- b/t = 120/2 = 60 ≤ 60
- c/t = 26/2 = 13 ≤ 50
- H/t = 102/2 = 51 ≤ 500
As relações largura-espessura são cumpridas.
Verificação das dimensões do reforço
As dimensões do reforço são verificadas de acordo com {%>#Refer [1]]], 5.2(2).
0,2 ≤ c/b = 26/120 = 0,22 ≤ 0,6
Os rebordos podem ser aplicados como reforços.
Verificação do ângulo entre o reforço e o elemento plano
O ângulo entre o reforço e o elemento plano é de 90° dentro dos limites de 45° e 135° mencionados em {%>#Refer [1]]], 5.5.3.2(1).
Determinação da secção efetiva
Para secções de aço que não estão sujeitas a simetria dupla e estão sujeitas a compressão, a posição do centro geométrico da secção efetiva muda em comparação com a secção bruta. A força de compressão externa que atua centralmente na secção bruta atua agora excentricamente na secção efetiva e é criado um momento de flexão adicional. De acordo com {%>#Refer [1]]], os momentos adicionais resultantes do deslocamento do centróide devem ser tidos em consideração. Posteriormente, além da secção efetiva para tensão de compressão pura, deve ser determinada a secção efetiva para tensão de flexão pura.
Determinação da secção efetiva sujeita a compressão pura
De acordo com {%>#Refer [2]]], 4,4 (2), o coeficiente resulta em:
Alma
De acordo com {%>#Refer [2]]], Tabela 4.1, o valor da encurvadura resulta em:
De acordo com {%>#Refer [2]]], 4,4 (2), a esbelteza da encurvadura resulta em:
A relação de esbelteza é superior ao valor limite 0,673 de acordo com {%>#Refer [2]]], 4.4 (2). Assim, é necessária uma redução.
De acordo com {%>#Refer [2]]], 4,4 (2), o fator de redução resulta em:
De acordo com {%>#Refer [2]]] , Tabela 4.1, a altura efetiva da alma resulta segundo {%>#Refer [2]]] , Tabela 4.1, em:
Banzo com reforço de borda
No primeiro passo, é determinada uma primeira abordagem para a secção efetiva do reforço com a assunção de que a rigidez da borda atua como um apoio rígido e que σcom, Ed = fyb/γM0 .
corda
De acordo com {%>#Refer [2]]], Tabela 4.1, o valor da encurvadura resulta em:
De acordo com {%>#Refer [2]]], 4,4 (2), a esbelteza da encurvadura resulta em:
A relação de esbelteza é superior ao valor limite 0,673 de acordo com {%>#Refer [2]]], 4.4 (2). Assim, é necessária uma redução.
De acordo com {%>#Refer [2]]], 4,4 (2), o fator de redução resulta em:
De acordo com {%>#Refer [2]]] , Tabela 4.1, a largura efetiva do banzo resulta em:
reforço de borda
De acordo com {%>#Refer [1]]], 5.5.3.2 (5), o valor de encurvadura resulta em:
De acordo com {%>#Refer [2]]], 4,4 (2), a esbelteza da encurvadura resulta em:
A relação de esbelteza é inferior ao valor limite 0,748 de acordo com [1], 4.4 (2). Assim, não é necessária redução, ou seja: ρ = 1,0.
A primeira abordagem da largura efetiva resulta de {%>#Refer [1]]], eq. 5.13a a:
No segundo passo, o fator de redução para a forma de instabilidade da secção é determinado utilizando a primeira abordagem eficaz para a secção, tendo em conta a mola de translação elástica.
Os valores da secção efetiva da rigidez de borda são calculados com o SHAPE-THIN. A rigidez da borda é apresentada na Figura 04.
- As = 122,58 mm2
- Is = 7130 mm4
- zs = 13,88 mm
A rigidez da mola K da rigidez da borda é determinada com base numa análise estrutural para toda a secção. Para este efeito, é aplicada uma carga de distância unitária u, atuando no centro geométrico do reforço efetivo, à secção e a correspondente deformação δ do reforço é calculada. Para uma secção retangular w/h = t/t = 2/2 mm, a deformação resulta em δ = 3,02 mm (Figura 05).
A rigidez da mola por unidade de comprimento K pode ser calculada de acordo com {%>
A tensão crítica da rigidez da borda resulta de {%>#Refer [1]]], eq. 5,15 em:
A relação de esbelteza é calculada de acordo com {%>#Refer [1]]], eq. 5.12d para:
De acordo com {%>#Refer [1]]], 5.5.3.1 (7), o coeficiente de redução para a forma de instabilidade é calculado do seguinte modo:
A área da secção efetiva reduzida da rigidez da borda é obtida tendo em consideração a encurvadura por flexão de acordo com {%>#Refer [1]]], Eq. 5,17 a:
Propriedades da secção efetiva sujeita a compressão pura
A secção pode ser otimizada através de um cálculo iterativo. Para duas iterações, resulta nos seguintes valores de secção efetiva:
- Área Aef = 4,62 cm²
- Distância do centro geométrico da alma zs,ef = 42,18 mm
- Deslocamento do centro geométrico eN,y = zs - * zs,ef = 8,78 mm
Determinação da secção efetiva sob tensão por flexão pura
Alma
A alma está sujeita a tração e, portanto, é totalmente eficaz.
Banzo com reforço de borda
No primeiro passo, é determinada uma primeira abordagem para a secção efetiva do reforço com a assunção de que a rigidez da borda atua como um apoio rígido e que σcom, Ed = fyb/γM0 .
corda
De acordo com {%>#Refer [2]]], Tabela 4.1, o valor da encurvadura resulta em:
De acordo com {%>#Refer [2]]], 4,4 (2), a esbelteza da encurvadura resulta em:
A relação de esbelteza é inferior ao valor limite 0,856 de acordo com {%>#Refer [2]]], 4.4 (2). Assim, não é necessária redução.
De acordo com {%>#Refer [2]]], Tabela 4.1, as larguras efetivas resultam em:
reforço de borda
De acordo com {%>#Refer [1]]], 5.5.3.2 (5), o valor de encurvadura resulta em:
De acordo com {%>#Refer [2]]], 4,4 (2), a esbelteza da encurvadura resulta em:
A relação de esbelteza é inferior ao valor limite 0,748 de acordo com [1], 4.4 (2). Assim, não é necessária redução, ou seja: ρ = 1,0.
A primeira abordagem da largura efetiva resulta de {%>#Refer [1]]], eq. 5.13a a:
No segundo passo, o fator de redução para a forma de instabilidade da secção é determinado utilizando a primeira abordagem eficaz para a secção, tendo em conta a mola de translação elástica.
Os valores da secção efetiva da rigidez de borda são calculados com o SHAPE-THIN. A rigidez da borda é apresentada na Figura 06.
- As = 97,92 mm2
- Is = 6271 mm4
- zs = 8,59 mm
A rigidez da mola K da rigidez da borda é determinada com base numa análise estrutural para toda a secção. Para este efeito, é aplicada uma carga de distância unitária u, atuando no centro geométrico do reforço efetivo, à secção e a correspondente deformação δ do reforço é calculada. Para uma secção retangular w/h = t/t = 2/2 mm, a deformação resulta em δ = 3,4 mm (Figura 07).
A rigidez da mola por unidade de comprimento K pode ser calculada de acordo com {%>
A tensão crítica da rigidez da borda resulta de {%>#Refer [1]]], eq. 5,15 em:
A relação de esbelteza é calculada de acordo com {%>#Refer [1]]], eq. 5.12d para:
De acordo com {%>#Refer [1]]], 5.5.3.1 (7), o coeficiente de redução para a forma de instabilidade é calculado do seguinte modo:
A área da secção efetiva reduzida da rigidez da borda é obtida tendo em consideração a encurvadura por flexão de acordo com {%>#Refer [1]]], Eq. 5,17 a:
Propriedades da secção efetiva sob tensão de flexão pura
Todas as partes da secção são totalmente eficazes, pelo que a iteração não é necessária.
- Área Aef = 6,86 cm²
- Módulo de secção Wef,y = 17,01 cm³
Dimensionamento da secção da carga combinada devido à compressão e flexão
A resistência à compressão pura é calculada de acordo com {%>#Refer [1]]], 6.1.3 (1) do seguinte modo:
A resistência à flexão pura é calculada de acordo com {%>#Refer [1]]], 6.1.4.1 (1), do seguinte modo:
O momento adicional resultante do desvio do centróide é determinado de acordo com {%>#Refer [1]]], 6.1.9(2), do seguinte modo:
O dimensionamento para carregamento combinado a partir de compressão e flexão de acordo com {%>#Refer [1]]] , 6.1.9 (1) resulta em:
O verificação é assim cumprida.
Modelação de uma secção em C formada a frio no SHAPE-THIN
As seções gerais formadas a frio podem ser modeladas no SHAPE-THIN. Nos dados gerais, ative a caixa de seleção "Partes c/t e propriedades da seção efetiva" (Figura 08).
De seguida, selecione a opção "EN 1993-1-3 (secção formada a frio)" no separador "partes c/t e secção efetiva" (Figura 09) da caixa de diálogo Parâmetros de cálculo.
A secção efetiva tem de ser determinada separadamente para compressão pura e flexão pura. Portanto, selecione a caixa de seleção "Negligenciar momentos de flexão adicionais devido ao deslocamento do centro de gravidade da secção efetiva".
No exemplo, calculamos com duas iterações para que também sejam definidas duas iterações no SHAPE-THIN.
As condições geométricas mencionadas em {%>#Refer [2]]], 5.2 para a aplicabilidade da norma podem ser verificadas opcionalmente. Para isso, selecione as caixas de seleção correspondentes.
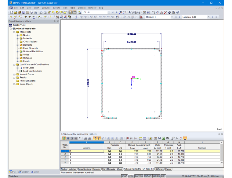
Os elementos da secção tem de ser introduzidos em primeiro lugar. Os valores nominaos das larguras planas são geralmente geradas automaticamente a partir das condições de geometria, mas também pode ser criado pelo utilizador definido na Tabela "1.7 Larguras planas nominais de acordo com EN 1993-1-3" (Figura 10) ou na correspondente caixa de diálogo.
Os reforços podem depois ser definidos na Tabela "1.8 Reforços" ou na correspondente caixa de diálogo (Figura 11).
Além do mais, o painel de encurvadura tem de ser especificado na Tabela "1.9 Painéis" (Figura 12) ou na correspondente caixa de diálogo. Para isso, selecione os elementos do painel de encurvadura. Os reforços localizados no painel de encurvadura são identificados automaticamente.
Além disso, é criado um caso de carga para a força de compressão e flexão na Tabela "2.1 Casos de carga" (Figura 13).
De seguida, introduza as forças internas na Tabela "3.1 Forças internas" ou na correspondente caixa de diálogo (Figura 14).
Os resultados da secção efetiva estão disponíveis com o botão "Partes efetivas" (Figura 15).
Verificação do dimensionamento de uma secção C formada a frio em secções formadas a frio RF-/STEEL
As secções formadas a frio podem ser dimensionadas de acordo com {%>
Nos dados gerais, tem de selecionar primeiro a barra e o caso de carga a ser dimensionado. "CEN" é selecionado como anexo nacional (Figura 16).
Pode ver e, se necessário, ajustar os parâmetros do Anexo nacional no separador "Formadas a frio (EN 1993-1-3)" da janela correspondente (Figura 17).
Nas configurações de detalhe, ative a verificação do dimensionamento para secções formadas a frio no separador "Formada a frio" (Figura 18).
Apenas deve ser realizado o dimensionamento da secção. Portanto, a caixa de seleção "Realizar análise de estabilidade" no separador "Estabilidade" das configurações detalhadas deve ser desativada (Figura 19).
Após o cálculo, são apresentadas as tabelas de saída correspondentes, entre outras coisas, as propriedades da secção efetiva devido à força axial N, momento de flexão My, momento de flexão Mz, forças internas e todo o dimensionamento (Figura 20).