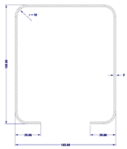
Außenabmessungen des Querschnitts in mm
Außenabmessungen des Querschnitts in mm
2024-05-30
008650
  • SHAPE-THIN 9
  • RFEM 5
  • Secções formadas a frio 5 do RF-STEEL
    • RSTAB 8
    • STEEL Cold-Formed Sections 8
    • Estruturas de aço
    • Cálculos estruturais e dimensionamento
    • Análise de tensões
    • Eurocode 3

Außenabmessungen des Querschnitts in mm

Utilizado em
  • Dimensionamento de uma secção C de parede fina formada a frio de acordo com a norma EN 1993-1-3
Partilhar