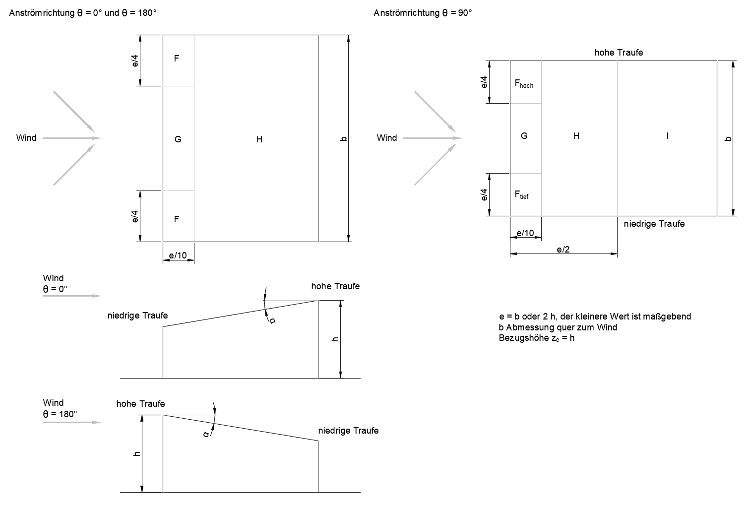
Einteilung der Dachflächen beim Pultdach
Einteilung der Dachflächen beim Pultdach
2024-05-30
009021
  • RFEM 5
  • RSTAB 8
  • RX-TIMBER viga de madeira laminada colada 2
    • RX-TIMBER Roof 2
    • RX-TIMBER viga contínua 2
    • RX-TIMBER Purlin 2
    • RX-TIMBER Frame 2
    • RX-TIMBER Column 2
    • RX-TIMBER Brace 2
    • Estruturas de betão
    • Estruturas de aço
    • Estruturas de madeira
    • Edifícios
    • Cálculos estruturais e dimensionamento
    • Eurocode 0
    • Eurocode 1

Einteilung der Dachflächen beim Pultdach

Utilizado em
  • Carga de vento nos telhados monopitch e duopitch na alemanha
Partilhar