O vento é naturalmente uma variável de ação no tempo sobre uma estrutura localizada no exterior. Para combinar esta carga com outras acções (carga útil, neve, etc) em situações de dimensionamento definidas de acordo com a norma de combinação DIN EN 1990, a acção do vento é classificada como acção variável e livre. As alterações nos coeficientes aerodinâmicos devido a outras ações (neve, tráfego ou gelo) e a alterações na estrutura têm de ser consideradas durante a construção. No entanto, as janelas e as portas são consideradas fechadas no caso de cargas de vento. Janelas e portas que estão inevitavelmente abertas têm de ser consideradas situações de dimensionamento acidentais.
A carga de vento dinâmica tem de ser apresentada de forma simplificada como pressão do vento ou força do vento equivalente à ação máxima do vento turbulento. O vento atua nas superfícies exteriores em estruturas fechadas e adicionalmente nas superfícies interiores em estruturas permeáveis ou abertas. A ação tem de ser aplicada como perpendicular às superfícies consideradas. No caso de grandes superfícies com circulação de vento, tem de ser considerado um componente de atrito adicional, paralelo à área da superfície.
A norma de vento DIN EN 1991-1-4 com o Anexo Nacional da Alemanha especifica a carga de vento como um valor característico. Este valor é determinado por uma velocidade de base do vento com um valor de probabilidade de excedência anual de 2% e um período de retorno médio de 50 anos.
A carga de vento resultante no caso de edifícios suficientemente rígidos e não susceptíveis a vibrações pode ser descrita como uma força estática equivalente que depende da velocidade de pico. Em contraste, para edifícios susceptíveis a vibrações, a velocidade de pico é modificada adicionalmente com um fator estrutural para determinar a carga estática equivalente [1] , [2].
Em termos simples, as estruturas não são consideradas susceptíveis a vibrações se a deformação sob carga de vento causada pela ressonância do vento tempestuoso não for aumentada em mais de 10%. Este critério aplica-se a edifícios típicos com uma altura até 25 m que não são susceptíveis a vibrações. Em todos os outros casos, pode ser utilizado o seguinte critério de classificação [3] :
Onde
xS = é o deslocamento de carga em m devido ao peso próprio aplicado na direção do vento
h = altura do edifício em m; href = 25 m
b = largura do edifício perpendicular à direção do vento em m
δ = decremento logarítmico do amortecimento de acordo com a norma DIN EN 1991-1-4, anexo F
| Tipo de estrutura | Amortecimento de construção δmín |
|---|---|
| Estrutura em betão armado | 0,1 |
| Estrutura de aço | 0,05 |
| Estrutura mista (aço e betão) | 0,08 |
Velocidade de pico dependente da altura da pressão
A carga de vento num edifício não suscetível a vibrações depende da pressão de velocidade de pico qp. Este valor resulta da velocidade do vento de uma rajada de vento com a duração de dois a quatro segundos, tendo em consideração as condições do terreno circundante. Para determinar a carga num local, o Anexo Nacional da Alemanha contém um mapa de zonas de vento com os correspondentes valores básicos das velocidades de base do vento vb,0, os valores básicos das pressões de velocidade de base do vento qb,0 e uma especificação de vários tipos de terreno (categorias I - IV) [1] , [2] , [3].
Se a zona de vento aumentar, o valor básico da velocidade de base do vento também aumenta.
A categoria de terreno aumenta com a rugosidade do terreno.
| Terreno | Descrição |
|---|---|
| Categoria de terreno I | Mar aberto; lagos com pelo menos 5 km de área aberta na direção do vento; terreno liso, plano e sem obstáculos |
| Categoria de terreno II | Terreno com sebes, quintas individuais, casas ou árvores (por exemplo, área agrícola) |
| Categoria de terreno III | Subúrbios, zonas industriais ou comerciais; florestas |
| uuCategoria de terreno IV | Zonas urbanas onde pelo menos 15% da superfície é constituída por edifícios com uma altura média superior a 15 m |
| Costa de perfil misto | Região de transição entre as categorias de terrenos I e II |
| Perfil misto para o interior | Região de transição entre as categorias de terrenos II e III |
A pressão de pico da velocidade vb,0 pode ser determinada definindo o valor de base da velocidade de base do vento qpe o tipo de terreno.
| Pressão da velocidade de pico qp em kN/m² [3] | Abordagem 1 Tabela NA-B.1 | Método 2 NA.B.3.3 | Abordagem 3 NA.B.3.2 | |||||||
|---|---|---|---|---|---|---|---|---|---|---|
| Influência do nível do mar zero do marmod | A menos de 800 m acima do nível do mar | 1,0 | ||||||||
| Entre 800 m e 1100 m acima do nível do mar | 0,2 + Hs/1000 | |||||||||
| Mais de 1100 m acima do nível do mar | São necessárias considerações especiais | |||||||||
| Zona de vento | 1 | 2 | 3 | 4 | 1 | 2 | 3 | 4 | ||
| valor básico da velocidade de referência do vento vb,0 em m/s | 22.5 | 25.0 | 27.5 | 30.0 | - | - | - | - | ||
| Fator de direção cdir | 1,0 | - | - | - | - | |||||
| coeficiente de sazão cestação | 1,0 | - | - | - | - | |||||
| pressão da velocidade básica qb em kN/m² | 0,32 | 0,39 | 0,47 | 0,56 | - | - | - | - | ||
| Categoria de terreno | Altura da estrutura | qp em kN/m² | ||||||||
| qp (z) em kN/m² | ||||||||||
| Categoria de terreno I | Até 2 m | 1,90 ⋅ qb ⋅ NNmod - | - | - | - | - | ||||
| 2 m a 300 m | 2,60 ⋅ qb ⋅ (z/10)0,19 ⋅ NNmod | |||||||||
| Categoria de terreno II | Até 4 m | 1,70 ⋅ qb ⋅ NNmod - | - | - | - | - | ||||
| 4 m a 300 m | 2,10 ⋅ qb ⋅ (z/10)0,24 ⋅ NNmod | |||||||||
| Categoria de terreno III | Até 8 m | 1,50 ⋅ qb ⋅ NNmod - | - | - | - | - | ||||
| 8 m a 300 m | 1,60 ⋅ qb ⋅ (z/10)0,31 ⋅ NNmod | |||||||||
| uuCategoria de terreno IV | Até 16 m | 1.30 ⋅ qb ⋅ NNmod - | - | - | - | - | ||||
| 16 m a 300 m | 1,10 ⋅ qb ⋅ (z/10)0,40 ⋅ NNmod | |||||||||
| Ilhas do mar do Norte I | Até 2 m | 1.10 ⋅ NNmod | - | - | - | - | ||||
| 2 m a 300 m | 1,50 ⋅ (z/10)0,19 ⋅ NNmod | |||||||||
| Zonas costeiras e ilhas do mar Báltico I - II | Até 4 m | 1,80 ⋅ qb ⋅ NNmod | - | - | - | - | ||||
| 4 m a 50 m | 2,30 ⋅ qb ⋅ (z/10)0,27 ⋅ NNmod | |||||||||
| 50 m a 300 m | 2,60 ⋅ qb ⋅ (z/10)0,19 ⋅ NNmod | |||||||||
| Zonas do interior II - III | Até 7 m | 1,50 ⋅ qb ⋅ NNmod | - | - | - | - | ||||
| 7 m a 50 m | 1,70 ⋅ qb ⋅ (z/10)0,37 ⋅ NNmod | |||||||||
| 50 m a 300 m | 2,10 ⋅ qb ⋅ (z/10)0,24 ⋅ NNmod | |||||||||
| zonas de interior | Até 10 m | - | - | 0,50 ⋅ NNmod | 0,65 ⋅ NNmod | 0,80 ⋅ NNmod | 0,95 ⋅ NNmod | |||
| 10 m a 18 m | 0,65 ⋅ NNmod | 0,80 ⋅ NNmod | 0,95 ⋅ NNmod | 1.15 ⋅ NNmod | ||||||
| 18 m até 25 m | 0,75 ⋅ NNmod | 0,90 ⋅ NNmod | 1.10 ⋅ NNmod | 1.30 ⋅ NNmod | ||||||
| Mar Báltico | Até 10 m | - | - | - | 0,85 ⋅ NNmod | 1.05 ⋅ NNmod | - | |||
| 10 m a 18 m | - | 1.00 ⋅ NNmod | 1.20 ⋅ NNmod | - | ||||||
| 18 m até 25 m | - | 1.10 ⋅ NNmod | 1.30 ⋅ NNmod | - | ||||||
| Ilhas da costa do mar do Norte e Báltico e do mar Báltico | Até 10 m | - | - | - | - | - | 1.25 ⋅ NNmod | |||
| 10 m a 18 m | - | - | - | 1.40 ⋅ NNmod | ||||||
| 18 m até 25 m | - | - | - | 1,55 ⋅ NNmod | ||||||
| ilhas do Mar do Norte | Até 10 m | - | - | - | - | - | 1.40 ⋅ NNmod | |||
| 10 m a 18 m | - | - | - | De acordo com a abordagem 2 | ||||||
| 18 m até 25 m | - | - | - | De acordo com a abordagem 2 | ||||||
Determinação da pressão local de velocidade do vento básica com o serviço online da Dlubal
O serviço online da Dlubal Zonas de carga de neve, zonas de vento e zonas sísmicas combina as especificações padrão com as tecnologias digitais. O serviço coloca o respetivo mapa das zonas sobre o mapa do Google Maps, em função do tipo de carga selecionado (neve, vento, sismo) e da norma específica do país. Introduza a localização, coordenadas geográficas ou as condições locais na funcionalidade de pesquisa para obter os dados relevantes para o local da estrutura. De seguida, a ferramenta determina a carga ou aceleração característica nessa posição através da altitude exacta acima do nível médio do mar e da zona de dados introduzida. Se o novo local de construção ainda não puder ser definido com um endereço específico, pode ampliar o mapa e selecionar a localização exata. Quando seleciona a posição correta no mapa, o cálculo será adaptado para a nova altitude e apresentará as cargas atualizadas.
O serviço online está disponível no website da Dlubal em Soluções → Serviços online.
Definindo os parâmetros...
1. tipo de carga = vento
2. norma = EN 1991-1-4
3. Anexo = Alemanha | DIN EN 1991-1-4
4. Endereço = Zellweg 2, Tiefenbach
... obtém-se os seguintes resultados para a localização selecionada:
05 zona de vento
6 informação adicional, caso necessário
7. velocidade básica fundamental do vento vb,0
8. velocidade de base do vento pressão qb
Se seleciona uma posição acima de 1100 m, o serviço online é apresentado no ponto 6 "Sem carga de vento definida acima de 1100 m | NCI A.2 (3)". Nenhuma carga pode ser determinada de acordo com a regra existente e são necessárias considerações especiais para esta localização.
pressão exercida pelo vento em superfícies
A pressão atuante do vento sobre uma superfície é o produto da pressão de pico de velocidade determinante multiplicada pelo coeficiente aerodinâmico [1] , [2].
Para superfícies exteriores:
we =qp (ze ) ⋅ cpe
Onde
qp (ze ) = pressão de velocidade de pico
ze = altura de referência para a pressão externa
cpe = coeficiente aerodinâmico para a pressão externa
Para superfícies internas:
wi =qp (zi ) ⋅ cpi
Onde
qp (zi ) = pressão de velocidade de pico
zi = altura de referência para a pressão interna
cpi = coeficiente aerodinâmico para a pressão interna
O carregamento resultante de uma pressão externa e interna é o carregamento de pressão resultante sobre uma superfície. A pressão sobre uma superfície é considerada positiva e a pressão (sucção) na direção contrária à superfície é considerada negativa.
Pressão líquida:
wlíquido = we + wi
Coeficientes aerodinâmicos selecionados
As cargas de pressão e sucção são aplicadas na superfície de uma estrutura que está no fluxo de vento. A dimensão da ação nas superfícies exteriores depende da sua área de aplicação de carga. Uma área de aplicação de carga é uma superfície que absorve ativamente a carga de vento bidimensional e a transfere para a estrutura subjacente de forma concentrada. Para este tipo de análise, a norma contém coeficientes de pressão externa aerodinâmica que dependem da superfície de introdução de carga [1] , [2].
| Área de aplicação de carga A [3] | Aerodinâmica Coeficiente de pressão externa cpe | Descrição |
|---|---|---|
| <1 m² | cpe,1 | Dimensionamento de pequenos componentes estruturais e das suas ancoragens (por exemplo, elementos de revestimento ou de cobertura) |
| 1 m² a 10 m² | cpe,1 - (cpe,1 - cpe,10 ) ⋅ log10 (A) | |
| > 10 m² | cpe,10 | Dimensionamento de toda a estrutura |
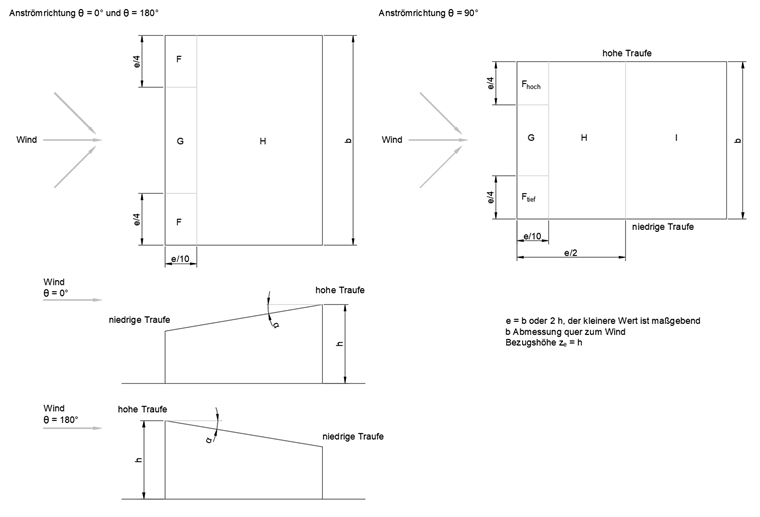
paredes verticais de edifícios de planta retangular
A velocidade do vento aumenta naturalmente de forma não linear com a altura ao solo. A distribuição de pressão de velocidade de pico resultante pode ser aplicada de uma forma simplificada e com escalas pela altura para a superfície do edifício a barlavento (área D do edifício), dependendo da relação entre a altura do edifício h e a largura do edifício b [1] , [2].
As cargas de sucção de parede das restantes superfícies a sotavento do edifício paralelas ao vento (áreas A, B, C e E) dependem da aerodinâmica do edifício. Os coeficientes aerodinâmicos finais para as superfícies exteriores podem ser determinados e aplicados em escala, dependendo da relação entre altura h e altura d.
| Intervalo | A | B | C | D | E | |||||
|---|---|---|---|---|---|---|---|---|---|---|
| h/d | cpe,10 | cpe,1 | cpe,10 | cpe,1 | cpe,10 | cpe,1 | cpe,10 | cpe,1 | cpe,10 | cpe,1 |
| ≥5 | -1,4 | -1,7 | -0,8 | -1,1 | -0,5 | -0,7 | +0,8 | +1,0 | -0,5 | -0,7 |
| 1 | -1,2 | -1,4 | -0,8 | -1,1 | -0,5 | +0,8 | +1,0 | -0,5 | ||
| ≤0,25 | -1,2 | -1,4 | -0,8 | -1,1 | -0,5 | +0,8 | +1,0 | -0,3 | -0,5 | |
| Forças de sucção maiores podem ocorrer na área de sucção para edifícios individuais localizados em estaleiros de área aberta. A interpolação linear dos valores intermédios é permitida. Para edifícios com h/d> 5, a carga de vento total tem de ser determinada através dos valores de força de acordo com a norma DIN EN 1991-1-4 mais Anexo Nacional da Alemanha Capítulos 7.6 a 7.8 e 7.9.2. | ||||||||||
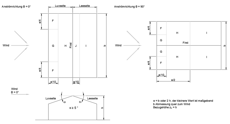
cobertura de uma água
Semelhante às dimensões do edifício, a forma da cobertura também tem um efeito aerodinâmico nas superfícies exteriores da cobertura. Uma cobertura com uma inclinação superior a 5 graus, com diferentes beirados alto e baixo, designa-se por cobertura de uma só água. Devido à aerodinâmica, as cargas de vento atuam nas superfícies de aplicação de carga, dependendo da inclinação da cobertura [1] , [2].
| Intervalo | B | G | h | I | ||||||
|---|---|---|---|---|---|---|---|---|---|---|
| Direção do fluxo θ = 0°2) | ||||||||||
| Ângulo de inclinação α1) | cpe,10 | cpe,1 | cpe,10 | cpe,1 | cpe,10 | cpe,1 | cpe,10 | cpe,1 | ||
| 5° | -1,7 | -2,5 | -1,2 | -2,0 | -0,6 | -1,2 | - | - | ||
| +0,0 | +0,0 | +0,0 | ||||||||
| 15° | -0,9 | -2,0 | -0,8 | -1,5 | -0,3 | - | - | |||
| +0,2 | +0,2 | +0,2 | ||||||||
| 30° | -0,5 | -1,5 | -0,5 | -1,5 | -0,2 | - | - | |||
| +0,7 | +0,7 | +0,4 | ||||||||
| 45° | -0,0 | -0,0 | -0,0 | - | - | |||||
| +0,7 | +0,7 | +0,6 | ||||||||
| 60° | +0,7 | +0,7 | +0,7 | - | - | |||||
| 75° | +0,8 | +0,8 | +0,8 | - | - | |||||
| Direção do fluxo θ = 180° | ||||||||||
| 5° | -2,3 | -2,5 | -1,3 | -2,0 | -0,8 | -1,2 | - | - | ||
| 15° | -2,5 | -2,8 | -1,3 | -2,0 | -0,9 | -1,2 | - | - | ||
| 30° | -1,1 | -2,3 | -0,8 | -1,5 | -0,8 | - | - | |||
| 45° | -0,6 | -1,3 | -0,5 | -0,7 | - | - | ||||
| 60° | -0,5 | -1,0 | -0,5 | -0,5 | - | - | ||||
| 75° | -0,5 | -1,0 | -0,5 | -0,5 | - | - | ||||
| Direção do fluxo θ = 90° | ||||||||||
| Falta | fbaixa | |||||||||
| cpe,10 | cpe,1 | cpe,10 | cpe,1 | |||||||
| 5° | -2,1 | -2,6 | -2,1 | -2,4 | -1,8 | -2,0 | -0,6 | -1,2 | -0,5 | |
| 15° | -2,4 | -2,9 | -1,6 | -2,4 | -1,9 | -2,5 | -0,8 | -1,2 | -0,7 | -1,2 |
| 30° | -2,1 | -2,9 | -1,3 | -2,0 | -1,5 | -2,0 | -1,0 | -1,3 | -0,8 | -1,2 |
| 45° | -1,5 | -2,4 | -1,3 | -2,0 | -1,4 | -2,0 | -1,0 | -1,3 | -0,9 | -1,2 |
| 60° | -1,2 | -2,0 | -1,2 | -2,0 | -1,2 | -2,0 | -1,0 | -1,3 | -0,7 | -1,2 |
| 75° | -1,2 | -2,0 | -1,2 | -2,0 | -1,2 | -2,0 | -1,0 | -1,3 | -0,5 | |
| 1) A interpolação linear dos valores intermédios é permitida, desde que o sinal não muda. O valor de 0,0 é fornecido para a interpolação. 2) Para a direção do fluxo θ = 0° e os ângulos de inclinação α = +5° a +45°, a pressão varia muito rapidamente entre valores positivos e negativos. Portanto, o coeficiente de pressão externa positivo e o negativo são fornecidos para esta área. Para tais coberturas, os dois casos (pressão e sucção) têm de ser considerados separadamente, considerando primeiro apenas os valores positivos (pressão) e segundo, apenas os valores negativos (sucção). | ||||||||||
cobertura de duas águas
A forma de cobertura que consiste em duas superfícies de cobertura inclinadas opostas, que se intersectam na borda horizontal superior na cumeeira, é denominada cobertura de duas águas. Esta geometria tem os seus próprios efeitos aerodinâmicos nas áreas de aplicação de carga [1] , [2].
| Intervalo | B | G | h | I | J | ||||||
|---|---|---|---|---|---|---|---|---|---|---|---|
| Direção do fluxo θ = 0°2) | |||||||||||
| Ângulo de inclinação α1) | cpe,10 | cpe,1 | cpe,10 | cpe,1 | cpe,10 | cpe,1 | cpe,10 | cpe,1 | cpe,10 | cpe,1 | |
| 5° | -1,7 | -2,5 | -1,2 | -2,0 | -0,6 | -1,2 | -0,6 | +0,2 | |||
| +0,0 | +0,0 | +0,0 | -0,6 | ||||||||
| 15° | -0,9 | -2,0 | -0,8 | -1,5 | -0,3 | -0,4 | -1,0 | -1,5 | |||
| +0,2 | +0,2 | +0,2 | +0,0 | +0,0 | +0,0 | ||||||
| 30° | -0,5 | -1,5 | -0,5 | -1,5 | -0,2 | -0,4 | -0,5 | ||||
| +0,7 | +0,7 | +0,4 | +0,0 | +0,0 | |||||||
| 45° | -0,0 | -0,0 | -0,0 | -0,2 | -0,3 | ||||||
| +0,7 | +0,7 | +0,6 | +0,0 | +0,0 | |||||||
| 60° | +0,7 | +0,7 | +0,7 | -0,2 | -0,3 | ||||||
| 75° | +0,8 | +0,8 | +0,8 | -0,2 | -0,3 | ||||||
| Direção do fluxo θ = 90° | |||||||||||
| 5° | -1,6 | -2,2 | -1,3 | -2,0 | -0,7 | -1,2 | -0,6 | - | - | ||
| 15° | -1,3 | -2,0 | -1,3 | -2,0 | -0,6 | -1,2 | -0,5 | - | - | ||
| 30° | -1,1 | -1,5 | -1,4 | -2,0 | -0,8 | -1,2 | -0,5 | - | - | ||
| 45° | -1,1 | -1,5 | -1,4 | -2,0 | -0,9 | -1,2 | -0,5 | - | - | ||
| 60° | -1,1 | -1,5 | -1,2 | -2,0 | -0,8 | -1,0 | -0,5 | - | - | ||
| 75° | -1,1 | -1,5 | -1,2 | -2,0 | -0,8 | -1,0 | -0,5 | - | - | ||
| 1) Para a direção do fluxo θ = 0° e os ângulos de inclinação α = -5° até +45°, a pressão altera-se muito rapidamente entre valores positivos e negativos. Por isso, são indicados tanto o valor positivo como o negativo. Para tais coberturas, têm de ser considerados quatro casos, onde o menor ou maior valor para as áreas F, G e H é combinado com o menor ou maior valor para as áreas I e J. Valores positivos e negativos não podem ser combinados numa superfície de cobertura. 2) Para inclinações da cobertura entre os valores indicados, é permitida a interpolação linear, desde que o sinal dos coeficientes de pressão não se altere. Para inclinações entre α = +5° e -5°, os valores para coberturas planas têm de ser utilizados de acordo com a norma DIN EN 1991-1-4 plus Capítulo 7.2.3. O valor zero é fornecido para a interpolação. | |||||||||||