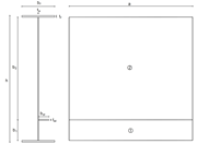
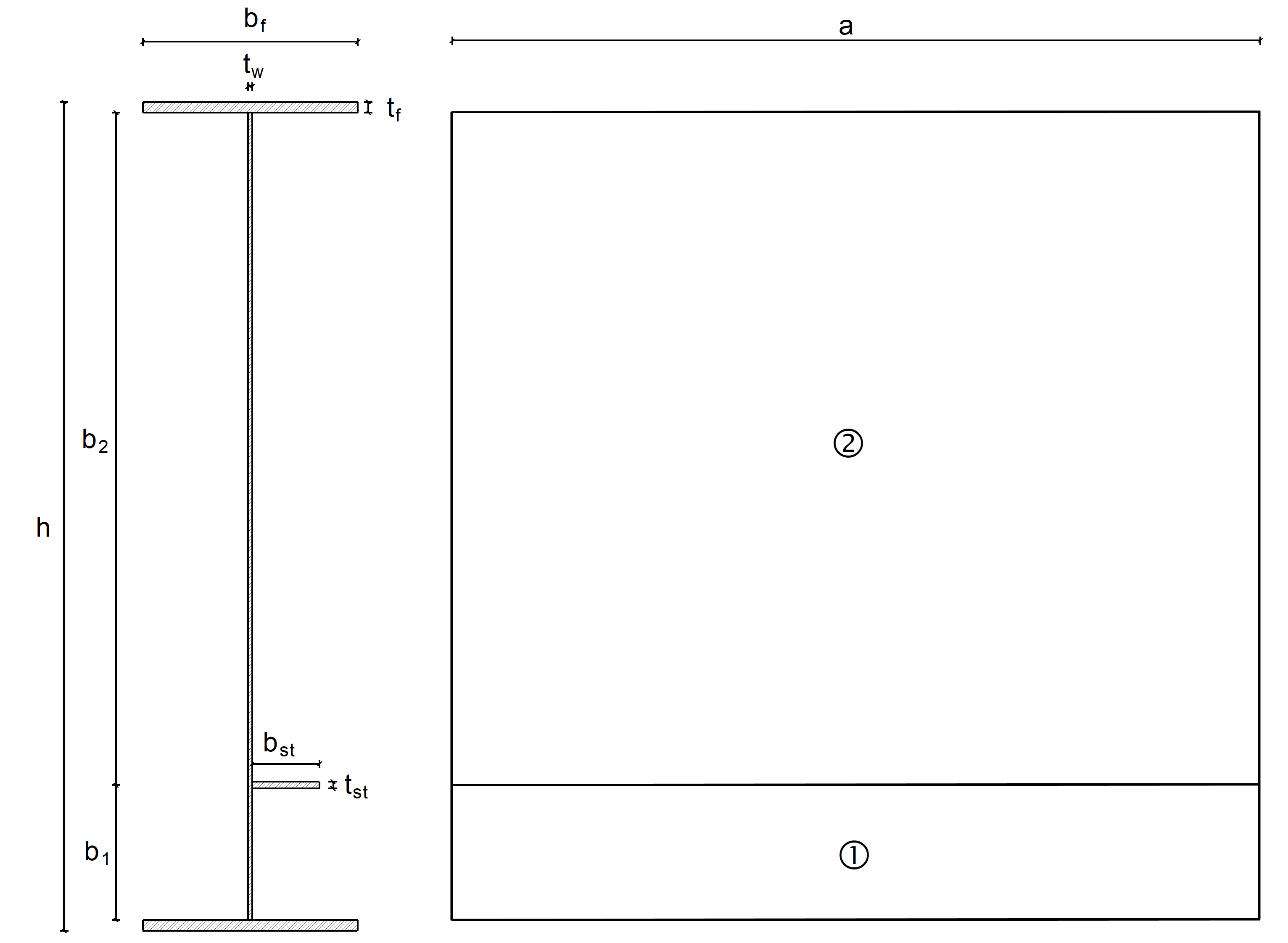
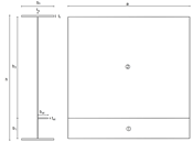
secção
distribuição de tensões
Maioria da secção da barra de compressão equivalente
Maioria da secção e efetiva devido à encurvadura local
Barra de compressão equivalente e reforço: Distâncias e1, e2
Secção equivalente devido à encurvadura local e global
Parâmetros de cálculo
Partes da secção para classificação
Reforços
Painéis reforçados
Ergebnisse
secção
distribuição de tensões
Maioria da secção da barra de compressão equivalente
Maioria da secção e efetiva devido à encurvadura local
Barra de compressão equivalente e reforço: Distâncias e1, e2
Secção equivalente devido à encurvadura local e global
Parâmetros de cálculo
Partes da secção para classificação
Reforços
Painéis reforçados
Ergebnisse
2024-05-30
009113
  • SHAPE-THIN 8
  • Estruturas de aço
  • Análise de tensões
    • Análise de estabilidade
    • Eurocode 3

secção

Utilizado em
  • Painéis reforçados longitudinalmente segundo a EN 1993-1-5, Secção 4.5
Partilhar
2024-05-30
009114
  • SHAPE-THIN 8
  • Estruturas de aço
  • Análise de tensões
    • Análise de estabilidade
    • Eurocode 3
distribuição de tensões
Utilizado em
  • Painéis reforçados longitudinalmente segundo a EN 1993-1-5, Secção 4.5
Partilhar
2024-05-30
009115
  • SHAPE-THIN 8
  • Estruturas de aço
  • Análise de tensões
    • Análise de estabilidade
    • Eurocode 3
Maioria da secção da barra de compressão equivalente
Utilizado em
  • Painéis reforçados longitudinalmente segundo a EN 1993-1-5, Secção 4.5
Partilhar
2024-05-30
009116
  • SHAPE-THIN 8
  • Estruturas de aço
  • Análise de tensões
    • Análise de estabilidade
    • Eurocode 3
Maioria da secção e efetiva devido à encurvadura local
Utilizado em
  • Painéis reforçados longitudinalmente segundo a EN 1993-1-5, Secção 4.5
Partilhar
2024-05-30
009117
  • SHAPE-THIN 8
  • Estruturas de aço
  • Análise de tensões
    • Análise de estabilidade
    • Eurocode 3
Barra de compressão equivalente e reforço: Distâncias e1, e2
Utilizado em
  • Painéis reforçados longitudinalmente segundo a EN 1993-1-5, Secção 4.5
Partilhar
2024-05-30
009118
  • SHAPE-THIN 8
  • Estruturas de aço
  • Análise de tensões
    • Análise de estabilidade
    • Eurocode 3
Secção equivalente devido à encurvadura local e global
Utilizado em
  • Painéis reforçados longitudinalmente segundo a EN 1993-1-5, Secção 4.5
Partilhar
2024-05-30
009119
  • SHAPE-THIN 8
  • Estruturas de aço
  • Análise de tensões
    • Análise de estabilidade
    • Eurocode 3
Parâmetros de cálculo
Utilizado em
  • Painéis reforçados longitudinalmente segundo a EN 1993-1-5, Secção 4.5
Partilhar
2024-05-30
009120
  • SHAPE-THIN 8
  • Estruturas de aço
  • Análise de tensões
    • Análise de estabilidade
    • Eurocode 3
Partes da secção para classificação
Utilizado em
  • Painéis reforçados longitudinalmente segundo a EN 1993-1-5, Secção 4.5
Partilhar
2024-05-30
009121
  • SHAPE-THIN 8
  • Estruturas de aço
  • Análise de tensões
    • Análise de estabilidade
    • Eurocode 3
Reforços
Utilizado em
  • Painéis reforçados longitudinalmente segundo a EN 1993-1-5, Secção 4.5
Partilhar
2024-05-30
009122
  • SHAPE-THIN 8
  • Estruturas de aço
  • Análise de tensões
    • Análise de estabilidade
    • Eurocode 3
Painéis reforçados
Utilizado em
  • Painéis reforçados longitudinalmente segundo a EN 1993-1-5, Secção 4.5
Partilhar
2024-05-30
009123
  • SHAPE-THIN 8
  • Estruturas de aço
  • Análise de tensões
    • Análise de estabilidade
    • Eurocode 3
Ergebnisse
Utilizado em
  • Painéis reforçados longitudinalmente segundo a EN 1993-1-5, Secção 4.5
Partilhar