9471x
001536
2018-09-12

Painéis reforçados longitudinalmente segundo a EN 1993-1-5, Secção 4.5

No SHAPE-THIN é possível realizar o cálculo de painéis reforçados longitudinalmente de acordo com a Secção 4.5 da norma EN 1993-1-5. Para painéis reforçados longitudinalmente têm de ser consideradas as superfícies efectivas devido à encurvadura local dos painéis singulares na laje e nos reforços, bem como as superfícies efetivas de todo o painel de encurvadura do reforço de todo o painel.

Em primeiro lugar, as superfícies efetivas dos painéis singulares são determinadas através do fator de redução de acordo com a EN 1993-1-5 [1] , Secção 4.4, para ter em consideração a encurvadura dos painéis singulares. Numa segunda etapa, a segurança de encurvadura de todo o painel é determinada tendo em consideração o comportamento de encurvadura similar ao das encurvadura das barras. Com o fator de redução de todo o painel de encurvadura, as larguras efetivas do painel singular são novamente reduzidas. Isto resulta numa secção eficaz que pode ser gerida como secção da classe 3.

Exemplo

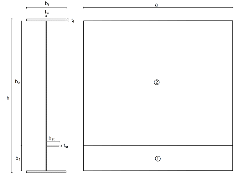
O exemplo seguinte é retirado do Anuário de estruturas em Aço de 2015 [2]. A secção consiste numa viga em I cuja alma é reforçada por um reforço transversal rígido e um reforço longitudinal. Os reforços transversais são dispostos numa distância de 3,000 mm entre estes e o reforço longitudinal é soldado a uma distância de 500 mm do banzo inferior. As soldaduras são ignoradas. Uma força de compressão axial de NEd = 4,000 kN está a atuar.

Material:
S355 J0
fy = 35,5 kN/cm² (para t ≤ 3 mm e t ≤ 16 mm)
fy = 34,5 kN/cm² (para t >16 mm e t ≤ 40 mm)
E= 21 000 kN/cm²
G = 8076,92 kN/cm²
γM0 = 1,0

a = 3,000 mm
b1 = 500 mm
b2 = 2500 mm
bf = 800 mm
bst = 250 mm
tw = 15 mm
tf = 40 mm
tst = 25 mm
h = 3,080 mm

Secção bruta e distribuição de tensões

A tensão é calculada da seguinte forma:

A secção bruta e a distribuição de tensões são apresentadas na Figura 02.

Classificação da secção

Durante a classificação da secção, é avaliado se é necessário o dimensionamento de uma encurvadura para painéis singulares. Se o painel é pelo menos de secção classe 3, encurvadura local não é determinante.

corda

A relação c/t máxima λi é determinada de acordo com EN 1993-1-1 [3] , Tabela 5.2.

O banzo tem de ser atribuído com secção de classe 3. A encurvadura local não é determinante e não é necessária redução deste painel.

Alma

A relação c/t máxima λi é determinada de acordo com [3] , Tabela 5.2.

O painel 1 tem de ser atribuído com a classe 3 de secção. A encurvadura local não é determinante e não é necessária redução deste painel.

A relação c/t máxima λi é determinada de acordo com [3] , Tabela 5.2.

O painel 2 tem de ser atribuído com secção de classe 4. A encurvadura local é determinante para este painel e é necessária a redução deste painel.

Reforço

A relação c/t máxima λi é determinada de acordo com [3] , Tabela 5.2.

A alma tem de ser atribuída com secção de classe 3. A encurvadura local não é determinante e não é necessária redução deste painel.

Larguras efetivas

O painel 1 é atribuído com secção de classe 3 por isso a encurvadura local não é determinante. Os valores da secção efetiva correspondem aos valores da secção bruta. De acordo com [1] , Tabela 4.1, isto resulta nas seguintes larguras efetivas:

O painel 2 é atribuído com secção de classe 4 por isso a encurvadura local é determinante. As larguras efectivas do painel 2 tem de ser determinadas de acordo com [1] , Secção 4.4.

A distribuição de tensões no painel 2 é uniforme. Isto resulta numa relação de tensões de ψ = 1 e, de acordo com a Tabela 4.1, num valor de encurvadura de kσ = 4,0. De acordo com [1] , Secção 4.4(2), o resultado para a relação de esbelteza λp2 é:

 

O fator de redução local ρ é determinado de acordo com [1] , Equação (4.2):

As larguras efetivas do painel 2, tendo em consideração a encurvadura local, são calculadas de acordo com [1] , Tabela 4.1:

As larguras da secção bruta resultam em:

Comportamento das lajes

A tensão de encurvadura elástica crítica da rigidez σcr,sl é calculada de acordo com [1] , Anexo A.2.2. O comprimento efetivo do reforço ac tem de ser calculado primeiro:

A tensão de encurvadura elástica crítica do reforço σcr,sl resulta com a < ac in:

Isl,1 e Asl,1 representam aqui o segundo momento da área da secção bruta e a área da secção bruta da barra de compressão equivalente de acordo com [1] ; A.2.1(2) para encurvadura perpendicular ao plano da laje, bem como b1 e b2 descrever as distâncias dos reforços às bordas longitudinais (b1 + b2 = b).

A distribuição da tensão é uniforme. Portanto, a tensão de encurvadura elástica da placa σcr,p corresponde à tensão de encurvadura crítica σcr,sl.

A área da secção bruta Ac do painel da placa reforçada longitudinalmente sem ter em conta as placas de extremidade apoiadas por um componente de placa adjacente e a área da secção efetiva Ac,eff,loc,p da área descrito acima:

O reforço pertence à secção de classe 3 por isso a área da secção efetiva do reforço corresponde à área da secção bruta do reforço.

Os valores da secção são apresentados na Figura 04.

O coeficiente de redução βa,c,p é calculado de acordo com [1] , Secção 4.5.2, como se segue:

A esbelteza global λp da chapa reforçada de acordo com [1] , Equação (4.7), resulta em:

 

De acordo com [1] , 4.4 (2), a relação de esbelteza λp é menor do que o valor limite 0,673. Portanto, não é necessária redução devido ao comportamento da laje; por exemplo, ρp = 1,0.

Comportamento da encurvadura local

A tensão de encurvadura crítica elásticaσcr,c é determinada de acordo com [1] , Secção 4.5.3(3). Em primeiro lugar, a tensão de encurvadura σcr,c,sl do reforço, que está posicionado na extremidade de compressão com carga máxima, é determinada de acordo com [1] , Equação (4.9).

A distribuição da tensão é uniforme. Portanto, a tensão de encurvadura crítica elásticaσcr,c corresponde à tensão de encurvadura elástica σcr,c,sl do reforço que é colocado na extremidade com força de compressão máxima.

σcr,c = σcr,c,sl = 94,7 kN/cm²

O coeficiente de redução βa,c,c é calculado de acordo com [1] , Secção 4.5.3(4) do seguinte modo:

A relação de esbelteza λcda barra de compressão equivalente resulta, de acordo com [1] , Equação (4.11 ), em:

De acordo com [1] , Secção 4.5.3(5), o raio de giração i é calculado da seguinte forma:

A distância e é a maior das duas distâncias de acordo com [1] , Figura A.1; por exemplo, quer a distância e1 de um único reforço, ajustado entre o centro de gravidade e considerado independente da placa, sem a largura efectiva ao eixo do centro geométrico da placa de reforço ou a distância e2 do eixo do centro geométrico da placa de reforço painel com o plano central da chapa. As distâncias são apresentadas na Figura 05.

e = máx (e1, e2 ) = máx (10,39 cm, 2,86 cm) = 10,39 cm

O fator de imperfeição αe é determinado de acordo com [1] , Equação (4.12) com α = 0.49, para secções abertas de reforço do seguinte modo:

O coeficiente de redução χc é determinado de acordo com [3] , 6.3.1.2 :

Interação entre encurvadura local e comportamento da laje.

O comportamento estrutural de todo o painel é determinado com o fator ξ, de acordo com [1] , Secção 4.5.4(1):

O coeficiente de redução final ρc é determinado com a equação de interação de acordo com [1] , Equação (4.13):

Valores da secção efetiva

A superfície efetiva da zona de compressão Ac,ef do painel da placa reforçada é calculada de acordo com [1] , Equação (4.5):

A área de secção efetiva Aeff resulta em:

Dimensionamento do painel reforçado

Os eixos do centro geométrico da secção bruta e da secção efetiva não coincidem, por isso atuam momentos de flexão adicionais devido ao deslocamento dos eixos do centro geométrico da secção efetiva relativos ao eixo central da secção bruta que tem de ser considerados aqui. Esses momentos de flexão adicionais são calculados da seguinte forma:

A tensão máxima resulta em:

O dimensionamento é realizado de acordo com [1] , Equação (4.15) como se segue:

Dimensionamento da encurvadura por torção

De acordo com [1] , Secção 9.2.1(8) tem de ser cumprido o seguinte critério de forma geral para evitar a encurvadura por torção dos reforços com secções abertas:

Ip e ISt.Ven descrevem o momento de inércia polar e o momento de inércia de Saint-Venant da secção rígida só (sem placa), calculado em torno do ponto de ligação à placa.

Se é considerado o empenamento do reforço, a tensão de encurvadura por torção críticaσcr tem de ser determinada primeiro. É calculada de acordo com [4] , Equação (2.119) e Equação (2.120) como se segue:

O reforço tem uma constante de empenamento de Iω = 0 cm6. A tensão de encurvadura por torção críticaσcr é simplificada para:

Ip e ISt.Ven descrevem o momento de inércia polar e o momento de inércia de Saint-Venant da secção rígida só (sem placa), calculado em torno do ponto de ligação à placa.

De acordo com [1] , Secção 9.2.1(9), o critério em 9.2.1(8) ou o critério seguinte tem de ser considerado quando tem em consideração o empenamento do reforço:

Com um fator para assegurar o comportamento elástico de acordo com a secção da classe 3 de acordo com [5] de θ = 2 f para reforços com baixa rigidez ao empenamento (por exemplo, barra plana ou barra de aço com bolbo), o resultado é:

O dimensionamento à encurvadura por torção é assim cumprido.

SHAPE-THIN

No SHAPE-THIN, é possível realizar o cálculo dos painéis reforçados longitudinalmente de acordo com [1] , Secção 4.5. O painel de controlo "partes c/t e propriedades da secção efetiva" tem de ser ativado nos dados gerais. Após, "EN 1993-1-1 e EN 1993-1-5" tem de ser selecionadas nos parâmetros de cálculo e o painel de controlo "secção efetiva de acordo com EN 1993-1-5, Secção 4.5" também tem de ser selecionada. A determinação das larguras efetivas deve ser realizada num processo iterativo de acordo com [1] , Secção 4.4(3). Neste exemplo, apenas uma iteração tem de ser utilizada para o cálculo, por isso também apenas uma iteração aparecerá no SHAPE-THIN (ver Figura 07).

Os elementos da secção tem de ser introduzidos em primeiro lugar. As partes c/t são geralmente geradas automaticamente a partir das condições geométricas; contudo estas podem ser definidas pelo utilizador na Tabela "1.7 Partes de Secções para o cálculo de acordo com EN 1993-1" (ver Figura 08) ou a correspondente caixa e diálogo.

Os reforços podem depois ser definidos na Tabela "1.8 Reforço"ou na correspondente caixa de diálogo (ver Figura 09).

Além do mais, o painel reforçado tem de ser especificado na Tabela "1.9 painéis reforçados" (ver Figura 10) ou a correspondente caixa de diálogo. Os elementos do painel reforçado têm de ser selecionados e a distância do reforço transversal tem de ser introduzida. Se não for definida distância para o reforço transversal, o valor a = 10,000 mm será aplicado para o cálculo. Os reforços localizados no painel de encurvadura são identificados automaticamente. O painel reforçado tem de ser apoiado no seu inicio e final, o que significa que é necessário aqui um apoio.

Os resultados da secção efetiva podem ser visualizados com o botão [Larguras efetivas].


Autor

Sonja trabalha em Product Engineering e também dá suporte no Customer Support. O seu foco está em RSECTION, bem como na construção em aço e alumínio, onde ela aplica os seus conhecimentos de forma direcionada.

Ligações
Referências
Downloads


;