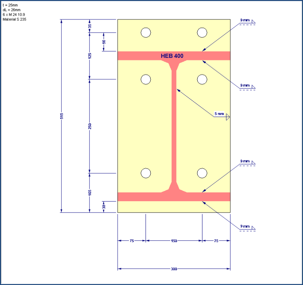
Exemplo de cálculo
Parâmetros para comprimentos efetivos (Fonte: [1])
Determinação do valor α (Fonte: [1])
Tragfähigkeiten der Schraubenreihen und zugehörige Hebelarme
Estado limite último no RF-/FRAME-JOINT Pro
Exemplo de cálculo
Parâmetros para comprimentos efetivos (Fonte: [1])
Determinação do valor α (Fonte: [1])
Tragfähigkeiten der Schraubenreihen und zugehörige Hebelarme
Estado limite último no RF-/FRAME-JOINT Pro
2024-05-30
009326
  • RFEM 5
  • RSTAB 8
  • RF-FRAME-JOINT Pro 5
    • FRAME-JOINT Pro 8
    • Estruturas de aço
    • Ligações de aço
    • Eurocode 3

Exemplo de cálculo

Utilizado em
  • Exemplo de cálculo de ligação de placa de extremidade rígida segundo a EN 1993-1-8
Partilhar
2024-05-30
009327
  • RFEM 5
  • RSTAB 8
  • RF-FRAME-JOINT Pro 5
    • FRAME-JOINT Pro 8
    • Estruturas de aço
    • Ligações de aço
    • Eurocode 3
Parâmetros para comprimentos efetivos (Fonte: [1])
Utilizado em
  • Exemplo de cálculo de ligação de placa de extremidade rígida segundo a EN 1993-1-8
Partilhar
2024-05-30
009328
  • RFEM 5
  • RSTAB 8
  • RF-FRAME-JOINT Pro 5
    • FRAME-JOINT Pro 8
    • Estruturas de aço
    • Ligações de aço
    • Eurocode 3
Determinação do valor α (Fonte: [1])
Utilizado em
  • Exemplo de cálculo de ligação de placa de extremidade rígida segundo a EN 1993-1-8
Partilhar
2024-05-30
009329
  • RFEM 5
  • RSTAB 8
  • RF-FRAME-JOINT Pro 5
    • FRAME-JOINT Pro 8
    • Estruturas de aço
    • Ligações de aço
    • Eurocode 3
Tragfähigkeiten der Schraubenreihen und zugehörige Hebelarme
Utilizado em
  • Exemplo de cálculo de ligação de placa de extremidade rígida segundo a EN 1993-1-8
Partilhar
2024-05-30
009330
  • RFEM 5
  • RSTAB 8
  • RF-FRAME-JOINT Pro 5
    • FRAME-JOINT Pro 8
    • Estruturas de aço
    • Ligações de aço
    • Eurocode 3
Estado limite último no RF-/FRAME-JOINT Pro
Utilizado em
  • Exemplo de cálculo de ligação de placa de extremidade rígida segundo a EN 1993-1-8
Partilhar