21439x
001497
2017-12-12

Exemplo de cálculo de ligação de placa de extremidade rígida segundo a EN 1993-1-8

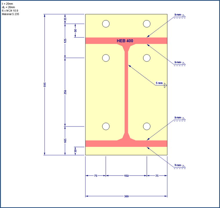
Neste exemplo, a resistência de cálculo de uma chapa de extremidade de acordo com a EN 1993-1-8 [1] é para ser determinada; os outros componentes não são descritos aqui. Für die Kontrolle der Ergebnisse wurden die Abmessungen des Anschlusses IH 3.1 B 30 24 der Typisierten Anschlüsse [2] verwendet. Als Material wird S 235 verwendet und Schrauben mit der Festigkeit 10.9.

Determinação de comprimentos efetivos

Em primeiro lugar, é necessário determinar os comprimentos efetivos dos tocos de banzo de acordo com a Tabela 6.6. A fila de parafusos inferior tem apenas efeito no banzo comprimido devido ao braço de alavanca muito pequeno e é, portanto, negligenciada. Uma vez que ambas as filas de parafusos superiores são divididas pelo banzo tracionado da viga, as filas de parafusos só devem ser consideradas separadamente. Assim, é possível evitar a rotura em grupo das linhas de parafusos. O cálculo dos comprimentos efetivos requer os parâmetros e, m, ex, mx , m2 , bp , w.

Para este exemplo, foram calculados os seguintes valores:

No caso dos comprimentos efetivos, é feita uma distinção entre padrões de linha de cedência circulares e não circulares. O padrão de linha de elasticidade linear requer o valor α da Figura 6.11. Os valores de entrada para isto são baseados na relação dos braços de alavanca com a alma de viga (λ1 ) ou entre o banzo de viga (λ2 ) e a largura total do banzo de toco em T. Os valores para α entre dois diagramas na Figura 6.11 podem ser interpolados linearmente.

Utilizando estes valores de entrada, os comprimentos efetivos são determinados de acordo com a Tabela 6.6 da seguinte forma.

Padrão de linha de elasticidade circular para a linha de parafusos exterior:

Padrão de linha de elasticidade circular para a linha de parafusos interior:
leff,cp,i = 2 ∙ π ∙ 62,6 = 393,3 mm

Padrão de linha de elasticidade não circular para a linha de parafusos exterior:

Padrão de linha de elasticidade não circular para a linha de parafusos interior:
leff,nc,i = 6,65 ∙ 62,6 = 416,3 mm

Para determinar a resistência de cálculo no modo de rotura 1, ou seja, com plastificações puras de banzo, é utilizado o comprimento mais curto de ambos os padrões de linha de elasticidade. Ao determinar a resistência de cálculo no modo de rotura 2, ou seja, rotura do parafuso com plastificações simultâneas do banzo, só pode ocorrer o padrão de linha de elasticidade não circular.

Isto resulta nos seguintes comprimentos efetivos.

Linha de parafusos exterior:
leff,1,a = 150 mm
leff,2,a = 150 mm

Linha de parafusos interior:
leff1,i = 393,3 mm
leff2,i = 416,3 mm

Verificar se podem desenvolver forças de alavancagem

Antes de determinar a resistência de cálculo da placa de extremidade no modo de rotura 1, tem de ser verificado se podem ser desenvolvidas forças de alavancagem. Como isso permite atingir valores de resistência de cálculo mais altos, as dimensões e a espessura do pacote de garras devem sempre ser escolhidas ou alteradas de forma que a equação Lb < Lb * seja cumprida. Lb é o comprimento de alongamento do parafuso, considerado igual ao comprimento da garra (espessura total do material e arruelas), mais metade da soma da altura da cabeça do parafuso e a altura da porca.

O comprimento da garra, assumindo que é aplicada uma ligação de viga simétrica, resulta em:
Lb = 2 ∙ 25 + 2 ∙ 4 + 0,5 ∙ 19 + 0,5 ∙ 15 = 75 mm

Lb * tem de ser determinado separadamente para as linhas de parafusos exterior e interior.

Linha de parafusos exterior:

Linha de parafusos interior:

Por isso, podem ser desenvolvidas forças de alavancagem em ambas as filas de parafusos.

Resistência de cálculo de banzos em T

Para o modo de rotura "cedimento completo do banzo", é utilizado neste exemplo o método 1 da EN 1993-1-8. A resistência à tração de ambos os banzos com tocos em T é determinada da seguinte forma.

Modo de rotura "Rotura de parafuso com flexão do banzo":

Determinação da resistência de cálculo de banzos com tocos em T

O modo de rotura 2 prevalece para ambas as filas de parafusos.

Linha de parafusos exterior: 385,12 kN

Linha de parafusos interior: 499,24 kN

Momento resistente da ligação

Os valores da resistência de cálculo calculados das filas de parafusos individuais agora só precisam ser multiplicados pelo respectivo braço de alavanca até ao ponto de compressão.

Os braços de alavanca são
438 mm para a fila de parafusos exterior,
313 mm para a fila de parafusos interior.

Assim, o momento de cálculo resistente da ligação resulta em
MRd = 385,12 ∙ 0,438 + 499,24 ∙ 0,313 = 324,95 kNm.

Comparação de resultados

Se esta ligação for calculada como uma ligação de pórtico rígido no RF-/FRAME-JOINT Pro, a resistência de cálculo resultante da placa de extremidade é de 319,79 kNm. De acordo com as ligações tipificadas [2] , a resistência de cálculo é de 331,3 kNm, o que corresponde com relativa precisão ao cálculo manual.


Autor

O Eng. Fröhlich presta apoio técnico aos clientes e é responsável pelo desenvolvimento de produtos para estruturas de aço.

Ligações
Referências
Downloads


;