Sistema
Propriedades de secções transversais
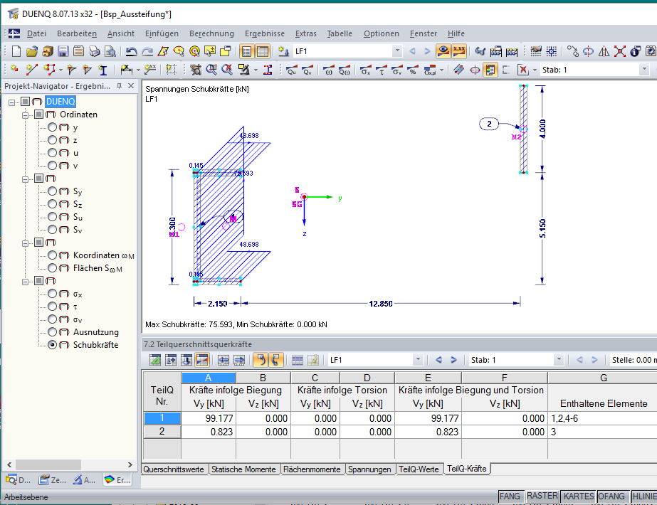
Forças de secção da parede de corte
Sistema
Propriedades de secções transversais
Forças de secção da parede de corte
2024-05-30
009631
  • RFEM 5
  • SHAPE-THIN 8

Sistema

Utilizado em
  • Reforço de estruturas
Partilhar
2024-05-30
009632
  • RFEM 5
  • SHAPE-THIN 8
Propriedades de secções transversais
Utilizado em
  • Reforço de estruturas
Partilhar
2024-05-30
009633
  • RFEM 5
  • SHAPE-THIN 8
Forças de secção da parede de corte
Utilizado em
  • Reforço de estruturas
Partilhar