5626x
001431
2017-05-01

Reforço de estruturas

Os edifícios devem ser concebidos e dimensionados de forma a que as cargas verticais e horizontais sejam condutas com segurança e sem grandes deformações no edifício. Beispiele für Horizontallasten sind Wind, ungewollte Schiefstellung, Erdbeben sowie Anprall.

Um software de análise de elementos finitos como o RFEM permite determinar esforços internos e dimensionar elementos estruturais de reforço. Das Gebäude kann darin mit allen tragenden Gebäudeteilen, Öffnungen und so weiter abgebildet und als Gesamtmodell berechnet werden.

Die Vordimensionierung von Aussteifungssystemen kann mit den in [1] dargestellten Berechnungsverfahren mittels Handrechnung oder unter Verwendung von Programmen wie DUENQ erfolgen. Sie eröffnen dem Ingenieur ein besseres Verständnis für den Lastabtrag des Systems sowie den Tragfähigkeitsbeitrag der einzelnen Bauteile.

Verteilung der Horizontalkräfte

Die Horizontallastverteilung für Biege- oder Torsionsbeanspruchung auf die aussteifenden Bauteile kann gemäß den nachfolgenden Formeln berechnet werden.

Forces due to Bending


Onde
Vy,i, Vz,i: Querkraft in y- beziehungsweise z-Richtung, die den Teilquerschnitt i belastet
Vy, Vz: Querkraft in y- beziehungsweise z-Richtung, die den Gesamtquerschnitt belastet
Iy,i, Iz,i, Iyz,i: Trägheitsmomente des Teilquerschnitts i, bezogen auf die zu Y und Z parallelen Achsen durch den Teilquerschnitts-Schwerpunkt Si
Iy, Iz: Gesamtträgheitsmomente bezogen auf den Gesamtschwerpunkt S

Forces due to Torsion


Onde
Vy,i, Vz,i: Querkraft in y- beziehungsweise z-Richtung, die den Teilquerschnitt i belastet
Mxs: sekundäres Torsionsmoment, das den Gesamtquerschnitt belastet
Iy,i, Iz,i, Iyz,i: Trägheitsmomente des Teilquerschnitts i, bezogen auf die zu Y und Z parallelen Achsen durch den Teilquerschnitts-Schwerpunkt Si
Iω,i: Wölbwiderstand bezogen auf den Teilquerschnitts-Schubmittelpunkt Mi
yM,i, zM,i: Koordinate des Teilquerschnitts-Schubmittelpunkts Mi
yM, zM: Koordinate des Gesamtschubmittelpunktes M

Exemplo

Die Verteilung der horizontalen Lasten auf die aussteifenden Elemente soll an dem im Bild 1 dargestellten System exemplarisch ermittelt werden.

Wandstärke t = 30 cm

propriedades da secção

Teilquerschnitt 1

Teilquerschnitt 2

Gesamtquerschnitt
Iy = 10,668 + 1,600 = 12,268 m4
Iz = 1,084 + 0,009 = 1,093 m4

Die mit DUENQ 8 ermittelten Querschnittskennwerte sind im Bild 2 dargestellt.

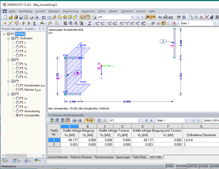
Forças de secção da parede de corte

Die mit DUENQ 8 ermittelten Teilquerschnittsquerkräfte sind im Bild 3 dargestellt.

Referências

[1] Beck, H.; Schäfer, H.: Die Berechnung von Hochhäusern durch Zusammenfassung aller aussteifenden Bauteile zu einem Balken. Der Bauingenieur, Heft 3, 1969


Autor

Sonja trabalha em Product Engineering e também dá suporte no Customer Support. O seu foco está em RSECTION, bem como na construção em aço e alumínio, onde ela aplica os seus conhecimentos de forma direcionada.

Ligações
Downloads


;