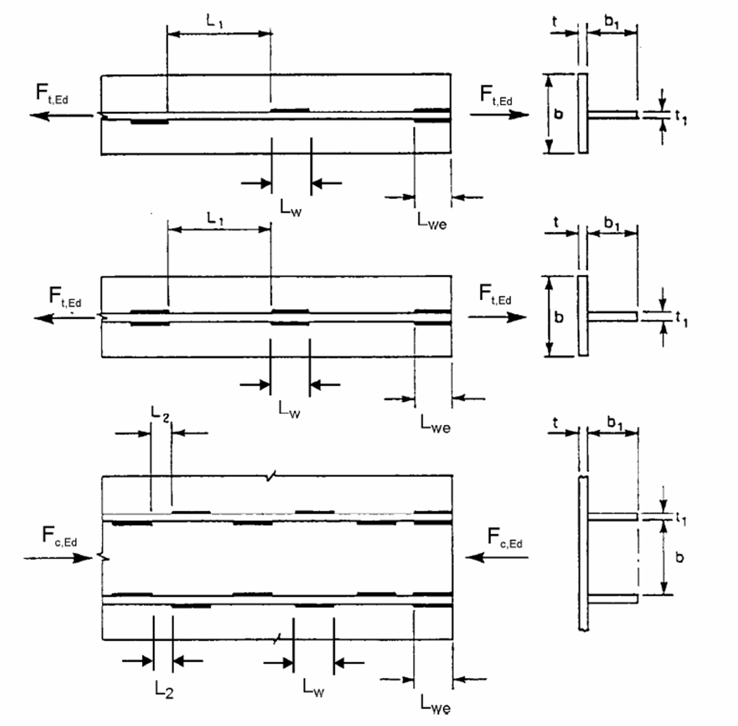
Opções de disposição
Soldadura contínua
DIN EN 1993-6 Tab. 5.1
Comprimento efetivo de propagação de carga
Spannungen im Grenzzustand der Tragfähigkeit
Secções de cordão de soldadura
Spannungen im Grenzzustand der Tragfähigkeit unterbrochen gegenüber
Spannungen im Grenzzustand der Tragfähigkeit unterbrochen versetzt
Opções de disposição
Soldadura contínua
DIN EN 1993-6 Tab. 5.1
Comprimento efetivo de propagação de carga
Spannungen im Grenzzustand der Tragfähigkeit
Secções de cordão de soldadura
Spannungen im Grenzzustand der Tragfähigkeit unterbrochen gegenüber
Spannungen im Grenzzustand der Tragfähigkeit unterbrochen versetzt
2024-05-30
009717
  • CRANEWAY 8
  • Gruas e pontes rolantes
  • Eurocode 3

Opções de disposição

Utilizado em
  • Dimensionamento de soldaduras de carris de vigas de ponte rolante segundo o Eurocódigo 3 (EN 1993-6) para o estado limite último
Partilhar
2024-05-30
009718
  • CRANEWAY 8
  • Gruas e pontes rolantes
  • Eurocode 3
Soldadura contínua
Utilizado em
  • Dimensionamento de soldaduras de carris de vigas de ponte rolante segundo o Eurocódigo 3 (EN 1993-6) para o estado limite último
Partilhar
2024-05-30
009719
  • CRANEWAY 8
  • Gruas e pontes rolantes
  • Eurocode 3
DIN EN 1993-6 Tab. 5.1
Utilizado em
  • Dimensionamento de soldaduras de carris de vigas de ponte rolante segundo o Eurocódigo 3 (EN 1993-6) para o estado limite último
Partilhar
2024-05-30
009720
  • CRANEWAY 8
  • Gruas e pontes rolantes
  • Eurocode 3
Comprimento efetivo de propagação de carga
Utilizado em
  • Dimensionamento de soldaduras de carris de vigas de ponte rolante segundo o Eurocódigo 3 (EN 1993-6) para o estado limite último
Partilhar
2024-05-30
009721
  • CRANEWAY 8
  • Gruas e pontes rolantes
  • Eurocode 3
Spannungen im Grenzzustand der Tragfähigkeit
Utilizado em
  • Dimensionamento de soldaduras de carris de vigas de ponte rolante segundo o Eurocódigo 3 (EN 1993-6) para o estado limite último
Partilhar
2024-05-30
009722
  • CRANEWAY 8
  • Gruas e pontes rolantes
  • Eurocode 3
Secções de cordão de soldadura
Utilizado em
  • Dimensionamento de soldaduras de carris de vigas de ponte rolante segundo o Eurocódigo 3 (EN 1993-6) para o estado limite último
Partilhar
2024-05-30
009723
  • CRANEWAY 8
  • Gruas e pontes rolantes
  • Eurocode 3
Spannungen im Grenzzustand der Tragfähigkeit unterbrochen gegenüber
Utilizado em
  • Dimensionamento de soldaduras de carris de vigas de ponte rolante segundo o Eurocódigo 3 (EN 1993-6) para o estado limite último
Partilhar
2024-05-30
009724
  • CRANEWAY 8
  • Gruas e pontes rolantes
  • Eurocode 3
Spannungen im Grenzzustand der Tragfähigkeit unterbrochen versetzt
Utilizado em
  • Dimensionamento de soldaduras de carris de vigas de ponte rolante segundo o Eurocódigo 3 (EN 1993-6) para o estado limite último
Partilhar