12811x
001402
2017-02-13

Dimensionamento de soldaduras de carris de vigas de ponte rolante segundo o Eurocódigo 3 (EN 1993-6) para o estado limite último

Quando as vigas de ponte rolante são concebidas com carris de aço plano, os detalhes de soldadura desses carris fazem sempre parte do dimensionamento. Generell kann hierfür zwischen durchlaufenden oder nicht durchlaufenden Kehlnähten als Befestigung gewählt werden. O seguinte artigo oferece uma visão global sobre os processos de verificação e as suas particularidades, em especial quando é utilizada a norma EN 1993-6.

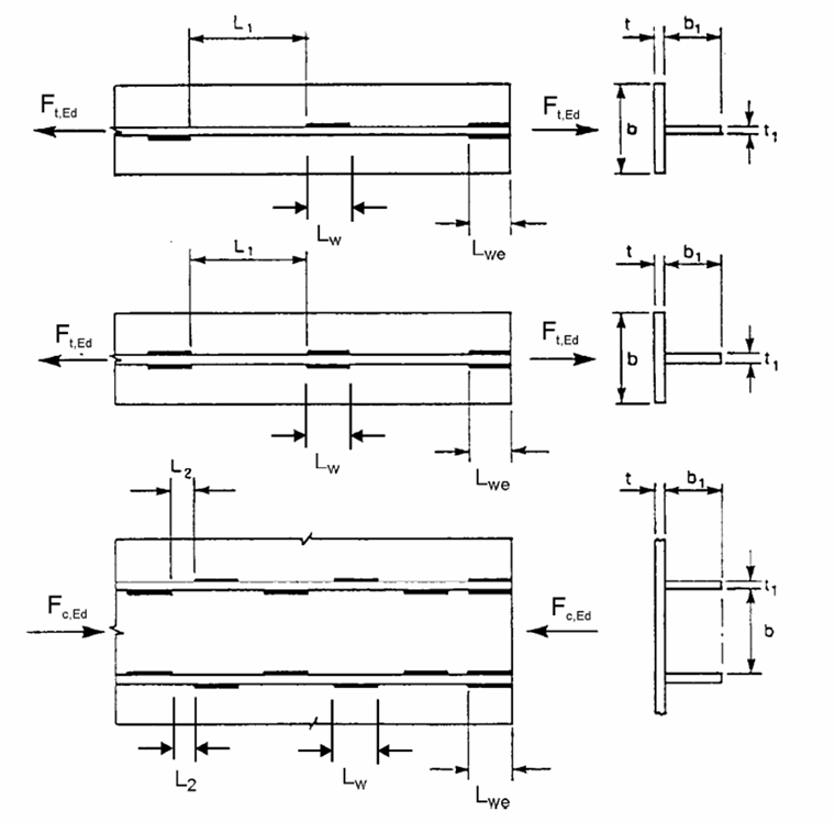
Opções de disposição de cordões de soldadura de carris

Existem duas variantes para ligações de cordões de soldadura contínuos. Estas podem ser vistas na seguinte figura retirada de [2].

As secções do cordão de soldadura podem ser dispostas em lados opostos ou defasadas. Para o dimensionamento, a disposição defasada tem a desvantagem de a transferência de cargas horizontais só poder ser utilizada para uma parte da soldadura. A terceira opção que não é apresentada na figura acima é, obviamente, um cordão de soldadura contínuo ao longo de todo o comprimento do carril.

Comprimento carregado efetivo

Para a determinação das respetivas tensões de soldadura é necessário o cálculo dos comprimentos efetivos carregados. A norma EN 1993‑6 [3] faz a diferenciação entre três possibilidades e disponibiliza as respetivas fórmulas para o cálculo de leff na Tabela 5.1.

Neste caso, leff refere-se à parte inferior do banzo superior. No entanto, a superfície superior do banzo superior governa o dimensionamento da soldadura. Por isso, leff é reduzido pela espessura duplicada do banzo tf.

Verificação do estado limite último

As tensões de soldadura de carril são calculadas de acordo com o método direcional especificado em [2]. Neste caso, as tensões dizem respeito à superfície de bissecção do cordão de soldadura. De acordo com [2], (NA) Capítulo 4.5.2 é obrigatório considerar espessuras mínimas para a soldadura. A norma prevê uma espessura mínima para as soldaduras de 3 mm ou a aplicação da seguinte fórmula:

A carga excêntrica da roda de 1/4 da largura da parte superior do carril não é considerada no estado limite último de acordo com a EN 1993-6. Por isso, é sempre efetuado um dimensionamento devido a carregamento radial cêntrico.

1º caso: Soldadura de carril contínua

Para cordões de soldadura de carris intermitentes é necessário verificar se o comprimento de soldadura lw é inferior ao comprimento carregado calculado leff. Geralmente, o mínimo de ambos os valores é determinante para o dimensionamento.

2º caso: Soldadura de carril intermitente em lados opostos

3º caso: Soldadura de carril intermitente defasado

Como a carga horizontal para uma disposição defasada da soldadura só é aplicada a uma secção de soldadura, a divisão por 2 é omitida na expressão de HEd.


Ligações
Referências


;