Pavilhão de aço
  • Visualizador 3D
  • Visualizador 3D | Babylon
  • Realidade virtual
Conversão para secção paramétrica
  • Visualizador 3D
  • Visualizador 3D | Babylon
  • Realidade virtual
Anpassung des parametrischen Profils
  • Visualizador 3D
  • Visualizador 3D | Babylon
  • Realidade virtual
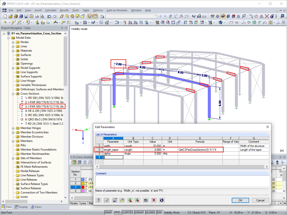
Parametrização do comprimento de secção em função da altura da secção
  • Visualizador 3D
  • Visualizador 3D | Babylon
  • Realidade virtual
Your browser does not support the video tag.
  • Visualizador 3D
  • Visualizador 3D | Babylon
  • Realidade virtual
Pavilhão de aço
Conversão para secção paramétrica
Anpassung des parametrischen Profils
Parametrização do comprimento de secção em função da altura da secção
Your browser does not support the video tag.
2024-05-30
021862
  • RFEM 5
  • Estruturas de aço

Pavilhão de aço

Utilizado em
  • Parametrização de secções laminadas
Modelo 3D
Mais sobre modelo 3D
  • Pavilhão de aço com secção laminada parametrizada
Especificações
Número de nós 65
Número de linhas 112
Número de barras 112
Número de casos de carga 16
Número de combinações de cargas 328
Número de combinações de resultados 2
Peso total 19,204 t
Dimensões (métricas) 20,587 x 30,587 x 7,169 m
Dimensões (imperial) 67.54 x 100.35 x 23.52 feet
Versão do programa 5.23.02
Partilhar
2024-05-30
010270
  • RFEM 5
  • RSTAB 8
  • Estruturas de aço
Conversão para secção paramétrica
Utilizado em
  • Parametrização de secções laminadas
Modelo 3D
Mais sobre modelo 3D
  • Pavilhão de aço com secção laminada parametrizada
Especificações
Número de nós 65
Número de linhas 112
Número de barras 112
Número de casos de carga 16
Número de combinações de cargas 328
Número de combinações de resultados 2
Peso total 19,204 t
Dimensões (métricas) 20,587 x 30,587 x 7,169 m
Dimensões (imperial) 67.54 x 100.35 x 23.52 feet
Versão do programa 5.23.02
Partilhar
2024-05-30
021860
  • RFEM 5
  • RSTAB 8
  • Estruturas de aço
Anpassung des parametrischen Profils
Utilizado em
  • Parametrização de secções laminadas
Modelo 3D
Mais sobre modelo 3D
  • Pavilhão de aço com secção laminada parametrizada
Especificações
Número de nós 65
Número de linhas 112
Número de barras 112
Número de casos de carga 16
Número de combinações de cargas 328
Número de combinações de resultados 2
Peso total 19,204 t
Dimensões (métricas) 20,587 x 30,587 x 7,169 m
Dimensões (imperial) 67.54 x 100.35 x 23.52 feet
Versão do programa 5.23.02
Partilhar
2024-05-30
021861
  • RFEM 5
  • RSTAB 8
  • Estruturas de aço
Parametrização do comprimento de secção em função da altura da secção
Utilizado em
  • Parametrização de secções laminadas
Modelo 3D
Mais sobre modelo 3D
  • Pavilhão de aço com secção laminada parametrizada
Especificações
Número de nós 65
Número de linhas 112
Número de barras 112
Número de casos de carga 16
Número de combinações de cargas 328
Número de combinações de resultados 2
Peso total 19,204 t
Dimensões (métricas) 20,587 x 30,587 x 7,169 m
Dimensões (imperial) 67.54 x 100.35 x 23.52 feet
Versão do programa 5.23.02
Partilhar
2024-03-09
021920
  • RFEM 5
  • Estruturas de aço
  • Análise de estabilidade
Deformação do pavilhão devido à carga de vento, animação
Deformação do pavilhão devido à carga de vento

Modelo 3D
Mais sobre modelo 3D
  • Pavilhão de aço com secção laminada parametrizada
Especificações
Número de nós 65
Número de linhas 112
Número de barras 112
Número de casos de carga 16
Número de combinações de cargas 328
Número de combinações de resultados 2
Peso total 19,204 t
Dimensões (métricas) 20,587 x 30,587 x 7,169 m
Dimensões (imperial) 67.54 x 100.35 x 23.52 feet
Versão do programa 5.23.02
Partilhar