3358x
000879
2021-06-29

Parametrização de secções laminadas

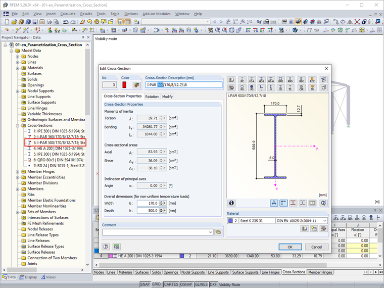
A maioria das secções laminadas disponíveis no RFEM e no RSTAB também podem ter parâmetros definidos pelo utilizador. Para fazer isso, selecione a secção a ser modificada na biblioteca de secções e clique no botão [Entrada paramétrica ...].

Aparece uma caixa de diálogo, onde pode ajustar os parâmetros e confirmar com [OK]. Se pretende alterar os parâmetros posteriormente, pode fazê -lo diretamente na descrição da secção ou na Tabela 1.13.

Outra opção muito eficaz e útil é a utilização de parâmetros da lista de parâmetros, tendo em consideração os parâmetros da secção. Quaisquer variáveis podem ser criadas nesta lista, também através de fórmulas com referência a outras variáveis ou através da leitura dos parâmetros da secção conforme descrito.

Desta forma, pode modelar, por exemplo, um comprimento de secção variável em função da altura da secção dentro da estrutura.


Ligações


;