Exemplo de verificação 1024 | Transferência de esforço de corte das juntas
Exemplo de verificação 1024 | Transferência de esforço de corte das juntas
2024-08-13
042002
  • RFEM 6

Exemplo de verificação 1024 | Transferência de esforço de corte das juntas

Utilizado em
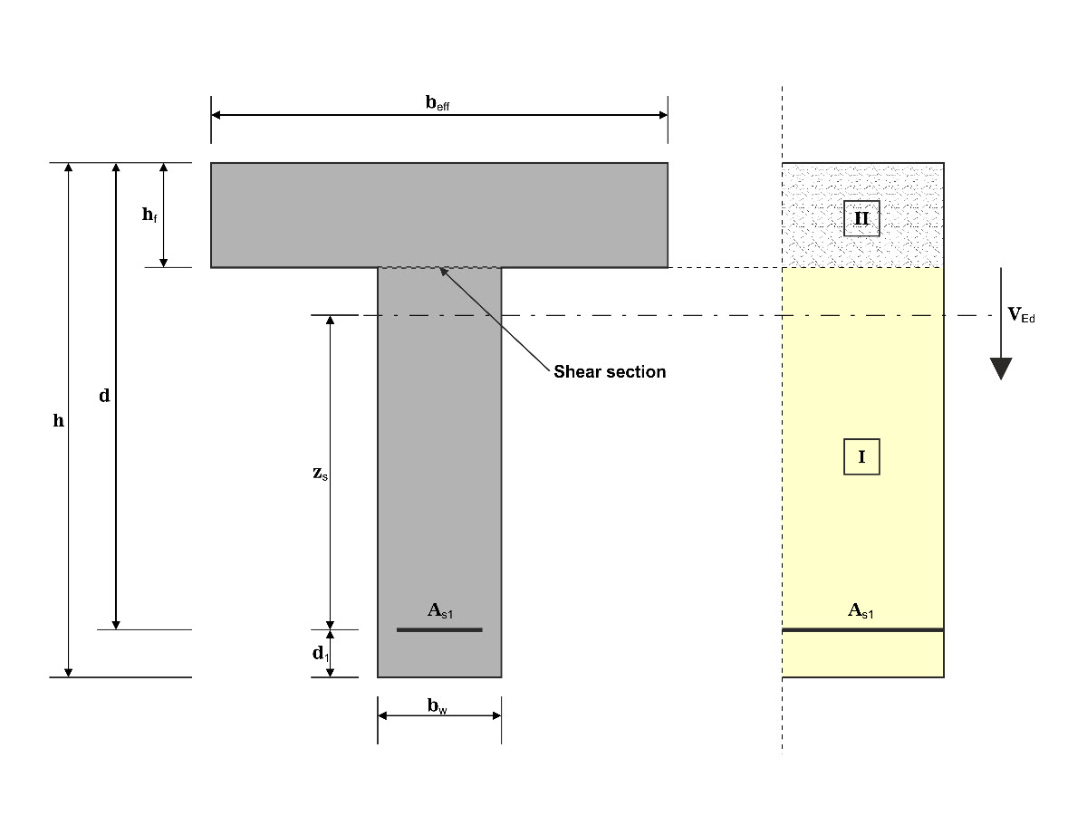
  • VE 1024 | Corte na interface entre as camadas de betão de acordo com a DIN EN 1992-1-1
Partilhar