Interface de apresentação de dados de entrada para o dimensionamento de betão utilizando o Software Dlubal
Interface de apresentação de dados de entrada para o dimensionamento de betão utilizando o Software Dlubal
2024-11-21
054023
  • RFEM 6

Dimensionamento de betão: dados de entrada

Interface de apresentação de dados de entrada para o dimensionamento de betão utilizando o Software Dlubal

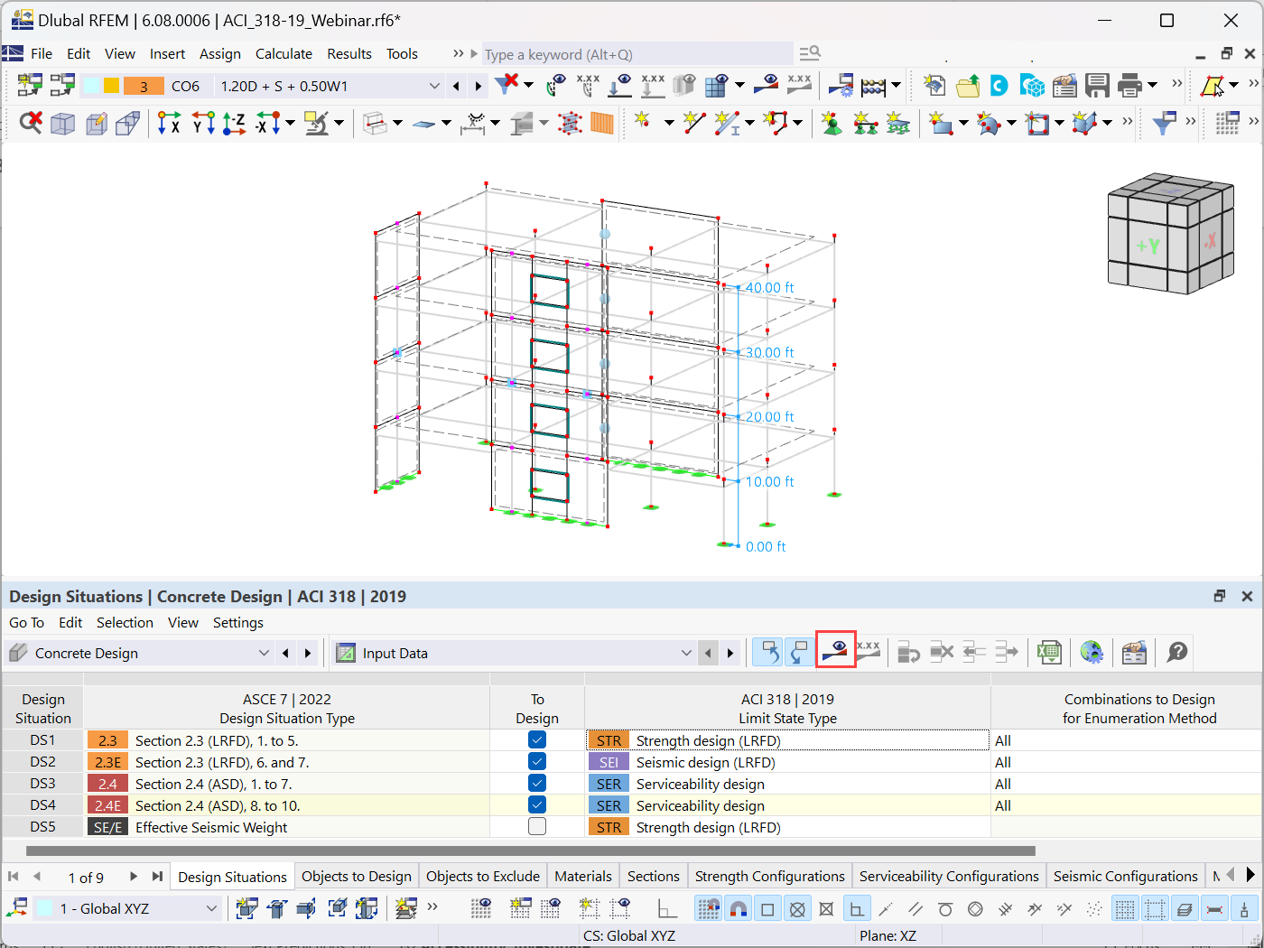
A imagem apresenta uma interface do software Dlubal focada nos dados de entrada para o dimensionamento de betão. O software Dlubal auxilia engenheiros de estruturas na gestão e análise eficaz dos parâmetros do dimensionamento de betão. Esta interface específica fornece aos utilizadores a capacidade de inserir e ajustar dados de projeto cruciais necessários para realizar análises completas de estruturas de betão. Ao utilizar este software, os engenheiros podem enfrentar desafios de projeto de forma eficiente, garantindo a conformidade com as normas relevantes e aprimorando a segurança estrutural geral. As funcionalidades abrangentes apoiam diversas tarefas de engenharia, simplificando os fluxos de trabalho do projeto e otimizando os resultados do dimensionamento.
  • Dimensionamento de betão
  • Engenharia de estruturas
  • Dlubal Software
  • Software de engenharia
  • Ferramentas de engenharia civil
Utilizado em
  • Dimensionamento de paredes de corte de betão no RFEM 6: Guia passo a passo
Partilhar