2889x
001919
2024-11-21

Dimensionamento de paredes de corte de betão no RFEM 6: Guia passo a passo

Este artigo fornece um guia passo a passo para o dimensionamento de paredes de corte no RFEM 6.

As estruturas que dimensionamos estão expostas a várias cargas, inclusive forças de corte como vento, sismos e outros impactos horizontais, que são particularmente desafiadores para edifícios altos. Actuando horizontalmente, estas forças testam a estabilidade e a integridade das estruturas, por isso é fundamental garantir que os edifícios suportem sem movimentos excessivos ou danos. A este respeito, a análise lateral é um aspeto crucial da engenharia civil, focando-se na predição dos deslocamentos laterais, dos esforços internos e do desempenho geral de edifícios sob tais cargas.

Para suportar forças laterais, como vento e sismos, as estruturas dependem de elementos específicos dimensionados para estabilidade, resistência e flexibilidade. Estes componentes atuam em conjunto para manter a integridade do edifício, controlar as oscilações e minimizar os danos. As paredes de corte estão entre os elementos mais importantes para resistir às forças laterais. Neste artigo, iremos demonstrar como dimensionar paredes de corte no RFEM 6 utilizando como exemplo as paredes do edifício de vários andares apresentado na Figura 1.

Dimensionamento de paredes de corte no RFEM 6 no módulo Modelo do edifício

O edifício da Figura 1 tem vários andares com paredes de corte. O RFEM 6 oferece o módulo Modelo do edifício para dimensionar tais edifícios. Esta ferramenta poderosa permite definir o piso do seu edifício por piso e fazer vários ajustes aos pisos, conforme necessário. Também suporta a integração de paredes de corte e elementos de tímpano, permitindo a atribuição de diafragmas a pisos, estando disponíveis vários tipos de diafragmas. Estes elementos são cruciais para a análise lateral, uma vez que criam um sistema coesivo dimensionado para resistir de forma eficaz às forças transversais.

Este texto discute principalmente o dimensionamento de paredes de corte, especificamente as ilustradas na Figura 1. As três paredes vão do rés do chão ao piso superior, com duas delas (parede 1 e parede 2) unidas por elementos de viga-parede. Ativar Células de superfície como objetos especiais no Navegador pode ser muito benéfico em tais cenários. Esta funcionalidade permite que o programa reconheça automaticamente as células de superfície, tornando mais fácil distinguir entre as paredes de corte e os elementos de viga-parede que os ligam, conforme ilustrado na Figura 2.

Pode começar a definir as paredes de corte clicando com o botão direito do rato na pasta "Parede de corte" no navegador para abrir a janela apropriada (ver Figura 3). Comece por selecionar as superfícies ou células de superfície utilizando a entrada no canto superior direito da janela, o que pode ser feito graficamente. Para a primeira parede, selecione as quatro células de superfície localizadas à esquerda das aberturas para definir uma parede de corte contínua que se estende da base à parte superior da estrutura (ver Figura 2). Repetir este processo para a parede de corte no lado direito da abertura (parede 2) e para a parede 3, apresentada acima na Figura 1. Note que a parede 3 é definida apenas utilizando superfícies, como não existem aberturas.

Após a definição das paredes, é possível definir os parâmetros de dimensionamento para cada parede individualmente ou selecionar todas as paredes para aplicar a mesma configuração a todas de uma só vez. Comece por ativar a opção "Gerar cortes de resultados" (ver Figura 3), através da qual pode criar secções horizontais dentro da parede de corte e apresentar resultados, tais como forças internas somadas, num formato de tabela. Uma vez que o seu foco está no dimensionamento de paredes, certifique-se também de que seleciona "Propriedades de dimensionamento", o que permite introduzir os dados de dimensionamento necessários.

Com a opção "Propriedades de dimensionamento" ativada, estão disponíveis separadores adicionais na janela. Nestes separadores, é possível especificar detalhes como o recobrimento de betão para as paredes de corte (ver Figura 4) ou definir a armadura longitudinal (ver Figura 5).

Para a armadura longitudinal, estão disponíveis vários tipos de varões, incluindo os tipos simétricos, assimétricos, uniformemente circundantes, de linha e singulares. Neste exemplo, é escolhido o tipo "uniformemente circundante", com 22 #7 barras colocadas uniformemente em torno da Parede 1 e Parede 2 (ver Figura 5). Para a parede 3, no entanto, são utilizadas 40 #7 barras devido à sua maior largura.

Da mesma forma como para a armadura longitudinal, pode definir a armadura de corte para as paredes de corte. O utilizador controla parâmetros como o tipo de estribo, o material, o tamanho do varão, o diâmetro, o número e o espaçamento (Figura 6). Além disso, é possível ativar as travessas marcando a caixa correspondente para as posicionar transversalmente às barras longitudinais. Se preferir excluir uma travessa numa posição específica, basta clicar na barra longitudinal para desativar esta opção. Também é possível reativar a travessa clicando novamente na barra longitudinal.

O apoio de cálculo pode ser adicionado nos pontos onde a parede de corte se liga às lajes/pisos (ver Figura 7). Estes apoios podem ser configurados na janela associada (ver Figura 8). Neste exemplo, o apoio inicial e o final da parede de corte são do tipo betão, com uma espessura de 25 cm, o que corresponde transversalmente à espessura da estrutura da laje na parede. O apoio de cálculo nos nós internos deve ser do mesmo tipo e espessura, mas certifique-se de que seleciona a opção "Apoio interior" para indicar que neste caso não se trata de um apoio final (ver Figura 8).

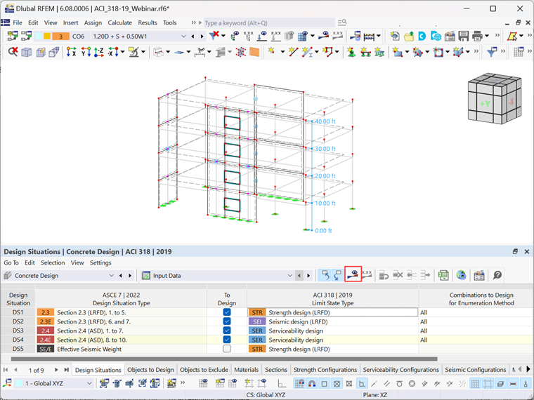
Depois de configurados os parâmetros de dimensionamento, pode selecionar os dados de entrada para o cálculo no módulo Dimensionamento de betão (Figura 9). Este processo envolve a escolha das situações de dimensionamento a serem consideradas, a especificação do tipo de estado limite para cada uma, a definição dos objetos a serem dimensionados etc.

Os resultados, incluindo detalhes da armadura e as relações de dimensionamento para as paredes de corte, são apresentados em tabelas e gráficos, conforme apresentado na Figura 10. Isto permite-lhe, por exemplo, sobrepor graficamente a Armadura existente e a Armadura necessária para verificar se a armadura existente excede a quantidade necessária. Se não for este o caso, a armadura Não coberta também pode ser visualizada para uma avaliação adicional.

Para os relações de verificação, além da representação em tabelas e gráficos, está disponível informação detalhada para cada verificação de dimensionamento através do botão correspondente, oferecendo uma vista detalhada dos cálculos de dimensionamento (Figura 11).


Autor

A Eng.ª Kirova é responsável pela criação de artigos técnicos e presta apoio técnico aos clientes da Dlubal.

Ligações


;