A imagem mostra o cálculo da armadura necessária no betão com base em detalhes de verificação.
A imagem mostra o cálculo da armadura necessária no betão com base em detalhes de verificação.
2025-02-28
055605
  • Dimensionamento de betão para o RFEM 6
  • Dimensionamento de betão para o RSTAB 9
  • Estruturas de betão
    • Cálculos estruturais e dimensionamento

Dimensionamento de betão | Utilização | Determinação da armadura

A imagem mostra o cálculo da armadura necessária no betão com base em detalhes de verificação.

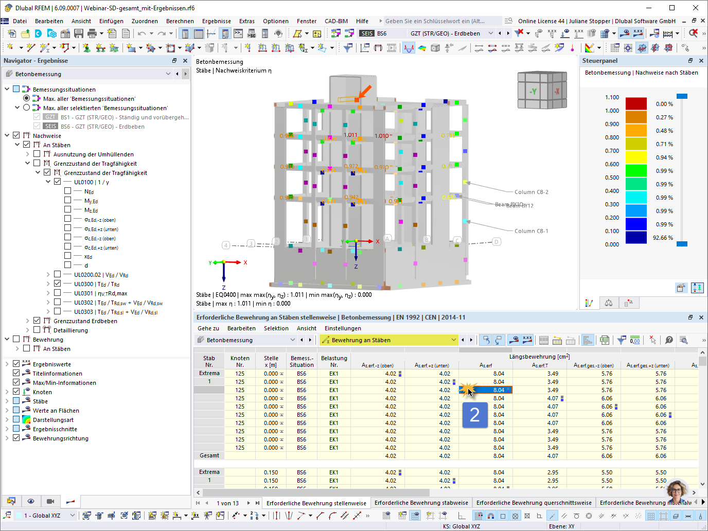
A imagem mostra a representação de um processo de dimensionamento de betão, visualizando o fluxo técnico para determinar a armadura necessária. São apresentados detalhes de verificação que explicam o passo para abrir as vistas detalhadas. As FAQ 005669 fornecem uma informação complementar para a compreensão da determinação da armadura.
  • Dimensionamento de betão
  • Aproveitamento
  • Determinação da armadura
  • Detalhes de verificação
  • Expressão máxima
Utilizado em
  • Detalhes para cálculo de armadura
Partilhar