304x
005669
2025-02-28

Detalhes para cálculo de armadura

Como é que posso compreender a determinação das armaduras necessárias?


Resposta:

No âmbito do dimensionamento de betão, pode visualizar os detalhes tanto das verificações direcionadas quanto da determinação da armadura.

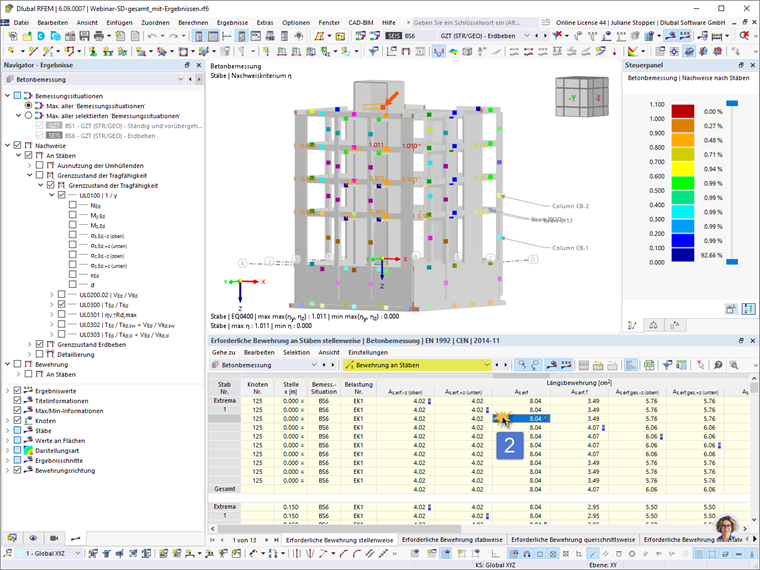
1 - Detalhes para verificações

Para isso, selecione no quadro de tabelas para o dimensionamento de betão o resultado Utilização em barras, superfícies, etc. Para cada resultado de verificação, é possível abrir a janela com os detalhes da verificação correspondente, dando duplo clique no resultado de utilização respectivo na tabela.

2 - Detalhes para a determinação da armadura

Para isso, selecione no quadro de tabelas para o dimensionamento de betão o resultado Armadura em barras, superfícies, etc. Para cada resultado de armadura, é possível abrir novamente a janela com os detalhes para a determinação da armadura, dando duplo clique no valor respectivo na tabela.

Sugestão

Os detalhes de verificação estão disponíveis, entre outros, para a exportação para o Excel e impressão. Informações adicionais podem ser encontradas no manual de dimensionamento de betão no capítulo Detalhes da Verificação.


Autor

Juliane trabalha em Product Engineering com foco em geotecnia e também aplica o seu conhecimento no Customer Support. Ela combina desenvolvimento com abordagens de solução orientadas para a prática.



;