Конструктивная система и нагружение (размеры в мм, сила в кН)
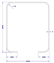
Außenabmessungen des Querschnitts in mm
Номинальные значения ширины в мм
Wirksame Randsteife
Определение жесткости пружины
Wirksamer Steifenquerschnitt
Ermittlung der Federsteifigkeit
Basisangaben
Параметры расчета
Таблица 1.7. Условные ширины | EN 1993-1-3
Таблица 1.8 Элементы жесткости
Таблица 1.9 Панели
Таблица 2.1 Нагружения
Таблица 3.1 Внутренние силы
Эффективные характеристики сечения
Basisangaben
Parameter des nationalen Anhangs
Подробности, вкладка «Холодногнутые профили»
Details, Register Stabilität
Рисунок 20 - Результаты
Конструктивная система и нагружение (размеры в мм, сила в кН)
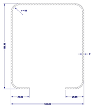
Außenabmessungen des Querschnitts in mm
Номинальные значения ширины в мм
Wirksame Randsteife
Определение жесткости пружины
Wirksamer Steifenquerschnitt
Ermittlung der Federsteifigkeit
Basisangaben
Параметры расчета
Таблица 1.7. Условные ширины | EN 1993-1-3
Таблица 1.8 Элементы жесткости
Таблица 1.9 Панели
Таблица 2.1 Нагружения
Таблица 3.1 Внутренние силы
Эффективные характеристики сечения
Basisangaben
Parameter des nationalen Anhangs
Подробности, вкладка «Холодногнутые профили»
Details, Register Stabilität
Рисунок 20 - Результаты
2024-05-30
008649
  • SHAPE-THIN 9
  • RFEM 5
  • RF-STEEL Cold-Formed Sections 5
    • RSTAB 8
    • STEEL холодногнутые профили 8
    • Стальные конструкции
    • Расчёт и проектирование конструкций
    • Расчёт напряжений
    • Eurocode 3

Конструктивная система и нагружение (размеры в мм, сила в кН)

Используется в
  • Расчет тонкостенного холодногнутого С-образного профиля по норме EN 1993-1-3
Поделиться
2024-05-30
008650
  • SHAPE-THIN 9
  • RFEM 5
  • RF-STEEL Cold-Formed Sections 5
    • RSTAB 8
    • STEEL холодногнутые профили 8
    • Стальные конструкции
    • Расчёт и проектирование конструкций
    • Расчёт напряжений
    • Eurocode 3
Außenabmessungen des Querschnitts in mm
Используется в
  • Расчет тонкостенного холодногнутого С-образного профиля по норме EN 1993-1-3
Поделиться
2024-05-30
008651
  • SHAPE-THIN 9
  • RFEM 5
  • RF-STEEL Cold-Formed Sections 5
    • RSTAB 8
    • STEEL холодногнутые профили 8
    • Стальные конструкции
    • Расчёт и проектирование конструкций
    • Расчёт напряжений
    • Eurocode 3
Номинальные значения ширины в мм
Используется в
  • Расчет тонкостенного холодногнутого С-образного профиля по норме EN 1993-1-3
Поделиться
2024-05-30
008652
  • SHAPE-THIN 9
  • RFEM 5
  • RF-STEEL Cold-Formed Sections 5
    • RSTAB 8
    • STEEL холодногнутые профили 8
    • Стальные конструкции
    • Расчёт и проектирование конструкций
    • Расчёт напряжений
    • Eurocode 3
Эффективные кромочные элементы жесткости
Wirksame Randsteife

Используется в
  • Расчет тонкостенного холодногнутого С-образного профиля по норме EN 1993-1-3
Поделиться
2024-05-30
008653
  • SHAPE-THIN 9
  • RFEM 5
  • RF-STEEL Cold-Formed Sections 5
    • RSTAB 8
    • STEEL холодногнутые профили 8
    • Стальные конструкции
    • Расчёт и проектирование конструкций
    • Расчёт напряжений
    • Eurocode 3
Определение жесткости пружины
Используется в
  • Расчет тонкостенного холодногнутого С-образного профиля по норме EN 1993-1-3
Поделиться
2024-05-30
008654
  • SHAPE-THIN 9
  • RFEM 5
  • RF-STEEL Cold-Formed Sections 5
    • RSTAB 8
    • STEEL холодногнутые профили 8
    • Стальные конструкции
    • Расчёт и проектирование конструкций
    • Расчёт напряжений
    • Eurocode 3
Wirksamer Steifenquerschnitt
Используется в
  • Расчет тонкостенного холодногнутого С-образного профиля по норме EN 1993-1-3
Поделиться
2024-05-30
008655
  • SHAPE-THIN 9
  • RFEM 5
  • RF-STEEL Cold-Formed Sections 5
    • RSTAB 8
    • STEEL холодногнутые профили 8
    • Стальные конструкции
    • Расчёт и проектирование конструкций
    • Расчёт напряжений
    • Eurocode 3
Ermittlung der Federsteifigkeit
Используется в
  • Расчет тонкостенного холодногнутого С-образного профиля по норме EN 1993-1-3
Поделиться
2024-05-30
008656
  • SHAPE-THIN 9
  • RFEM 5
  • RF-STEEL Cold-Formed Sections 5
    • RSTAB 8
    • STEEL холодногнутые профили 8
    • Стальные конструкции
    • Расчёт и проектирование конструкций
    • Расчёт напряжений
    • Eurocode 3
Основные данные
Basisangaben

Используется в
  • Расчет тонкостенного холодногнутого С-образного профиля по норме EN 1993-1-3
Поделиться
2024-05-30
008657
  • SHAPE-THIN 9
  • RFEM 5
  • RF-STEEL Cold-Formed Sections 5
    • RSTAB 8
    • STEEL холодногнутые профили 8
    • Стальные конструкции
    • Расчёт и проектирование конструкций
    • Расчёт напряжений
    • Eurocode 3
Параметры расчета
Используется в
  • Расчет тонкостенного холодногнутого С-образного профиля по норме EN 1993-1-3
Поделиться
2024-05-30
013155
  • RFEM 5
  • RSTAB 8
Таблица 1.7. Условные ширины | EN 1993-1-3
Используется в
  • Расчет тонкостенного холодногнутого С-образного профиля по норме EN 1993-1-3
Поделиться
2024-05-30
008658
  • SHAPE-THIN 9
  • RFEM 5
  • RF-STEEL Cold-Formed Sections 5
    • RSTAB 8
    • STEEL холодногнутые профили 8
    • Стальные конструкции
    • Расчёт и проектирование конструкций
    • Расчёт напряжений
    • Eurocode 3
Таблица 1.8 Элементы жесткости
Используется в
  • Расчет тонкостенного холодногнутого С-образного профиля по норме EN 1993-1-3
3D Модель
Подробнее о 3D модели
  • Швеллер C
Поделиться
2024-05-30
008659
  • SHAPE-THIN 9
  • RFEM 5
  • RF-STEEL Cold-Formed Sections 5
    • RSTAB 8
    • STEEL холодногнутые профили 8
    • Стальные конструкции
    • Расчёт и проектирование конструкций
    • Расчёт напряжений
    • Eurocode 3
Таблица 1.9 Панели
Используется в
  • Расчет тонкостенного холодногнутого С-образного профиля по норме EN 1993-1-3
3D Модель
Подробнее о 3D модели
  • Швеллер C
Поделиться
2024-05-30
008660
  • SHAPE-THIN 9
  • RFEM 5
  • RF-STEEL Cold-Formed Sections 5
    • RSTAB 8
    • STEEL холодногнутые профили 8
    • Стальные конструкции
    • Расчёт и проектирование конструкций
    • Расчёт напряжений
    • Eurocode 3
Таблица 2.1 Нагружения
Используется в
  • Расчет тонкостенного холодногнутого С-образного профиля по норме EN 1993-1-3
3D Модель
Подробнее о 3D модели
  • Швеллер C
Поделиться
2024-05-30
008661
  • SHAPE-THIN 9
  • RFEM 5
  • RF-STEEL Cold-Formed Sections 5
    • RSTAB 8
    • STEEL холодногнутые профили 8
    • Стальные конструкции
    • Расчёт и проектирование конструкций
    • Расчёт напряжений
    • Eurocode 3
Таблица 3.1 Внутренние силы
Используется в
  • Расчет тонкостенного холодногнутого С-образного профиля по норме EN 1993-1-3
3D Модель
Подробнее о 3D модели
  • Швеллер C
Поделиться
2024-05-30
008662
  • SHAPE-THIN 9
  • RFEM 5
  • RF-STEEL Cold-Formed Sections 5
    • RSTAB 8
    • STEEL холодногнутые профили 8
    • Стальные конструкции
    • Расчёт и проектирование конструкций
    • Расчёт напряжений
    • Eurocode 3
Эффективные характеристики сечения
Используется в
  • Расчет тонкостенного холодногнутого С-образного профиля по норме EN 1993-1-3
3D Модель
Подробнее о 3D модели
  • Швеллер C
Поделиться
2024-05-30
008663
  • SHAPE-THIN 9
  • RFEM 5
  • RF-STEEL Cold-Formed Sections 5
    • RSTAB 8
    • STEEL холодногнутые профили 8
    • Стальные конструкции
    • Расчёт и проектирование конструкций
    • Расчёт напряжений
    • Eurocode 3
Основные данные
Basisangaben

Используется в
  • Расчет тонкостенного холодногнутого С-образного профиля по норме EN 1993-1-3
Поделиться
2024-05-30
008664
  • SHAPE-THIN 9
  • RFEM 5
  • RF-STEEL Cold-Formed Sections 5
    • RSTAB 8
    • STEEL холодногнутые профили 8
    • Стальные конструкции
    • Расчёт и проектирование конструкций
    • Расчёт напряжений
    • Eurocode 3
Parameter des nationalen Anhangs
Используется в
  • Расчет тонкостенного холодногнутого С-образного профиля по норме EN 1993-1-3
Поделиться
2024-05-30
008665
  • SHAPE-THIN 9
  • RFEM 5
  • RF-STEEL Cold-Formed Sections 5
    • RSTAB 8
    • STEEL холодногнутые профили 8
    • Стальные конструкции
    • Расчёт и проектирование конструкций
    • Расчёт напряжений
    • Eurocode 3
Подробности, вкладка «Холодногнутые профили»
Используется в
  • Расчет тонкостенного холодногнутого С-образного профиля по норме EN 1993-1-3
Поделиться
2024-05-30
008666
  • SHAPE-THIN 9
  • RFEM 5
  • RF-STEEL Cold-Formed Sections 5
    • RSTAB 8
    • STEEL холодногнутые профили 8
    • Стальные конструкции
    • Расчёт и проектирование конструкций
    • Расчёт напряжений
    • Eurocode 3
Подробности, вкладка «Устойчивость»
Details, Register Stabilität

Используется в
  • Расчет тонкостенного холодногнутого С-образного профиля по норме EN 1993-1-3
Поделиться
2024-05-30
008667
  • SHAPE-THIN 9
  • RFEM 5
  • RF-STEEL Cold-Formed Sections 5
    • RSTAB 8
    • STEEL холодногнутые профили 8
    • Стальные конструкции
    • Расчёт и проектирование конструкций
    • Расчёт напряжений
    • Eurocode 3
Рисунок 20 - Результаты
Используется в
  • Расчет тонкостенного холодногнутого С-образного профиля по норме EN 1993-1-3
Поделиться