16635x
001629
2020-03-02

Расчет тонкостенного холодногнутого С-образного профиля по норме EN 1993-1-3

С помощью модульного расширения RF-/STEEL Cold-Formed Sections можно выполнять расчет холодногнутых профилей на предельное состояние по несущей способности согласно норме EN 1993-1-3 и EN 1993-1-5. Тем не менее, кроме холодногнутых профилей из базы данных сечений в нем можно рассчитывать также общие сечения из программы SHAPE-THIN.

В следующем примере из сборника Stahlbau-Kalender 2009 [3]] будет выполнен расчет однопролетной балки из тонкостенного холодногнутого С-образного профиля нормальная силовая нагрузка. Это С-образное сечение будет сначала смоделировано в программе SHAPE-THIN, а затем рассчитано в модульном расширении RF-/STEEL Cold-Formed Sections.

Система

Конструктивная система и нагружение показаны на рисунке 01.

Материал

  • S 355 EN 10025-2
  • E = 210 000 Н/мм²
  • G = 80 769 Н/мм²
  • ν = 0,3
  • fy = fyb = 355 Н/мм²
  • γM0 = γM1 = 1,00 (расчет по CEN)

Внешние размеры

Внешние размеры сечения показаны на рисунке 02.

  • H = 102 мм (высота стенки)
  • b = 120 мм (ширина полки)
  • c = 26 мм (длина кромки)
  • t = 2 мм (толщина стального сердечника)

Номинальные значения ширины

Номинальные значения ширины определяются по {%ref#Refer [1]]], 5.1. Номинальные значения ширины показаны на рисунке 03.


Проверка соотношений ширины к толщине

Отношение ширины к толщине проверяются по {%><#Refer [1]]], 5.2 (1).

  • b/t = 120/2 = 60 ≤ 60
  • c/t = 26/2 = 13 ≤ 50
  • H/t = 102/2 = 51 ≤ 500

Соотношения ширины с толщиной соблюдены.

Проверка размеров элементов жесткости

Размеры элемента жесткости проверяются по [1], 5.2 (2).
0,2 ≤ c/b = 26/120 = 0,22 ≤ 0,6

В качестве элементов жесткости можно применить кромки.

Проверка величины угла между элементом жесткости и плоскостным элементом

Угол между элементом жёсткости и плоскостным элементом составляет 90° в пределах 45° и 135°, указанных в {%|#Refer [1]]], 5.5.3.2(1).

Расчет полезной площади сечения

У стальных профилей, не обладающих двойной симметрией, находящихся под действием сжатия и подверженных локальному выпучиванию, положение центра тяжести эффективного сечения смещено по сравнению c сечением брутто. Внешняя сжимающая сила, действующая на сечение брутто центрально, действует на эффективное сечение внецентренно, благодаря чему возникает дополнительный изгибающий момент. Согласно [1] необходимо учитывать дополнительные моменты, возникающие в результате смещения центра тяжести. Поэтому кроме эффективного сечения при простом нагружении сжатием необходимо рассчитать эффективное сечение при простом нагружении изгибом.

Расчет эффективного сечения при простом нагружении сжатием

Коэффициент определяется согласно [2], 4.4 (2) и равен:

Стенка

Коэффициент потери устойчивости рассчитывается согласно [2], таблица 4.1:

Гибкость при продольном изгибе равна:

Коэффициент гибкости выше, чем предельное значение 0,673 согласно {%://#Refer [2]]], 4.4 (2). Поэтому требуется его уменьшение.

Понижающий коэффициент определяется согласно [2], 4.4 (2) и равен:

Согласно [2], таблица 4.1, полезная высота стенки определяется по [2], таблица 4.1:

Полка с кромочным элементом жесткости

На первом этапе определяется первоначальное эффективное сечение элемента жесткости при условии, что кромочный элемент жесткости работает как неподвижная опора и при этом σcom, Ed = fybM0 .

Полка

Коэффициент потери устойчивости рассчитывается согласно [2], таблица 4.1:

Гибкость при продольном изгибе равна:

Коэффициент гибкости выше, чем предельное значение 0,673 согласно {%://#Refer [2]]], 4.4 (2). Поэтому требуется его уменьшение.

Понижающий коэффициент определяется согласно [2], 4.4 (2) и равен:

Полезная ширина полки согласно [2], таблица 4.1, равна:

крайний элемент жесткости

Коэффициент потери устойчивости рассчитывается согласно [1], 5.5.3.2 (5)

Гибкость при продольном изгибе равна:

Коэффициент гибкости меньше, чем предельное значение 0,748 согласно {%://#Refer [1]]], 4.4 (2). Таким образом, уменьшения не требуется, то есть: ρ = 1,0.

Первое приближение полезной ширины вытекает из {%ref#Refer [1]]], уравнение 5.13a до:

На втором этапе определяется понижающий коэффициент для потери устойчивости геометрии сечения с применением первоначального полезного сечения и с учетом действия упругой непрерывной пружинной опоры.

Полезные характеристики сечения кромочных элементов жесткости рассчитываются в программе SHAPE-THIN. Кромочные элементы жесткости показаны на рисунке 04.

  • As = 122,58 мм2
  • Is = 7 130 мм4
  • zs = 13,88 мм

Жесткость пружины K кромок жесткости определяется на основе статического расчета целого сечения. Для этого к сечению будет приложена единичная нагрузка u, действующая в центре тяжести полезного элемента жесткости, а затем рассчитана соответствующая деформация δ элемента жесткости. У прямоугольного сечения w/h = t/t = 2/2 мм деформация равна δ = 3,02 мм (Рисунок 05).

Жесткость пружины K на единицу длины можно рассчитать по уравнению 5.9 может быть рассчитано следующим образом:

Критическое напряжение кромочного элемента жесткости определяется по {%ref#Refer [1]]], уравнение 5.15 далее:

Коэффициент гибкости рассчитывается по {%ref#Refer [1]]] , уравнение 5.12d до:

Согласно [1], 5.5.3.1 (7), понижающий коэффициент для нестабильности формы рассчитывается следующим образом:

Уменьшенная эффективная площадь сечения кромочного элемента жесткости получена с учетом потери устойчивости при изгибе согласно {%ref#Refer [1]]], уравнение 5.17 до:

Полезные характеристики сечения при простом нагружении сжатием

Сечение можно оптимизировать с помощью итеративных вычислений. После двух итераций мы получим следующие полезные значения для сечения:

  • Площадь Aeff = 4,62 см²
  • Расстояние до центра тяжести от стенки zs, eff = 42,18 мм
  • Смещение центра тяжести eN,y = zs - * zs,eff = 8,78 мм

Расчет эффективного сечения при простом нагружении изгибом

Стенка

Стенка находится под действием растяжения и, таким образом, полностью эффективна.

Полка с кромочным элементом жесткости

На первом этапе определяется первоначальное эффективное сечение элемента жесткости при условии, что кромочный элемент жесткости работает как неподвижная опора и при этом σcom, Ed = fybM0 .

Полка

Коэффициент потери устойчивости рассчитывается согласно [2], таблица 4.1:

Гибкость при продольном изгибе равна:

Коэффициент гибкости меньше, чем предельное значение 0,856 согласно [2], 4.4 (2). Таким образом, уменьшения не требуется.

Полезные значения ширины согласно [2], таблица 4.1, равны:

крайний элемент жесткости

Коэффициент потери устойчивости рассчитывается согласно [1], 5.5.3.2 (5)

Гибкость при продольном изгибе равна:

Коэффициент гибкости меньше, чем предельное значение 0,748 согласно {%://#Refer [1]]], 4.4 (2). Таким образом, уменьшения не требуется, то есть: ρ = 1,0.

Первое приближение полезной ширины вытекает из {%ref#Refer [1]]], уравнение 5.13a до:

На втором этапе определяется понижающий коэффициент для потери устойчивости геометрии сечения с применением первоначального полезного сечения и с учетом действия упругой непрерывной пружинной опоры.

Полезные характеристики сечения кромочных элементов жесткости рассчитываются в программе SHAPE-THIN. Кромочные элементы жесткости показаны на рисунке 06.

  • As = 97,92 мм2
  • Is = 6 271 мм4
  • zs = 8,59 мм

Жесткость пружины K кромок жесткости определяется на основе статического расчета целого сечения. Для этого к сечению будет приложена единичная нагрузка u, действующая в центре тяжести полезного элемента жесткости, а затем рассчитана соответствующая деформация δ элемента жесткости. У прямоугольного сечения w/h = t/t = 2/2 мм деформация равна δ = 3,4 мм (Рисунок 07).

Жесткость пружины K на единицу длины можно рассчитать по уравнению 5.9 может быть рассчитано следующим образом:

Критическое напряжение кромочного элемента жесткости определяется по {%ref#Refer [1]]], уравнение 5.15 далее:

Коэффициент гибкости рассчитывается по {%ref#Refer [1]]] , уравнение 5.12d до:

Согласно [1], 5.5.3.1 (7), понижающий коэффициент для нестабильности формы рассчитывается следующим образом:

Уменьшенная эффективная площадь сечения кромочного элемента жесткости получена с учетом потери устойчивости при изгибе согласно {%ref#Refer [1]]], уравнение 5.17 до:

Полезные характеристики сечения при простом нагружении изгибом

Все части сечения полностью эффективны, поэтому не требуются итерационные вычисления.

  • Площадь Aeff = 6,86 см²
  • Момент сопротивления сечения Weff, y = 17,01 см³

Расчет сечения при комбинированном нагружении сжатием и изгибом

Сопротивление чистому сжатию рассчитывается по [1], 6.1.3 (1) следующим образом:

Сопротивление чистому изгибу рассчитывается по {%ref#Refer [1]]], 6.1.4.1 (1) следующим образом:

Дополнительный момент, возникающий в результате смещения центра тяжести, определяется по {%ref#Refer [1]]], 6.1.9 (2) следующим образом:

Результаты расчета комбинированной нагрузки от сжатия и изгиба по {%ref#Refer [1]]], 6.1.9 (1) равны:


Расчет выполнен.

Моделирование холодногнутого С-образного профиля в программе SHAPE-THIN

Холодногнутые профили общего типа можно смоделировать в программе SHAPE-THIN. В общих данных нужно активировать флажок «части c/t и полезные характеристики сечения» (Рисунок 08).

Затем во вкладке «части c/t и эффективное сечение» (рисунок 09) диалогового окна «параметры расчета» выберите параметр «EN 1993-1-3 (холодногнутый профиль)».

Эффективное сечение должно быть рассчитано по отдельности при простом нагружении сжатием и простом нагружении изгибом. Поэтому нужно установить флажок на опцию «пренебречь дополнительными изгибающими моментами вследствие смещения центра тяжести эффективного сечения».

В данном примере был выполнен расчет в две итерации, поэтому в SHAPE-THIN зададим также две итерации.

Дополнительно, можно проверить также геометрические условия применимости нормы, указанные в {%://#Refer [2]]], 5.2. Только не забудьте установить все соответствующие флажки.

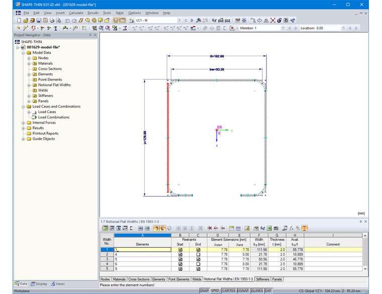
Сначала необходимо задать элементы сечения. Номинальные значения ширины, как правило, генерируются автоматически по геометрическим условиям, но могут также быть заданы пользователем в таблице «1.7 Номинальные значения ширины по норме EN 1993-1-3» (рисунок 10) или в соответствующем диалоговом окне.

Элементы жесткости затем можно задать в таблице «1.8 Элементы жесткости» или в соответствующем диалоговом окне (рисунок 11).

Кроме того, нужно указать теряющую устойчивость панель в таблице «1.9 Панели» (рисунок 12) или в соответствующем диалоговом окне. Однако, для этого нужно сначала выбрать требуемые элементы панели. Элементы жесткости, расположенные в усиленной панели, определяются автоматически.

Затем в таблице «2.1 Нагружения» зададим нагружение для сжимающей силы и для изгиба (рисунок 13).

После этого зададим внутренние силы в таблице «3.1 Внутренние силы» или в соответствующем диалоговом окне (рисунок 14).

Результаты расчета эффективного сечения можно отобразить с помощью кнопки «Полезные значения ширины» (рисунок 15).

Расчет холодногнутого С-образного профиля в RF-/STEEL Cold-Formed Sections

Холодногнутые профили можно рассчитать по {%://#Refer [1]]] и [2] с помощью расширения модуля RF-/STEEL Cold-Formed Sections.

В общих данных необходимо сначала выбрать стержень и нагружение, которые должны быть рассчитаны. В качестве национального приложения выбрано «CEN» (рисунок 16).

Вы можете просмотреть и, при необходимости, отрегулировать параметры национального приложения во вкладке «Холодногнутые профили (EN 1993-1-3)» одноименного окна (рисунок 17).

В подробных настройках нужно активировать расчет холодногнутых профилей во вкладке «Холодногнутые профили» (рисунок 18).

Выполним только расчет сечения. Для этого необходимо деактивировать флажок «Выполнить расчет на устойчивость» во вкладке «Устойчивость» в подробных настройках (рисунок 19).

После выполнения вычислений в соответствующих выходных таблицах, отобразятся, кроме прочего, полезные характеристики сечения при нагружении осевой силой N, изгибающим моментом My, изгибающим моментом Mz, внутренние силы и общий расчет (рисунок 20).


Автор

Соня работает в Product Engineering и дополнительно поддерживает Customer Support. Ее основное внимание сосредоточено на RSECTION, а также на стальных и алюминиевых конструкциях, где она целенаправленно применяет свои знания.

Ссылки
Ссылки
Скачивания


;