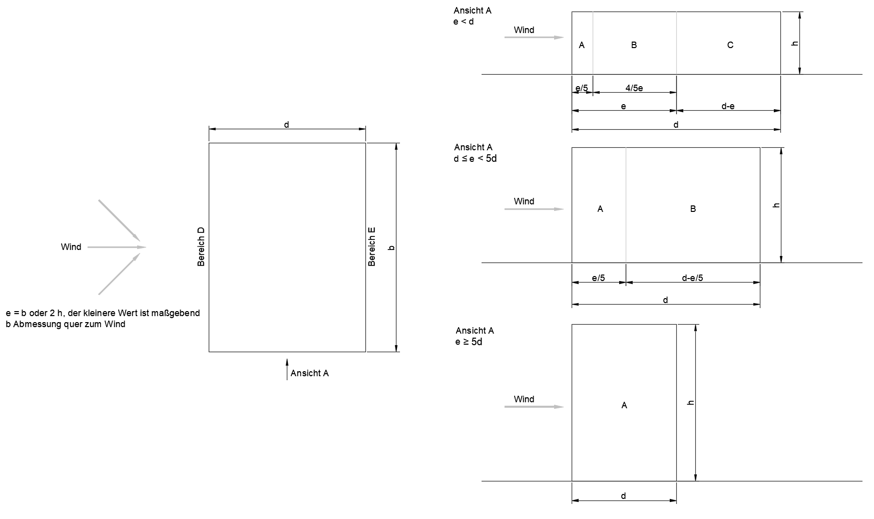
Классификация поверхностей стен для вертикальных стен
Классификация поверхностей стен для вертикальных стен
2024-05-30
009020
  • RFEM 5
  • RSTAB 8
  • RX-TIMBER Glued-Laminated Beam 2
    • RX-TIMBER Roof 2
    • RX-TIMBER Continuous Beam 2
    • RX-TIMBER Purlin 2
    • RX-TIMBER Frame 2
    • RX-TIMBER Column 2
    • RX-TIMBER Brace 2
    • Бетонные конструкции
    • Стальные конструкции
    • Деревянные конструкции
    • Здания
    • Расчёт и проектирование конструкций
    • Eurocode 0
    • Eurocode 1

Классификация поверхностей стен для вертикальных стен

Используется в
  • Ветровая нагрузка на односткатные и двускатные крыши в Германии
Поделиться