Ветер - это, естественно, переменное воздействие во времени на конструкцию, расположенную на открытом воздухе. Для того чтобы совместить эту нагрузку с другими воздействиями (полезная нагрузка, снег и т.д.) в определенных расчетных ситуациях в соответствии со стандартом DIN EN 1990, ветровое воздействие классифицируется как переменное, свободное воздействие. Во время строительства необходимо учитывать изменения аэродинамических коэффициентов из-за других воздействий (снег, движение транспорта или лед), а также из-за изменений конструкции. Однако окна и двери предполагаются закрытыми в случае ветровых нагрузок. Неизбежно открывающиеся окна и двери нужно рассматривать как случайные расчетные ситуации.
Динамическую ветровую нагрузку необходимо отобразить в упрощенном виде как эквивалентное давление ветра или силу ветра максимальному действию турбулентного ветра. Ветер действует на внешние поверхности в случае закрытых конструкций и дополнительно на внутренние поверхности в случае проницаемых или открытых конструкций. Воздействие необходимо применять перпендикулярно рассматриваемым поверхностям. В случае больших поверхностей при циркулирующем ветре, необходимо дополнительно учитывать составляющую трения, параллельную площади поверхности.
В ветровом стандарте DIN EN 1991-1-4 с национальным приложением Германии ветровая нагрузка указана в качестве нормативной величины. Это значение определяется базовой скоростью ветра со значением вероятности превышения в год 2% и средним периодом повторяемости 50 лет.
Результирующая ветровая нагрузка в случае достаточно жестких зданий, не подверженных колебаниям, может быть описана как статическая эквивалентная сила, которая зависит от пиковой скорости. Напротив, для зданий, чувствительных к вибрациям, пиковая скорость дополнительно изменяется с помощью конструктивного коэффициента для определения статической эквивалентной нагрузки [1] , [2].
Проще говоря, конструкции не считаются восприимчивыми к колебаниям, если деформация под действием ветровой нагрузки, вызванной порывистым ветровым резонансом, не увеличивается более чем на 10%. Этот критерий применяется к типовым зданиям высотой до 25 м, которые не подвержены вибрациям. Во всех остальных случаях может быть использован следующий критерий классификации [3] :
где
xS = - смещение напора в м от собственного веса, приложенного по направлению ветра
h = высота здания в м; href = 25 м
b = ширина здания перпендикулярно направлению ветра в м
δ = логарифмический декремент затухания по DIN EN 1991-1-4, приложение F
| Тип конструкции | Демпфирование здания δмин . |
|---|---|
| Железобетонная конструкция | 0,1 |
| Стальная конструкция | 0,05 |
| Смешанная конструкция (сталь и бетон) | 0,08 |
Пиковое скоростное давление, зависящее от высоты
Ветровая нагрузка на здание, не подверженное колебаниям, зависит от максимальной скорости давления qp. Это значение определяется скоростью порыва ветра длительностью от двух до четырех секунд с учетом условий окружающей местности. Для определения нагрузки в конкретном месте Национальное приложение Германии содержит карту ветровой зоны с соответствующими основными значениями основных скоростей ветра vb, 0, основными значениями давления основных скоростей ветра qb, 0 и спецификацией различные типы местности (категории I - IV) [1] , [2] , [3].
С увеличением ветровой зоны увеличивается и базовое значение основной скорости ветра.
Категория местности увеличивается по мере увеличения ее неровности.
| Топография | Описание работы |
|---|---|
| Категория местности I | Открытое море; озера с открытой территорией по ветру не менее 5 км; ровная, ровная, без препятствий |
| Категория местности II | Участок с живой изгородью, индивидуальными фермами, домами или деревьями (например, сельскохозяйственный участок) |
| Категория местности III | Пригороды, промышленные или коммерческие районы; леса |
| Категория местности IV | Городские территории, где не менее 15% площади занято зданиями, средняя высота которых превышает 15 м |
| Берег смешанного профиля | Переходная зона между I и II категорией местности |
| Смешанный профиль внутри страны | Переходная зона между категориями местности II и III |
Пиковое скоростное давление vb, 0 может быть определено путем определения основного значения основной скорости ветра qp и типа местности.
| Пиковое скоростное давление qp в кН/м² [3] | Подход 1 Таблица NA-B.1 | Метод 2 NA.B.3.3 | Подход 3 NA.B.3.2 | |||||||
|---|---|---|---|---|---|---|---|---|---|---|
| Влияние уровня моря NNмод | Менее 800 м над уровнем моря | 1,0 | ||||||||
| На высоте от 800 м до 1100 м над уровнем моря | 0,2 + Hс/1000 | |||||||||
| Более 1100 м над уровнем моря | Требуются особые соображения | |||||||||
| Ветровая зона | 1 | 2 | 3 | 4 | 1 | 2 | 3 | 4 | ||
| основная базовая скорость ветра vb,0 в м/с | 22.5 | 25.0 | 27.5 | 30.0 | - | - | - | - | ||
| Коэффициент направленности cdir | 1,0 | - | - | - | - | |||||
| коэффициент сезонности cseason | 1,0 | - | - | - | - | |||||
| базовый скоростной напор qb в кН/м² | 0,32 | 0,39 | 0,47 | 0,56 | - | - | - | - | ||
| Категория местности | Высота конструкции | qp в кН/м² | ||||||||
| qp (z) в кН/м² | ||||||||||
| Категория местности I | До 2 м | 1,90 ⋅ qb ⋅ NNмод - | - | - | - | - | ||||
| От 2 м до 300 м | 2,60 ⋅ qb ⋅ (z/10)0,19 ⋅ NNпо модулю | |||||||||
| Категория местности II | До 4 м | 1,70 ⋅ qb ⋅ NN помодулю - | - | - | - | - | ||||
| От 4 м до 300 м | 2,10 ⋅ qb ⋅ (z/10)0,24 ⋅ NNпо модулю | |||||||||
| Категория местности III | До 8 м | 1,50 ⋅ qb ⋅ NNмод - | - | - | - | - | ||||
| От 8 м до 300 м | 1,60 ⋅ qb ⋅ (z/10)0,31 ⋅ NNпо модулю | |||||||||
| Категория местности IV | До 16 м | 1,30 ⋅ qb ⋅ NNмод - | - | - | - | - | ||||
| От 16 м до 300 м | 1,10 ⋅ qb ⋅ (z/10)0,40 ⋅ NNпо модулю | |||||||||
| Острова Северного моря I | До 2 м | 1,10 ⋅ NNмод | - | - | - | - | ||||
| От 2 м до 300 м | 1,50 ⋅ (z/10)0,19 ⋅ NNпо модулю | |||||||||
| Прибрежные зоны и острова Балтийского моря I - II | До 4 м | 1.80 ⋅ qb ⋅ NNмод. | - | - | - | - | ||||
| От 4 м до 50 м | 2,30 ⋅ qb ⋅ (z/10)0,27 ⋅ NNпо модулю | |||||||||
| От 50 м до 300 м | 2,60 ⋅ qb ⋅ (z/10)0,19 ⋅ NNпо модулю | |||||||||
| Внутренние районы II - III | До 7 м | 1,50 ⋅ qb ⋅ NNмод. | - | - | - | - | ||||
| От 7 м до 50 м | 1,70 ⋅ qb ⋅ (z/10)0,37 ⋅ NNпо модулю | |||||||||
| От 50 м до 300 м | 2,10 ⋅ qb ⋅ (z/10)0,24 ⋅ NNпо модулю | |||||||||
| Континент | До 10 м | - | - | 0.50 ⋅ NNмод. | 0,65 ⋅ NNмод | 0,80 ⋅ NNмод | 0,95 ⋅ NNмод | |||
| От 10 м до 18 м | 0,65 ⋅ NNмод | 0,80 ⋅ NNмод | 0,95 ⋅ NNмод | 1.15 ⋅ NNмод | ||||||
| От 18 м до 25 м | 0,75 ⋅ NNмод | 0,90 ⋅ NNмод | 1,10 ⋅ NNмод | 1.30 ⋅ NNмод | ||||||
| Балтийское море | До 10 м | - | - | - | 0,85 ⋅ NNмод | 1.05 ⋅ NNмод | - | |||
| От 10 м до 18 м | - | 1.00 ⋅ NNмод | 1.20 ⋅ NNмод | - | ||||||
| От 18 м до 25 м | - | 1,10 ⋅ NNмод | 1.30 ⋅ NNмод | - | ||||||
| Северное и Балтийское моря и острова Балтийского моря | До 10 м | - | - | - | - | - | 1,25 ⋅ NNмод | |||
| От 10 м до 18 м | - | - | - | 1.40 ⋅ NNмод | ||||||
| От 18 м до 25 м | - | - | - | 1,55 ⋅ NNмод | ||||||
| Острова в Северном море | До 10 м | - | - | - | - | - | 1.40 ⋅ NNмод | |||
| От 10 м до 18 м | - | - | - | По подходу 2 | ||||||
| От 18 м до 25 м | - | - | - | По подходу 2 | ||||||
Определение местного давления базовой скорости ветра с помощью онлайн-сервиса Dlubal
Онлайн-сервис Dlubal «Зоны снеговой нагрузки, ветровые зоны и сейсмические зоны» сочетает в себе стандартные характеристики с цифровыми технологиями. Сервис помещает карту соответствующей зоны на карту Google Maps, в зависимости от выбранного типа нагрузки (снег, ветер, землетрясение) и национальных стандартов. Введите местоположение, географические координаты или местные условия в функцию поиска, чтобы получить соответствующие данные. Затем инструмент определяет характерную нагрузку или ускорение в этом месте посредством точной высоты над уровнем моря и введенных данных зоны. Если невозможно определить местоположение с помощью определенного адреса, вы можете увеличить карту и выбрать правильное местоположение. После выбора требуемого местоположения на карте, расчет приспособится новой высоте и отобразит обновленные нагрузки.
Сетевые средства доступны на сайте Dlubal в секции Применения → Сетевые средства.
Определив следующие параметры...
1-й тип нагрузки = ветер
2. стандарт = EN 1991-1-4
3. Приложение = Германия | DIN EN 1991-1-4
4. Адрес = Zellweg 2, Tiefenbach
... будут для выбранного местоположения получены следующие результаты:
5. ветровая зона
6 Дополнительная информация (при необходимости)
7. основная основная скорость ветра vb, 0
8. давление основной скорости ветра qb
Если вы выберете позицию выше 1100 м, онлайн-сервис отобразится в точке 6 «Ветровая нагрузка на высоте более 1100 м отсутствует. | NCI A.2 (3) ». Никакая нагрузка не может быть определена в соответствии с существующим правилом, и для этого места требуются особые соображения.
давление ветра на поверхности
Действующее давление ветра на поверхность - это произведение давления максимальной скорости, умноженное на аэродинамический коэффициент [1] , [2].
Для внешних поверхностей:
we = qp (ze ) ⋅ cpe
где
qp (ze ) = пиковая скорость давления
ze = контрольная высота для внешнего давления
cpe = аэродинамический коэффициент для внешнего давления
Для внутренних поверхностей:
wi = qp (zi ) ⋅ cpi
где
qp (zi ) = пиковая скорость давления
zi = контрольная высота для внутреннего давления
cpi = аэродинамический коэффициент для внутреннего давления
Результирующая нагрузка от внешнего и внутреннего давления - это нагрузка от чистого давления на поверхность. Давление на поверхности считается положительным, а давление (всасывание) на удалении от поверхности - отрицательным.
Чистое давление:
wnet = we + wi
Выбранные аэродинамические коэффициенты
К поверхности конструкции, находящейся в ветровом потоке, прилагаются нагрузки давления и всасывания. Величина воздействия на внешние поверхности зависит от их области приложения нагрузки. Зона приложения нагрузки - это поверхность, которая активно поглощает двумерную ветровую нагрузку и концентрированно передает ее на нижележащую конструкцию. Для этого типа расчета стандарт содержит коэффициенты аэродинамического внешнего давления, которые зависят от поверхности приложения нагрузки [1] , [2].
| Область приложения нагрузки A [3] | Аэродинамический Коэффициент внешнего давления cpe | Описание работы |
|---|---|---|
| <1 м² | cpe,1 | Расчет малых конструктивных элементов и их креплений (например, элементы облицовки или кровли) |
| От 1 м² до 10 м² | cpe, 1 - (cpe, 1 - cpe, 10 ) ⋅ log10 (A) | |
| > 10 м² | cpe, 10 | Дизайн всей конструкции |
вертикальные стены зданий прямоугольной формы
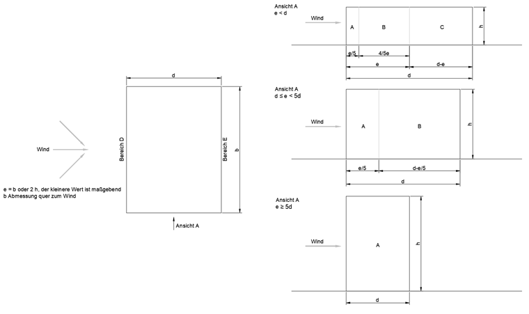
Скорость ветра, естественно, нелинейно возрастает с высотой от земли. Результирующее распределение давления при пиковой скорости может быть применено в упрощенном и масштабируемом виде по высоте для наветренной поверхности здания (наветренная область D), в зависимости от отношения высоты здания h к ширине здания b [1] , [2].
Всасывающие нагрузки на стены остальных подветренных поверхностей здания, параллельных ветру (области A, B, C и E), зависят от аэродинамики здания. Конечные аэродинамические коэффициенты для внешних поверхностей могут быть определены и применены в масштабе в зависимости от отношения высоты здания h к высоте здания d.
| Зона | одного | B | C | d | E | |||||
|---|---|---|---|---|---|---|---|---|---|---|
| ч/д | cpe, 10 | cpe,1 | cpe, 10 | cpe,1 | cpe, 10 | cpe,1 | cpe, 10 | cpe,1 | cpe, 10 | cpe,1 |
| ≥5 | -1,4 | -1,7 | -0,8 | -1,1 | -0,5 | -0,7 | +0,8 | +1,0 | -0,5 | -0,7 |
| 1 | -1,2 | -1,4 | -0,8 | -1,1 | -0,5 | +0,8 | +1,0 | -0,5 | ||
| ≤0,25 | -1,2 | -1,4 | -0,8 | -1,1 | -0,5 | +0,8 | +1,0 | -0,3 | -0,5 | |
| Большие силы всасывания могут возникать в зоне всасывания отдельно стоящих зданий, расположенных на открытых площадках. Допускается линейная интерполяция промежуточных значений. Для зданий с h/d> 5, общая ветровая нагрузка должна быть определена с помощью значений силы в соответствии с DIN EN 1991-1-4 плюс Национальное приложение Германии, главы 7.6 - 7.8 и 7.9.2. | ||||||||||
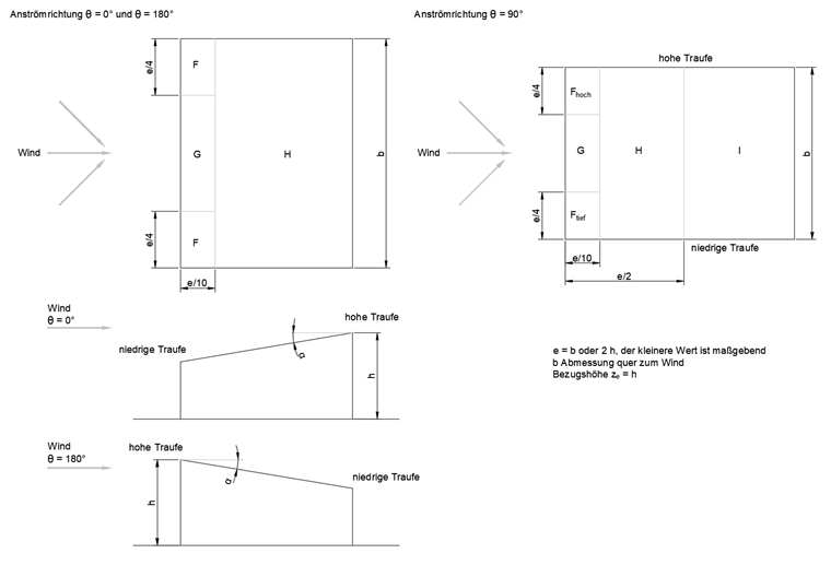
Односкатная кровля
Подобно размерам здания, форма кровли также оказывает аэродинамическое воздействие на внешние поверхности кровли. Кровля с уклоном более 5 ° с характерным высоким и низким карнизами называется односкатной кровлей. Из-за аэродинамики на поверхности приложения нагрузки действуют ветровые нагрузки в зависимости от уклона кровли [1] , [2].
| Зона | b | h | i | |||||||
|---|---|---|---|---|---|---|---|---|---|---|
| Направление потока θ = 0° 2) | ||||||||||
| Угол наклона α1) | cpe, 10 | cpe,1 | cpe, 10 | cpe,1 | cpe, 10 | cpe,1 | cpe, 10 | cpe,1 | ||
| 5 ° | -1,7 | -2,5 | -1,2 | -2,0 | -0,6 | -1,2 | - | - | ||
| +0,0 | +0,0 | +0,0 | ||||||||
| 15° | -0,9 | -2,0 | -0,8 | -1,5 | -0,3 | - | - | |||
| +0,2 | +0,2 | +0,2 | ||||||||
| 30° | -0,5 | -1,5 | -0,5 | -1,5 | -0,2 | - | - | |||
| +0,7 | +0,7 | +0,4 | ||||||||
| 45 ° | -0,0 | -0,0 | -0,0 | - | - | |||||
| +0,7 | +0,7 | +0,6 | ||||||||
| 60 ° | +0,7 | +0,7 | +0,7 | - | - | |||||
| 75 ° | +0,8 | +0,8 | +0,8 | - | - | |||||
| Направление потока θ = 180 ° | ||||||||||
| 5 ° | -2,3 | -2,5 | -1,3 | -2,0 | -0,8 | -1,2 | - | - | ||
| 15° | -2,5 | -2,8 | -1,3 | -2,0 | -0,9 | -1,2 | - | - | ||
| 30° | -1,1 | -2,3 | -0,8 | -1,5 | -0,8 | - | - | |||
| 45 ° | -0,6 | -1,3 | -0,5 | -0,7 | - | - | ||||
| 60 ° | -0,5 | -1,0 | -0,5 | -0,5 | - | - | ||||
| 75 ° | -0,5 | -1,0 | -0,5 | -0,5 | - | - | ||||
| Направление потока θ = 90 ° | ||||||||||
| fвысокие | Поток | |||||||||
| cpe, 10 | cpe,1 | cpe, 10 | cpe,1 | |||||||
| 5 ° | -2,1 | -2,6 | -2,1 | -2,4 | -1,8 | -2,0 | -0,6 | -1,2 | -0,5 | |
| 15° | -2,4 | -2,9 | -1,6 | -2,4 | -1,9 | -2,5 | -0,8 | -1,2 | -0,7 | -1,2 |
| 30° | -2,1 | -2,9 | -1,3 | -2,0 | -1,5 | -2,0 | -1,0 | -1,3 | -0,8 | -1,2 |
| 45 ° | -1,5 | -2,4 | -1,3 | -2,0 | -1,4 | -2,0 | -1,0 | -1,3 | -0,9 | -1,2 |
| 60 ° | -1,2 | -2,0 | -1,2 | -2,0 | -1,2 | -2,0 | -1,0 | -1,3 | -0,7 | -1,2 |
| 75 ° | -1,2 | -2,0 | -1,2 | -2,0 | -1,2 | -2,0 | -1,0 | -1,3 | -0,5 | |
| 1) Допускается линейная интерполяция промежуточных значений при условии, что знак не изменится. Для интерполяции задано значение 0,0. 2) Для направления потока θ = 0 ° и углов наклона α = + 5 ° до + 45 ° давление изменяется очень быстро между положительными и отрицательными значениями. Поэтому для этой области задан как положительный, так и отрицательный коэффициент внешнего давления. Для таких кровель оба случая (давление и всасывание) необходимо рассматривать отдельно, рассматривая, во-первых, только положительные значения (давление), а во-вторых, только отрицательные значения (всасывание). | ||||||||||
Двускатная кровля
Форма кровли, состоящая из двух противоположно наклонных поверхностей, которые пересекаются на верхнем горизонтальном крае в коньке кровли, называется двускатной кровлей. Эта геометрия имеет свои собственные аэродинамические эффекты в областях приложения нагрузки [1] , [2].
| Зона | b | h | i | J | |||||||
|---|---|---|---|---|---|---|---|---|---|---|---|
| Направление потока θ = 0° 2) | |||||||||||
| Угол наклона α1) | cpe, 10 | cpe,1 | cpe, 10 | cpe,1 | cpe, 10 | cpe,1 | cpe, 10 | cpe,1 | cpe, 10 | cpe,1 | |
| 5 ° | -1,7 | -2,5 | -1,2 | -2,0 | -0,6 | -1,2 | -0,6 | +0,2 | |||
| +0,0 | +0,0 | +0,0 | -0,6 | ||||||||
| 15° | -0,9 | -2,0 | -0,8 | -1,5 | -0,3 | -0,4 | -1,0 | -1,5 | |||
| +0,2 | +0,2 | +0,2 | +0,0 | +0,0 | +0,0 | ||||||
| 30° | -0,5 | -1,5 | -0,5 | -1,5 | -0,2 | -0,4 | -0,5 | ||||
| +0,7 | +0,7 | +0,4 | +0,0 | +0,0 | |||||||
| 45 ° | -0,0 | -0,0 | -0,0 | -0,2 | -0,3 | ||||||
| +0,7 | +0,7 | +0,6 | +0,0 | +0,0 | |||||||
| 60 ° | +0,7 | +0,7 | +0,7 | -0,2 | -0,3 | ||||||
| 75 ° | +0,8 | +0,8 | +0,8 | -0,2 | -0,3 | ||||||
| Направление потока θ = 90 ° | |||||||||||
| 5 ° | -1,6 | -2,2 | -1,3 | -2,0 | -0,7 | -1,2 | -0,6 | - | - | ||
| 15° | -1,3 | -2,0 | -1,3 | -2,0 | -0,6 | -1,2 | -0,5 | - | - | ||
| 30° | -1,1 | -1,5 | -1,4 | -2,0 | -0,8 | -1,2 | -0,5 | - | - | ||
| 45 ° | -1,1 | -1,5 | -1,4 | -2,0 | -0,9 | -1,2 | -0,5 | - | - | ||
| 60 ° | -1,1 | -1,5 | -1,2 | -2,0 | -0,8 | -1,0 | -0,5 | - | - | ||
| 75 ° | -1,1 | -1,5 | -1,2 | -2,0 | -0,8 | -1,0 | -0,5 | - | - | ||
| 1) Для направления потока θ = 0 ° и углов наклона α = от -5 ° до + 45 ° давление изменяется очень быстро между положительными и отрицательными значениями. Таким образом, указывается как положительное, так и отрицательное значение. Для таких крыш необходимо рассмотреть четыре случая, когда наименьшее или наибольшее значение для областей F, G и H сочетается с наименьшим или наибольшим значением для областей I и J. Положительные и отрицательные значения нельзя смешивать на поверхности кровли. 2) Для уклонов кровли между указанными значениями допускается линейная интерполяция при условии, что знак коэффициентов давления не меняется. При уклоне от α = + 5 ° до -5 ° необходимо использовать значения для плоских кровель в соответствии с DIN EN 1991-1-4 плюс глава 7.2.3. Для интерполяции задано нулевое значение. | |||||||||||