Варианты размещения
Непрерывный шов
DIN EN 1993-6 Табл. 5.1
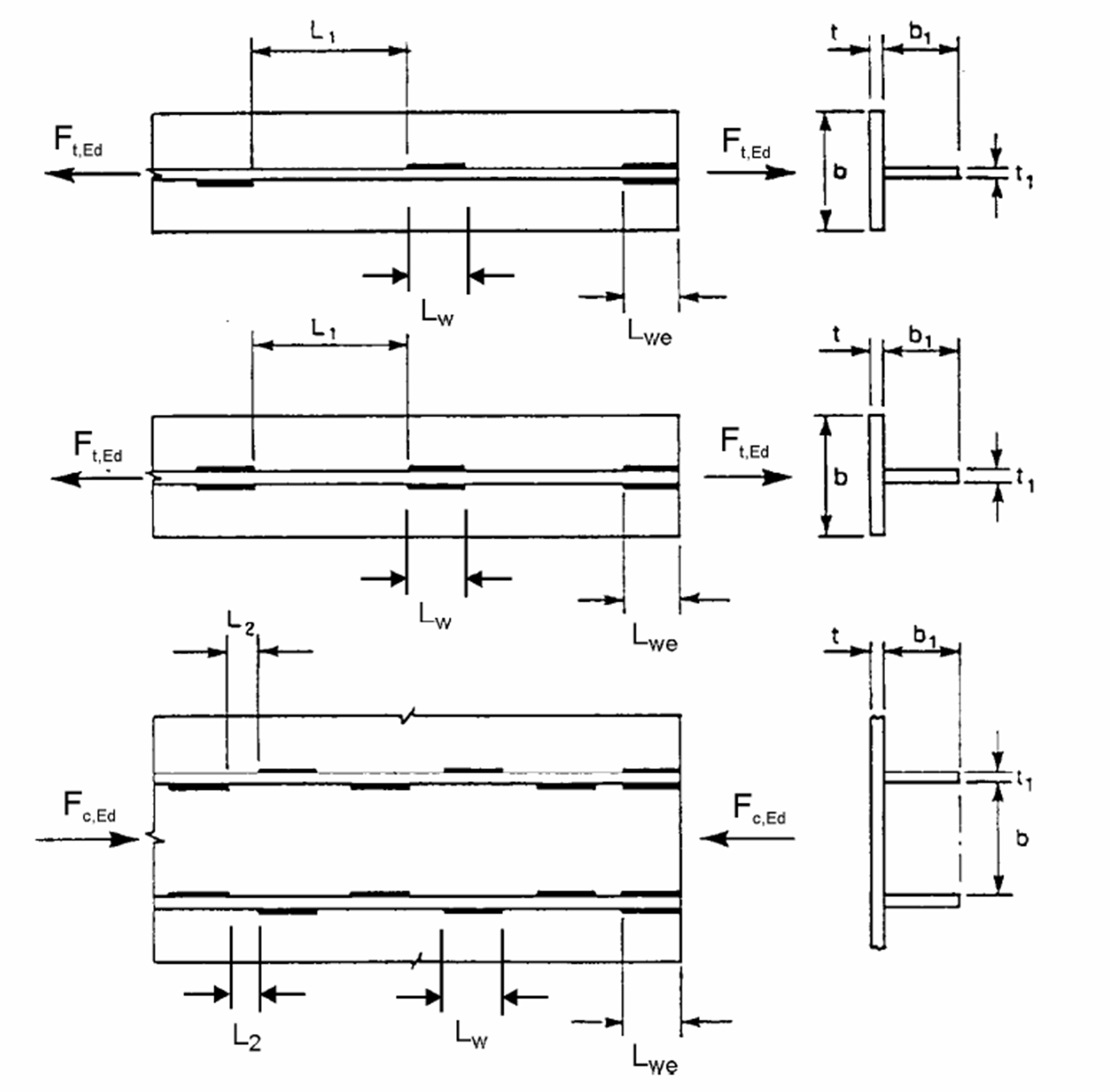
Эффективная длина распространения нагрузки
Spannungen im Grenzzustand der Tragfähigkeit
Сечения углового шва
Spannungen im Grenzzustand der Tragfähigkeit unterbrochen gegenüber
Spannungen im Grenzzustand der Tragfähigkeit unterbrochen versetzt
Варианты размещения
Непрерывный шов
DIN EN 1993-6 Табл. 5.1
Эффективная длина распространения нагрузки
Spannungen im Grenzzustand der Tragfähigkeit
Сечения углового шва
Spannungen im Grenzzustand der Tragfähigkeit unterbrochen gegenüber
Spannungen im Grenzzustand der Tragfähigkeit unterbrochen versetzt
2024-05-30
009717
  • CRANEWAY 8
  • Краны и подкрановые пути
  • Eurocode 3

Варианты размещения

Используется в
  • Расчет на предельное рабочее состояние сварных соединений балок подкрановых путей по EN 1993-6
Поделиться
2024-05-30
009718
  • CRANEWAY 8
  • Краны и подкрановые пути
  • Eurocode 3
Непрерывный шов
Используется в
  • Расчет на предельное рабочее состояние сварных соединений балок подкрановых путей по EN 1993-6
Поделиться
2024-05-30
009719
  • CRANEWAY 8
  • Краны и подкрановые пути
  • Eurocode 3
DIN EN 1993-6 Табл. 5.1
Используется в
  • Расчет на предельное рабочее состояние сварных соединений балок подкрановых путей по EN 1993-6
Поделиться
2024-05-30
009720
  • CRANEWAY 8
  • Краны и подкрановые пути
  • Eurocode 3
Эффективная длина распространения нагрузки
Используется в
  • Расчет на предельное рабочее состояние сварных соединений балок подкрановых путей по EN 1993-6
Поделиться
2024-05-30
009721
  • CRANEWAY 8
  • Краны и подкрановые пути
  • Eurocode 3
Spannungen im Grenzzustand der Tragfähigkeit
Используется в
  • Расчет на предельное рабочее состояние сварных соединений балок подкрановых путей по EN 1993-6
Поделиться
2024-05-30
009722
  • CRANEWAY 8
  • Краны и подкрановые пути
  • Eurocode 3
Сечения углового шва
Используется в
  • Расчет на предельное рабочее состояние сварных соединений балок подкрановых путей по EN 1993-6
Поделиться
2024-05-30
009723
  • CRANEWAY 8
  • Краны и подкрановые пути
  • Eurocode 3
Spannungen im Grenzzustand der Tragfähigkeit unterbrochen gegenüber
Используется в
  • Расчет на предельное рабочее состояние сварных соединений балок подкрановых путей по EN 1993-6
Поделиться
2024-05-30
009724
  • CRANEWAY 8
  • Краны и подкрановые пути
  • Eurocode 3
Spannungen im Grenzzustand der Tragfähigkeit unterbrochen versetzt
Используется в
  • Расчет на предельное рабочее состояние сварных соединений балок подкрановых путей по EN 1993-6
Поделиться