12811x
001402
2017-02-13

Расчет на предельное рабочее состояние сварных соединений балок подкрановых путей по EN 1993-6

Если балки подкранового пути спроектированы с применением плоских стальных рельсов, сварка этих рельсов всегда является деталью для расчета. В качестве рельсового скрепления обычно можно выбрать между непрерывными и прерывистыми угловыми швами. Der folgende Beitrag soll einen Überblick über die Nachweisführungen und deren Besonderheiten geben, speziell bei Verwendung der DIN EN 1993-6.

Варианты расположения угловых швов рельсов

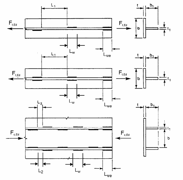
Возможны два варианта прерывистых угловых сварных соединений. Они показаны на следующем рисунке из [2].

Сечения сварных швов могут располагаться как на противоположных сторонах, так и в шахматном порядке. Расположение в шахматном порядке является невыгодным с точки зрения конструкции, поскольку для передачи горизонтальных нагрузок можно использовать только один сварной шов. Третий вариант, который не показан на рисунке выше, - это, конечно, непрерывный угловой шов по всей длине рельса.

Эффективная длина в снаряженном состоянии

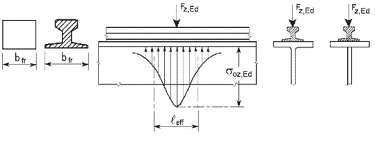
Для определения соответствующих напряжений в сварном шве необходимо рассчитать эффективную длину под нагрузкой. В стандарте EN 1993‑6 проводится различие между тремя вариантами и приведены соответствующие формулы для расчета leff в таблице 5.1.

В этом случае leff относится к нижней стороне верхнего фланца. Однако верхняя поверхность верхнего фланца определяет расчет сварного шва. Следовательно, leff уменьшается на двойную толщину полки tf.

Расчет на предельное состояние по несущей способности

Напряжения в сварных швах рельсов рассчитываются по Направленному методу, указанному в [2]. В данном случае напряжения относятся к биссектрисе углового шва. Согласно [2], (NA) раздел 4.5.2, для сварного шва должна быть сохранена минимальная толщина конструкции. Стандарт требует сварного шва минимальной толщиной не менее 3 мм или применения следующей формулы:

Эксцентричная нагрузка на колесо, составляющая 1/4 ширины головки рельса, не учитывается в предельном состоянии по прочности согласно EN 1993-6. Поэтому расчет за счет нагрузки на колесо выполняется всегда.

Случай 1: Непрерывный рельсовый шов

Для прерывистых угловых швов рельсов необходимо проверить, не меньше ли длина шва lw расчетной длины leff под нагрузкой. Как правило, минимальное из двух значений является определяющим для расчета.

Случай 2: Прерывистая сварка рельсов на противоположных сторонах

Случай 3: Ступенчатый прерывистый рельсовый шов

Поскольку горизонтальная нагрузка применяется только к сечению сварного шва в случае шахматного расположения сварных швов, делитель 2 опускается с точки зрения HEd.


Ссылки
Ссылки


;