Критический периметр вокруг колонны с учетом одного отверстия
Флажок на расчетную штамповку
Выбор узлов продавливания с помощью таблиц
Расчёт железобетонных конструкций - конфигурации
Расчетные параметры продавливания
Полностью пластическое распределение касательного напряжения
Предоставлено поверхностное армирование для начальной проверки прочности на сдвиг
Сопротивление продавливанию на основе предоставленной продольной арматуры
Детали проверки конструкции продавливания
Определение дополнительной продольной арматуры
Графическое отображение дополнительной поверхностной арматуры
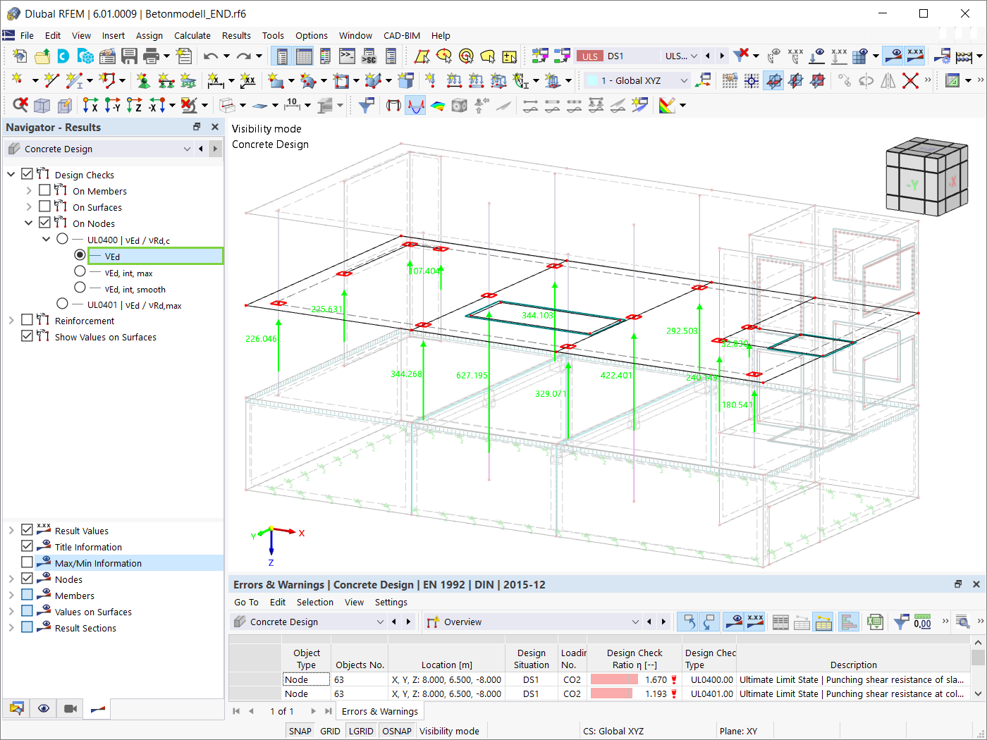
Требуемая арматура на продавливание
Продавливающая нагрузка
Критический периметр вокруг колонны с учетом одного отверстия
Флажок на расчетную штамповку
Выбор узлов продавливания с помощью таблиц
Расчёт железобетонных конструкций - конфигурации
Расчетные параметры продавливания
Полностью пластическое распределение касательного напряжения
Предоставлено поверхностное армирование для начальной проверки прочности на сдвиг
Сопротивление продавливанию на основе предоставленной продольной арматуры
Детали проверки конструкции продавливания
Определение дополнительной продольной арматуры
Графическое отображение дополнительной поверхностной арматуры
Требуемая арматура на продавливание
Продавливающая нагрузка
2024-05-30
027065
  • RFEM 6
  • Бетонные конструкции

Критический периметр вокруг колонны с учетом одного отверстия

Используется в
  • Расчёт на продавливание в программе RFEM 6
Поделиться
2024-05-30
027066
  • RFEM 6
  • Бетонные конструкции
Флажок на расчетную штамповку
Используется в
  • Расчёт на продавливание в программе RFEM 6
Поделиться
2024-05-30
027067
  • RFEM 6
  • Бетонные конструкции
Выбор узлов продавливания с помощью таблиц
Используется в
  • Расчёт на продавливание в программе RFEM 6
Поделиться
2024-05-30
027128
  • RFEM 6
Расчёт железобетонных конструкций - конфигурации
Используется в
  • Расчёт на продавливание в программе RFEM 6
Поделиться
2024-05-30
027129
  • RFEM 6
  • Бетонные конструкции
Расчетные параметры продавливания
Используется в
  • Расчёт на продавливание в программе RFEM 6
Поделиться
2024-05-30
027138
  • RFEM 6
  • Бетонные конструкции
Полностью пластическое распределение касательного напряжения
Используется в
  • Расчёт на продавливание в программе RFEM 6
Поделиться
2024-05-30
027130
  • RFEM 6
  • Бетонные конструкции
Предоставлено поверхностное армирование для начальной проверки прочности на сдвиг
Используется в
  • Расчёт на продавливание в программе RFEM 6
Поделиться
2024-05-30
027131
  • RFEM 6
  • Бетонные конструкции
Сопротивление продавливанию на основе предоставленной продольной арматуры
Используется в
  • Расчёт на продавливание в программе RFEM 6
Поделиться
2024-05-30
027132
  • RFEM 6
  • Бетонные конструкции
Детали проверки конструкции продавливания
Используется в
  • Расчёт на продавливание в программе RFEM 6
Поделиться
2024-05-30
027133
  • RFEM 6
  • Бетонные конструкции
Определение дополнительной продольной арматуры
Используется в
  • Расчёт на продавливание в программе RFEM 6
Поделиться
2024-05-30
027134
  • RFEM 6
  • Бетонные конструкции
Графическое отображение дополнительной поверхностной арматуры
Используется в
  • Расчёт на продавливание в программе RFEM 6
Поделиться
2024-05-30
027135
  • RFEM 6
  • Бетонные конструкции
Требуемая арматура на продавливание
Используется в
  • Расчёт на продавливание в программе RFEM 6
Поделиться
2024-05-30
027136
  • RFEM 6
  • Бетонные конструкции
Продавливающая нагрузка
Используется в
  • Расчёт на продавливание в программе RFEM 6
Поделиться