11139x
001728
2021-12-23

Расчёт на продавливание в программе RFEM 6

Для плит, подверженных сосредоточенной нагрузке или реакции, по норме EN 1992-1-1 необходимо выполнять расчёт на продавливание. Узел, в котором выполняется расчет сопротивления сдвигу при продавливании (то есть где существует проблема продавливания), называется узлом сдвига при продавливании. Сосредоточенную нагрузку в этих узлах можно задать при помощи колонн, сосредоточенной силы или узловых опор. Конечная точка приложения линейной нагрузки к плитам также рассматривается как сосредоточенная нагрузка, и поэтому необходимо контролировать сопротивление сдвигу на концах стены, в углах стены, а также на концах или в углах линейных нагрузок и линейных опор.

Контрольный контур

Расчет на продавливание выполняется в основном контрольном периметре, при этом проверяется, если действующая поперечная сила vEd не превышает сопротивление vRd. Согласно главе 6.4.2 нормы EC 2 {%ref#Refer [1]]], контрольный периметр для плит находится на расстоянии удвоенной полезной высоты (d) плиты от точки приложения нагрузки.

Размеры колонн, а также отверстия в плитах влияют на геометрию контрольного периметра и должны учитываться на расстоянии до 6 d от нагружаемой поверхности. Важно задать все отверстия заранее (то есть во время расчета по МКЭ), чтобы программа могла автоматически распознать и учесть их в расчете на продавливание, как показано на рисунке 1.

Параметры расчёта на продавливание в RFEM 6

Если аддон Расчет железобетонных конструкций уже активирован, то расчет на продавливание в RFEM 6 можно активировать, установив флажок Расчет на продавливание в расчетных свойствах узла продавливания (рисунок 2). Мы можем выбрать все узлы, в которых возникает продавливание, и активировать для всех из них одновременно расчет на продавливание. Вместо этого также можно выбрать узлы с продавливанием для расчета в таблице вводных данных расчета железобетонных конструкций (рисунок 3).


Параметры расчета на продавливание для выбранных узлов могут быть заданы в конфигурации предельного состояния для расчета железобетонных конструкций (рисунок 4). Таким образом, нагрузка на продавливание, коэффициент приращения нагрузки β для учета асимметричного распределения поперечной силы в контрольном периметре и минимальный шаг армирования могут быть заданы во вкладке Продавливание конфигурации предельного состояния (рисунок 5).


Нагрузка на продавливание для стен - это поперечная сила (сглаженная или несглаженная) по критическому периметру, тогда как для колонн нагрузка продавливания может быть либо поперечной силой (сглаженной или несглаженной) по критическому периметру, либо одиночным усилием от колонны, нагрузки, или узловой опоры.

Коэффициент приращения нагрузки по EN 1992-1-1 {%://#Refer [1]]] может быть установлен с учетом полностью пластичного распределения горизонтальных нагрузок, как показано на рисунке 6, или с помощью постоянных коэффициентов. Он также может определяться секторной моделью или может быть задан пользователем.

Расчёт на продавливание в программе RFEM 6

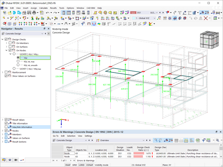
После того, как расчетные параметры продавливания заданы, можно выполнить расчет железобетонной конструкции (включая продавливание). Сначала расчет можно выполнить с учетом только продольной арматуры, которая уже задана для поверхности (рисунок 7). После того, как расчет бетона выполнен с учетом только данной арматуры, коэффициенты использования с точки зрения сопротивления сдвигу при продавливании для всех заданных узлов отобразятся как в графической, так и в табличной форме (рисунок 8).


Расчетные коэффициенты на узлах продавливания - это сравнение между прочностью на сдвиг при продавливании без поперечной арматуры vRd,c, определенной по 6.4.4 (1) [1], и приложенное максимальное напряжение сдвига vEd, рассчитанное по Разделу 6.4.3 (3), уравнение (38). Эти уравнения, а также методику расчета вы найдете в разделе Подробности расчета, показанном на рисунке 9.

Расчет на продавливание без дополнительной арматуры для восприятия продавливания выполнен, если vEd ≤ vRd,c, в противном случае необходимо задать дополнительную арматуру. В таком случае можно задать дополнительную продольную арматуру на растянутой стороне плиты.

Для плиты в нашем примере это будет сделано путем задания дополнительной продольной арматуры на верхней стороне, как показано на рисунке 10. Заданную арматуру можно назначить одному узлу, а затем с помощью общей функции «копировать» ее можно легко скопировать во все узлы продавливания (рисунок 11). Назначенная таким образом арматура будет автоматически учтена в расчете на прочность при сдвиге.


Как и в предыдущем случае, результаты отображаются как графически, так и в таблице Расчет железобетонных конструкций. Если расчет на продавливание без дополнительной арматуры для восприятия продавливания по-прежнему не выполнен, то пользователь может увеличить объем продольной арматуры, применив максимально допустимый коэффициент продольного армирования ρ. Если расчет на продавливание невозможен без арматуры для восприятия продавливания (vRd,c ≤ vEd ), то рассчитывается максимальное сопротивление сдвигу при продавливании vRd,max и автоматически выполняется расчет конструкции.

Необходимое количество армирования в отношении продавливания можно отобразить на вкладке «Результаты» в навигаторе (рисунок 12). Если пользователя также интересует нагрузка продавливания, используемая в расчете, то ее можно отобразить на вкладке Результаты в навигаторе, как показано на рисунке 13.


Заключительные замечания

Расчет на продавливание в RFEM 6 содержится в аддоне «Расчет железобетонных конструкций» и его можно активировать, установив флажок «Расчет на продавливание» в окне редактирования для узлов продавливания. Активация расчетных свойств позволит определить такие параметры расчета на продавливание, как нагрузка при продавливании, коэффициент приращения нагрузки β и минимальный шаг арматуры в конфигурации предельного состояния для расчета железобетонных конструкций.

Расчет бетона можно выполнить на основе продольной арматуры, предусмотренной для других типов расчетов. Если условия расчета на продавливание без дополнительной арматуры для восприятия продавливания не выполнены (vRd,c ≤ vEd ), то на растянутой стороне плиты может быть задана дополнительная продольная арматура. Таким образом рассчитывается максимальное сопротивление сдвигу при продавливании vRd,max и автоматически выполняется расчет конструкции.


Автор

Irena Kirova отвечает за написание технических статей и техподдержку пользователей ПО Dlubal.

Ссылки
Ссылки


;