Интерфейс, демонстрирующий ввод данных для проектирования бетона с использованием программного обеспечения Dlubal
Интерфейс, демонстрирующий ввод данных для проектирования бетона с использованием программного обеспечения Dlubal
2024-11-21
054023
  • RFEM 6

Проектирование бетона: Входные данные

Интерфейс, демонстрирующий ввод данных для проектирования бетона с использованием программного обеспечения Dlubal

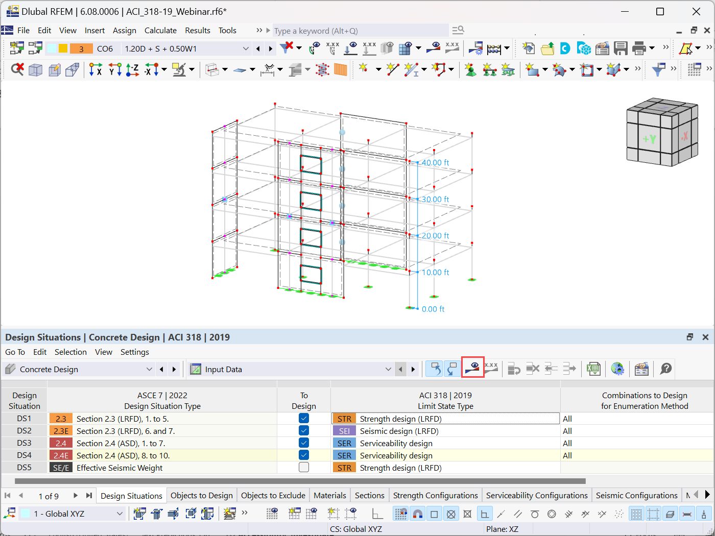
Изображение представляет интерфейс программного обеспечения Dlubal, ориентированный на ввод данных для проектирования бетонных конструкций. Программы Dlubal помогают инженерам-строителям эффективно управлять и анализировать параметры проектирования бетона. Этот конкретный интерфейс предоставляет пользователям возможность вводить и корректировать важные проектные данные, необходимые для проведения всестороннего анализа бетонных конструкций. Используя это программное обеспечение, инженеры могут эффективно решать задачи проектирования, обеспечивая соблюдение соответствующих стандартов и повышая общую безопасность конструкции. Его обширные функции поддерживают выполнение различных инженерных задач, упрощая рабочие процессы проекта и оптимизируя результаты проектирования.
  • Бетонное проектирование
  • Структурная инженерия
  • Dlubal Software
  • Инженерное программное обеспечение
  • Инструменты гражданского строительства
Используется в
  • Расчет железобетонной диафрагмы жёсткости в программе RFEM 6: Пошаговое руководство
Поделиться