2889x
001919
2024-11-21

Расчет железобетонной диафрагмы жёсткости в программе RFEM 6: Пошаговое руководство

В этой статье представлено пошаговое руководство по расчёту диафрагм жёсткости в программе RFEM 6.

Проектируемые нами конструкции подвергаются различным нагрузкам, включая боковые силы, такие как ветер, землетрясения и другие горизонтальные воздействия, которые особенно сложны для высотных зданий. Действуя горизонтально, эти силы подвергаются испытанию на устойчивость и целостность конструкций, поэтому важно убедиться, что здания могут выдержать их без чрезмерных перемещений и повреждений. В связи с этим, боковым расчетом является решающим аспектом гражданского строительства, ориентированным на прогнозирование боковых смещений, внутренних сил и общих характеристик здания при подобных нагрузках.

Чтобы противостоять боковым силам, таким как ветер или землетрясения, в конструкциях применяются специальные элементы, обеспечивающие устойчивость, прочность и гибкость. Совместная работа этих компонентов позволяет поддерживать целостность здания, контролировать его раскачивание и минимизировать ущерб. Диафрагмы жёсткости являются одними из наиболее важных элементов сопротивления боковым силам. В этой статье мы покажем, как рассчитывать диафрагмы жёсткости в программе RFEM 6, на примере стен многоэтажного здания, показанных на рисунке 1.

Расчёт диафрагм жёсткости в RFEM 6 в аддоне Модель здания

Здание, изображенное на Рисунке 1, представляет собой многоэтажное здание со стенами жёсткости. Для проектирования таких зданий RFEM 6 предлагает аддон Модель здания. Этот мощный инструмент позволяет вам отдельно определять этаж здания и вносить различные коррективы в отдельные этажи по мере необходимости. Он также поддерживает интеграцию элементов диафрагм жёсткости и подоконных стен и позволяет назначать диафрагмы перекрытиям с помощью нескольких типов диафрагм. Эти элементы имеют решающее значение для бокового расчета, поскольку они создают связную систему, предназначенную для эффективного сопротивления боковым силам.

В данной статье будет обсуждаться в основном расчет диафрагм жёсткости, в частности тех, которые показаны на рисунке 1. Все три стены, соединенные подоконными элементами, простираются от первого до верхнего этажа. В таких случаях может быть очень полезно включение ячеек поверхности в качестве специальных объектов в навигаторе. Эта функция позволяет программе автоматически распознавать ячейки поверхности, что облегчает различение диафрагм жёсткости и соединяющих их элементов подоконных стен, как показано на рисунке 2.

Вы можете начать задавать стены жесткости, щелкнув правой кнопкой мыши на папке "Shear Wall" в навигаторе, чтобы открыть соответствующее окно (см. Image 3). Сначала выберите поверхности или ячейки поверхности с помощью ввода в правом верхнем углу окна, что можно выполнить графически. Для первой стены выберите четыре ячейки поверхности, расположенные слева от проемов, чтобы задать непрерывную диафрагму жёсткости, проходящую от основания до верхней части конструкции (см рис. 2). Повторим этот процесс для стены жёсткости на правой стороне от проема (стена 2) и для стены 3, как показано на рисунке 1 выше. Обратите внимание, что стена 3 задана с помощью только поверхностей, поскольку в ней нет отверстий.

После задания стен, можно задать параметры расчета для каждой стены в отдельности или выбрать все стены, чтобы применить для них одинаковые настройки одновременно. Сначала активируйте функцию «Создать результирующие сечения» (см.Рисунок 3), которая позволяет создать в плоскости жёсткости горизонтальные разрезы и отобразить результаты, такие как сумма внутренних сил, в формате таблицы. Поскольку вы сосредоточены на расчете стен, не забудьте выбрать «Параметры расчета», в котором можно ввести необходимые данные для расчета.

При активации «Параметры расчета», в окне становятся доступными дополнительные вкладки. Эти вкладки позволяют задать такие подробности, как защитный слой бетона для стен жёсткости (см.рисунок 4) или задать продольную арматуру (см.рисунок 5).

Для продольной арматуры доступны различные типы арматуры, в том числе симметричные, несимметричные, равномерно окружающие, линейные и одиночные типы. В нашем примере выбран тип «равномерно окружающий», с 22 стержнями №7, равномерно размещенными вокруг стены 1 и стены 2 (см. рисунок 5). Однако для стены 3 используются стержни 40 №7 из-за ее большей ширины.

Аналогично продольной арматуре, можно задать поперечную арматуру для стен жёсткости. Вы можете управлять такими параметрами, как тип хомута, материал, размер стержня, диаметр, количество и шаг (рисунок 6). Кроме того, вы можете включить и поперечные связи, установив соответствующий флажок, которые будут расположены поперёк продольных стержней. Если вы хотите исключить поперечину в определенном месте, просто щелкните по продольному стержню, чтобы отключить эту функцию. Вы также можете снова включить поперечную балку, снова щелкнув на продольный стержень.

В точках, где диафрагма жёсткости соединяется с плитами/перекрытиями, можно добавить расчётную опору (см.рисунок 7). Эти опоры можно настроить в соответствующем окне (как показано на рисунке 8). В этом примере начальная и конечная опоры стены жёсткости выполнены из бетона толщиной 10 дюймов, что соответствует толщине плиты, входящей в поперечный каркас стены. Расчётная опора на внутренних узлах должна быть того же типа и толщины, но не забудьте выбрать опцию «Внутренняя опора», чтобы указать, что в данном случае это не концевая опора (рисунок 8).

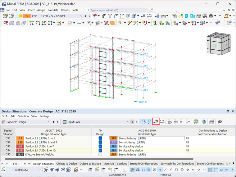
После настройки параметров расчета, вы можете выбрать входные данные для расчета в аддоне Расчет железобетонных конструкций (рисунок 9). Этот процесс включает в себя выбор расчетных ситуаций, которые необходимо учесть, определение типа предельного состояния для каждой из них, определение рассчитываемых объектов и т.д.

Результаты, включая подробности армирования и коэффициенты использования для стенок жёсткости, представлены как в табличной, так и в графической форме, как показано на рисунке 10. Это позволяет, например, графически наложить Подобранную арматуру и Требуемую арматуру, чтобы проверить, превышает ли подобранная арматура требуемую величину. В противном случае, можно для дальнейшей оценки визуализировать арматуру без покрытия.

Для расчетных соотношений, кроме табличного и графического представления, доступна подробная информация для каждой расчетной проверки с помощью соответствующей кнопки, предлагая подробный обзор расчетов (рисунок 11).


Автор

Irena Kirova отвечает за написание технических статей и техподдержку пользователей ПО Dlubal.

Ссылки


;