Реконструкция штаб-квартиры INAIL в Анконе с устойчивым дизайном и современными гидротерапевтическими помещениями.
  • 3D-визуализатор
  • 3D Viewer | Babylon
  • Виртуальная реальность
Реконструкция штаб-квартиры INAIL в Анконе с устойчивым дизайном и современными гидротерапевтическими помещениями.
2025-02-28
055594
  • RFEM 6
  • Бетонные конструкции
  • Стальные конструкции
    • Расчёт и проектирование конструкций
    • Расчёт напряжений
    • Расчёт по методу конечных элементов

Штаб-квартира INAIL в Анконе

Реконструкция штаб-квартиры INAIL в Анконе с устойчивым дизайном и современными гидротерапевтическими помещениями.

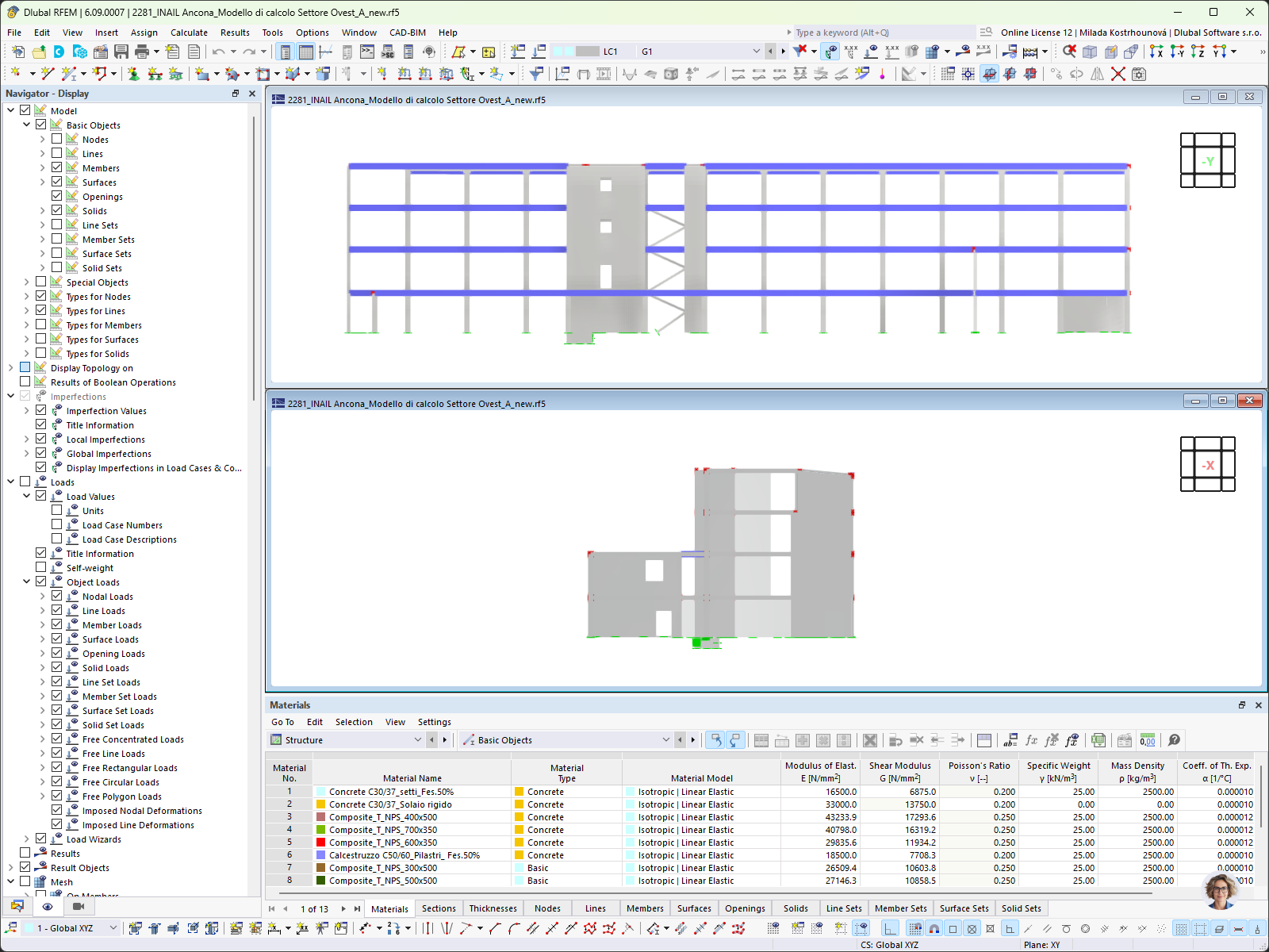
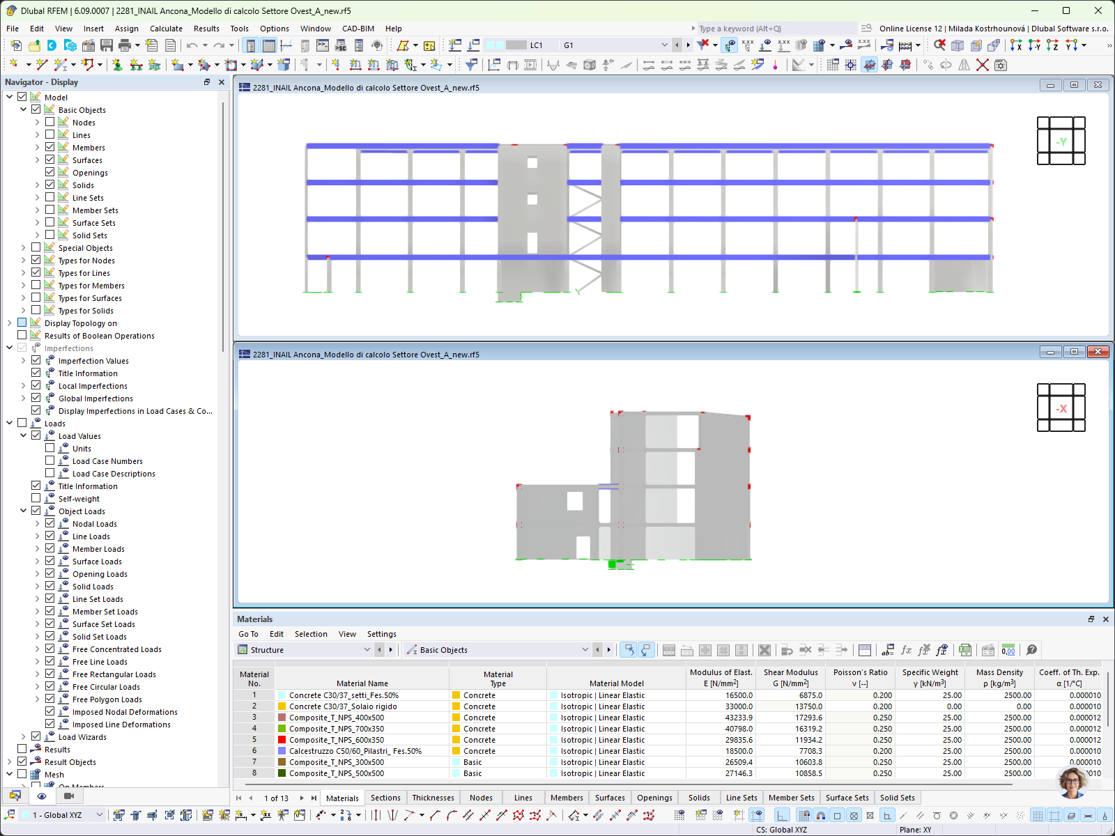
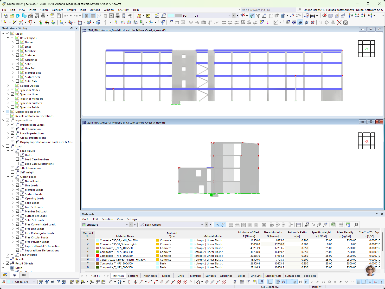
На изображении показана реконструкция бывшей средней школы IPSIA в новую штаб-квартиру INAIL в Анконе, Италия. Здание площадью 6 600 кв. м включает четыре наземных уровня и отличается большими объемами, подчеркнутыми облицовкой из камня и ритмичными проемами. Регулярные пустоты, выразительный прозрачный вход и тщательно подобранные цвета подчеркивают его общественную функцию. Проект использует сборный предварительно напряжённый железобетон и методологию BIM для обеспечения эффективности, с выделенными зонами для занятий гидротерапией, охраной здоровья и реабилитацией, а также офисами для региональных властей.
  • Штаб-квартира INAIL
  • Проект реконструкции
  • Экологичный дизайн
  • Моделирование BIM
  • Сборный предварительно напряжённый железобетон
Используется в
  • Центральный офис INAIL в Анконе, Италия
3D Модель
Скачивание невозможно Проект заказчика / только просмотр
Подробнее о 3D модели
  • Штаб-квартира INAIL Анкона
Спецификации
Количество узлов 571
Количество линий 976
Количество стержней 613
Количество поверхностей 236
Количество тел 0
Количество загружений 15
Количество сочетаний нагрузок 127
Количество расчетных сочетаний 5
Общий вес 1953,721 t
Размеры (метрические) 71,050 x 16,176 x 23,935 m
Размеры (имперские) 233.1 x 53.07 x 78.53 feet
Поделиться