394x
001333
2025-02-28

Центральный офис INAIL в Анконе, Италия

Новое здание штаб-квартиры INAIL в Анконе стало результатом всесторонней оценки по восстановлению старого здания средней школы IPSIA. Сосредоточенное на устойчивом развитии, данное здание включает ряд помещений, в том числе для водолечения и реабилитации, а также офисы для региональных властей. Проект, разработанный в BIM с использованием сборного железобетона, обеспечивает эффективность и соблюдение сроков строительства.

Новая штаб-квартира INAIL в Анконе, Италия, является результатом тщательной технической и экономической оценки, направленной на радикальную реконструкцию здания бывшей школы IPSIA. Проект уделяет приоритетное внимание устойчивому развитию с целью создания функциональной структуры, ориентированной на предоставление услуг для граждан. Здание изобилует большими объёмами, формирующими городскую грань, подчёркнутую облицовкой камнем и ритмичными проёмами. Дизайн включает регулярные пустоты и цветовые решения, ссылающиеся на общественную функцию здания, в то время как большой прозрачный вход нарушает симметрию, создавая новые пропорции.

Здание занимает 6,600 квадратных метров на четырех надземных уровнях, вмещая различные функции, такие как гидротерапия, оздоровительные и реабилитационные пространства, а также офисы Территориального директорат Анконы и Регионального директорат Марке. Здание полностью разработано с использованием информационного моделирования зданий (BIM), чтобы обеспечить эффективные сроки строительства и требования к производительности. Для достижения этих целей использовались решения из предварительно напряжённого сборного железобетона. Кроме того, здание включает передовые технологии, направленные на минимизацию воздействия на окружающую среду, включая улучшение гидрологической проницаемости района. Такие элементы, как внутренние автостоянки и зелёные крыши, способствуют устойчивости проекта к изменению климата, улучшая как экологическое, так и функциональное качество окружающей среды.

Место Виа Куртатоне, Анкона
Италия
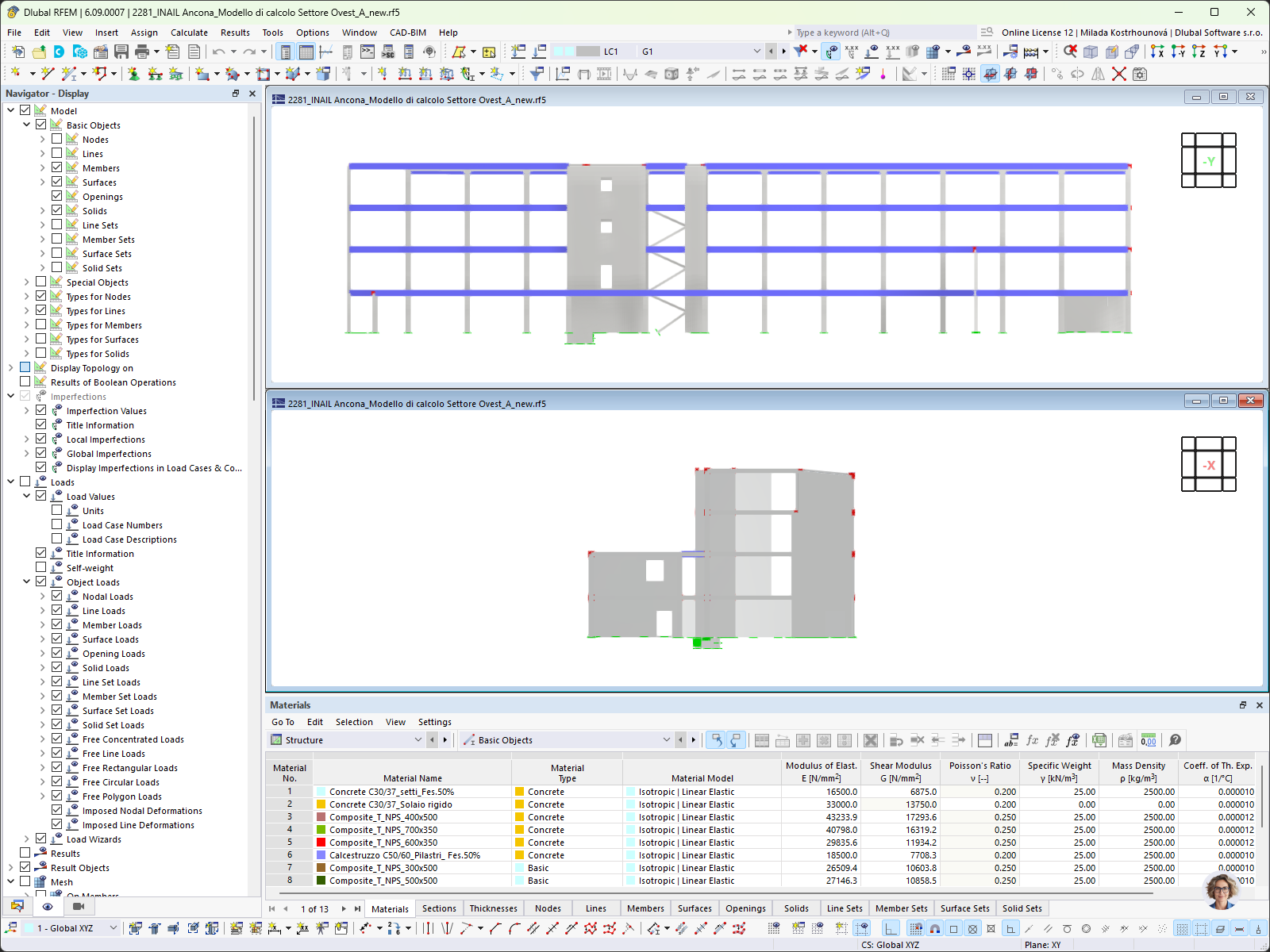
Расчёт строительных конструкций
Заказчик


Спецификации проекта

Данные о модели

Количество узлов 571
Количество линий 976
Количество стержней 613
Количество поверхностей 236
Количество тел 0
Количество загружений 15
Количество сочетаний нагрузок 127
Количество расчетных сочетаний 5
Общий вес 1953,721 t
Размеры (метрические) 71,050 x 16,176 x 23,935 m
Размеры (имперские) 233.1 x 53.07 x 78.53 feet

У вас есть какие-нибудь вопросы?