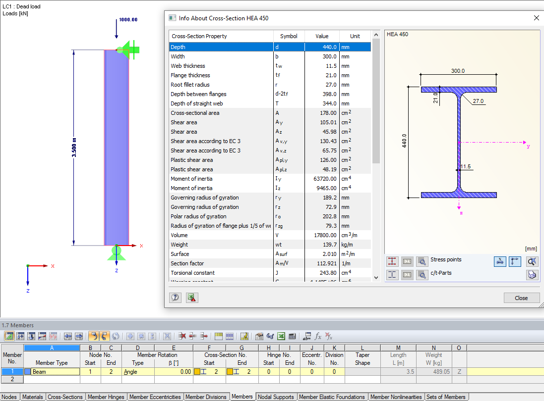
梁截面HEA 240,S355
梁截面HEA 240,S355
2024-05-30
008608
  • RFEM 5
  • RF-STEEL EC3 5
  • RSTAB 8
    • 钢EC3 8
    • 钢结构
    • Eurocode 3

梁截面HEA 240,S355

用于
  • 轴力作用下柱子的抗火承载力设计
分享