3105x
001644
2020-07-02

轴力作用下柱子的抗火承载力设计

在本篇技术文章中将按照欧洲规范 EN 1993-1-2 使用附加模块 RF-/STEEL EC3 对一个铰接柱进行设计, Hierfür wird der nationale Anhang von Deutschland verwendet.

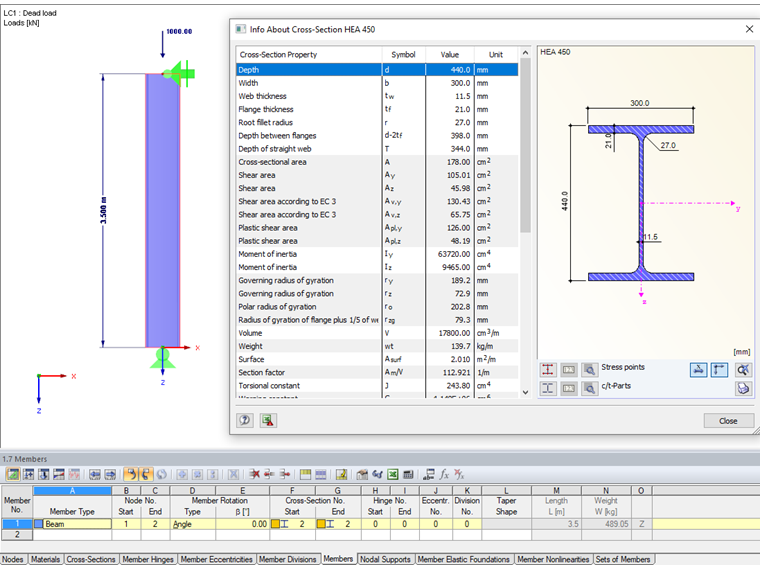
结构模型与荷载

绕弱轴弯曲屈曲验算

Die Knicklänge der Pendelstütze beträgt Lcr = 3,50 m.

Nach EN 1993-1-1, 6.3.1.2:

Auswahl der Knicklinie nach Tabelle 6.2:

Ausweichen rechtwinklig zur z-Achse: Knickspannungslinie KSLz: B

Aus Tabelle 6.1 ergibt sich der Imperfektionsbeiwert α = 0,34.

Für I-, H- und rechteckige Hohlquerschnitte, welche nur auf Druck belastet werden, darf der Beiwert kzy = 0 angenommen werden.

Dadurch ergibt sich der Nachweis wie folgt:


→ Nachweis ist erfüllt.

Fire Resistance Check

Die Endtemperatur wird mit 500 Grad definiert.

Ermittlung der Abminderungsfaktoren:
ky,Θ = 0.78 Tabelle 3.1
kE,Θ = 0.60 Tabelle 3.1

Nachweis unter Brandbeanspruchung nach Abschnitt 4.2.3.2

Imperfektionsbeiwert:

Dimensionsloser bezogener Schlankheitsgrad:

Hilfsbeiwert:

Abminderungsfaktor für das Biegeknicken unter Brandbeanspruchung:

Knickfestigkeit des druckbeanspruchten Bauteils:

Einwirkung unter Brandbelastung:

验算:


→ Nachweis ist erfüllt.


作者

Sandy 在客户支持方面为技术问题提供支持,涉及软件相关事宜。她可靠地熟悉新主题,并为清晰结构化的解决方案作出贡献。

链接
参考
下载


;