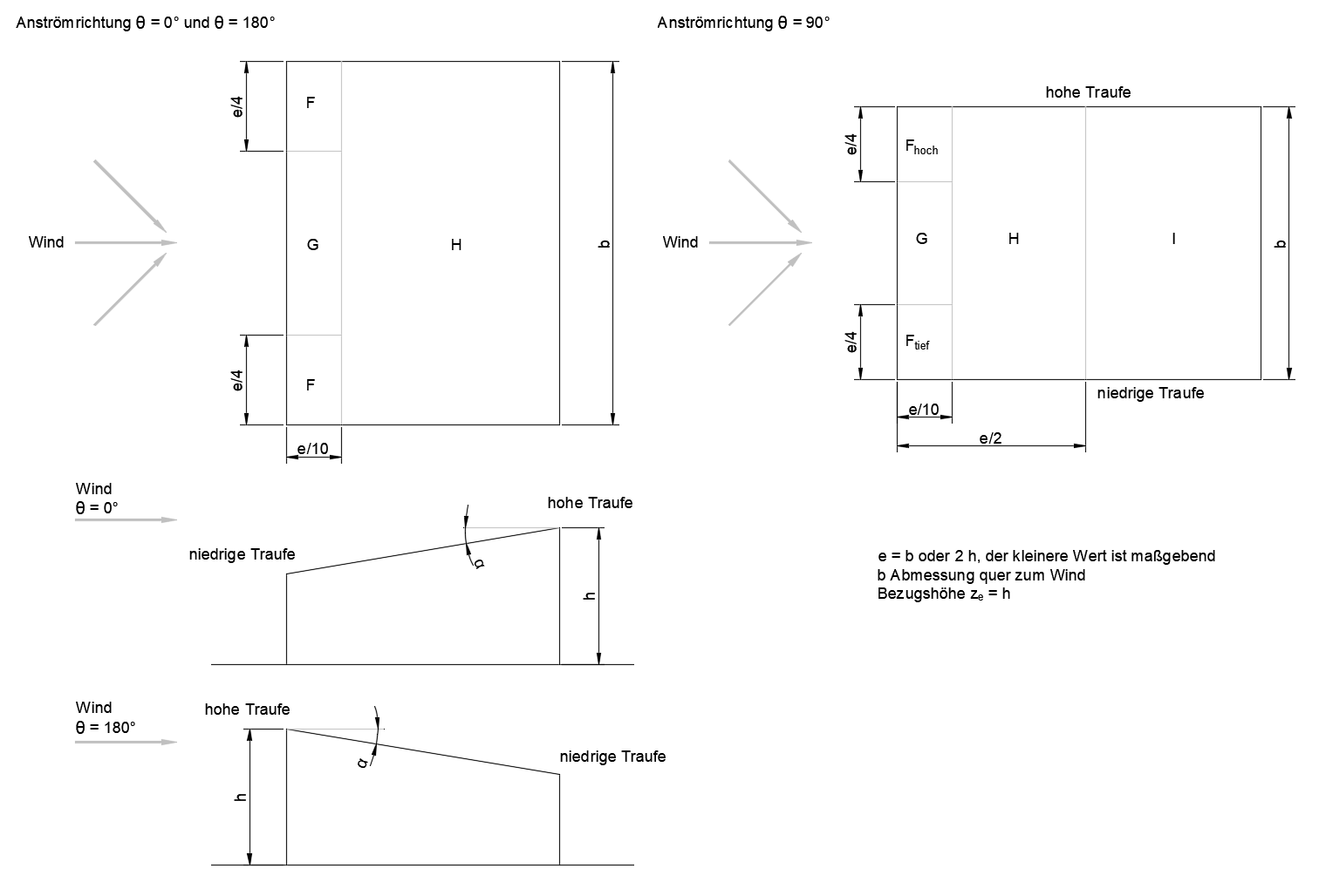
Einteilung der Dachflächen beim Pultdach
Einteilung der Dachflächen beim Pultdach
2024-05-30
009021
  • RFEM 5
  • RSTAB 8
  • RX-TIMBER层板胶合木梁2
    • RX-TIMBER Roof 2
    • RX-TIMBER连续梁2
    • RX-TIMBER Pur条2
    • RX-TIMBER框架2
    • RX-TIMBER柱2
    • RX-TIMBER支撑2
    • 混凝土结构
    • 钢结构
    • 木结构
    • 建筑结构
    • 结构分析与设计
    • Eurocode 0
    • Eurocode 1

Einteilung der Dachflächen beim Pultdach

用于
  • 德国Monopitch和Duopitch屋顶的风荷载分析
分享